招商雍和府现代简约设计,清新舒适的家居体验
昆明东易日盛
2024-02-16
作为当今时尚的家居装修风格之一,现代简约风格以其简洁、清新和实用性受到广大消费者的喜爱。本文将为您介绍一套典型的现代简约风格家装设计,其中包括客厅、餐厅、主卧和次卧的设计元素和布置。
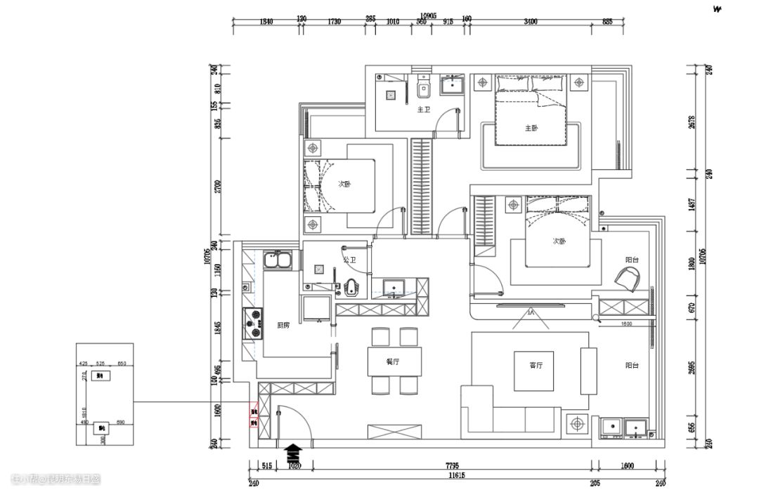
平面赏析 / plane appreciation
~~

平面布置规划
项目地址:招商雍和府 / 项目面积:115㎡
项目户型:平层 / 设计风格:现代简约
设计主创:杨颖
案例赏析
- Case Analysis -
—
#01
客厅
Living room

△ 客厅(沙发)
客厅是家庭生活中最重要的休闲娱乐空间之一。在这套现代简约风格的设计中,我们采用了莫兰迪配色概念,打造出温馨舒适的氛围。客厅的主要家具为中性米灰色极简长款沙发,搭配果绿和鲜橙色的抱枕进行装饰。黑色大小款圆形可爱风茶几与米色拼接卡其色沙发背景墙相得益彰。一旁阳台处设置了米灰色休闲懒人单人沙发,而阳台处通顶设计则容纳了双杠智能洗衣机,既方便实用又不占用额外空间。
#02
餐厅
Kitchen

△ 餐厅
餐厅与客厅相连,采用了客餐厅同直线布局的设计理念。大平顶设计增加了空间层次感,白色桌面和黑白拼接桌脚的搭配使整个餐桌显得简洁大方。餐桌配上4把鲜橙极简餐椅,彰显活力和时尚感。背景处的极简轮廓时针造型装饰画则为餐厅增添了艺术氛围。
#03
卧室
Bed room

△ 主卧
主卧是家中最私密的空间,我们将其打造成一个舒适宜人的休息场所。原木色的双人床榻和黑白方块叠加装饰作为床头背景,营造出温馨的氛围。床品采用米灰色搭配橙色,既保持了整体简约风格,又增加了一些活力。双眼皮吊顶和原木色地板的搭配带来自然的温暖感。飘窗处使用高级灰垫子,墙壁则贴上橙色竖装装饰贴,为房间增添了一抹亮色。室内卫生间配置合理,满足日常使用需求。

△ 次卧

△ 次卧
次卧以简约莫兰迪配色为主题,采用高级灰床榻作为主要家具。床头的原木板装饰增加了房间的自然感。个性化的下垂吊灯为房间增添了一份独特的设计元素。卡其色窗帘和果绿色的懒人沙发相得益彰。米粽色地毯为房间增添了柔软和舒适感。床尾处悬挂多幅小清新装饰画,让整个空间更有生活气息。