入户走廊太长?这样装,美观又实用,一进门就惊呆了!
都都装饰(温州瑞安)
2024-03-18
➝01
INFORMATION
信息
装修小区 /鹿湖庄园
装修面积 /145㎡
设计风格 /现代轻奢
设计师 /4室2厅2卫
设计施工单位 / 浙江都都装饰有限公司
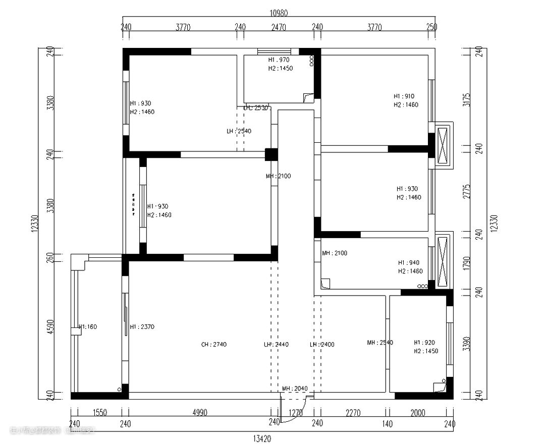
户型图

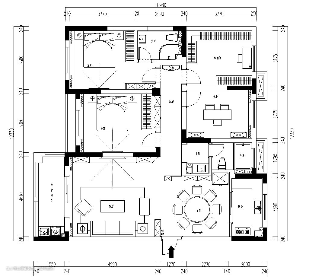
设计图

设计需求 /
业主是一对的80后夫妻的三口之家,杜总来自酒香之城的绍兴,是一位精密仪器工程师,因为职业性质的需要,夫妻俩对于万事万物都有着自己审视的角度,但生活中的男业主温和细腻,女业主审美时尚高雅,工作上的专业严谨丝毫不会限制他对温暖与爱的表达,他们有一个文静且爱阅读的女儿。
在与设计师林老师相遇之初,他们便表达出对将来这个家的向往:尽量当代化设计,让自己心态顺应年轻潮流,近期做女儿婚房使用,因为杜总平常做关于电的精密仪器,装修的时候自己会忍不住做一些细活,林老师在其中得到了很多灵感,最终打造出这个舒适有品质的家!
户型分析:1.门直冲家里有10米长过道,餐厅区域太局限,满足不了需求,希望过道可以有储物功能;
2.主卧的门离客厅偏远,希望整体动线更近;
3.主卫空间空旷,希望每寸区域都能被利用起来。
户型改造:1.改造过道,增加玻璃门将过道分成两部分,将部分过道划分到餐厅区域,靠墙定制顶天立地式酒柜,可以放些厨具用品;
2.移动主卧门的方向,在靠近客厅的砖墙位置凿出门的尺寸按上房门,让休憩更加快捷;
3.将卫生间隔开作为干湿分离,洗漱区、如厕区、淋浴区被合理分配,空间利用率大大提高。

Q:说说是什么给你了灵感,打造出现在这个作品的?
在与设计师林老师相遇之初,他们便表达出对将来这个家的向往:尽量当代化设计,让自己心态顺应年轻潮流,近期做女儿婚房使用,因为杜总平常做关于电的精密仪器,装修的时候自己会忍不住做一些细活,林老师在其中得到了很多灵感,最终打造出这个舒适有品质的家!
Q:你对这套作品最满意的地方在哪里,为什么?
电视背景墙为经典黑白大理石搭配,但电视柜的设计却充满着小心机,下方一字型造型的地柜让客厅没有卫生死角,平时扫地拖地都流畅自如,一字柜两侧组合上收纳柜也有巨大的展示功能,让客厅不管什么时候都显得干净整洁。
Q:对平面布局做了哪些优化改动,为什么?
1. 改造过道,增加玻璃门将过道分成两部分,将部分过道划分到餐厅区域,靠墙定制顶天立地式酒柜,可以放些厨具用品;
2.将卫生间隔开作为干湿分离,洗漱区、如厕区、淋浴区被合理分配,空间利用率大大提高。
Q:为了满足客户的个性化需求,你在设计过程中做了哪些事情?
过道很长,从餐厅处一直往里延伸,林老师在过道尽头搭配了一幅极具创意的装饰画,并安装了暗藏筒灯,给过道带来更佳的光影效果。
➝02
LIVING ROOM
客厅

# 客厅这个空间,充分体现出像杜总这一类都市丽人的生活情境,低调有品质的灰色与黑白色,共同营造出这个舒适且高级的家,简约的细节摆件和清新的米黄色软装调相互交融,一起共同调和出杜总心中有温度、有情感的空间图景。

# 杜总家的电视背景墙为经典黑白大理石搭配,但电视柜的设计却充满着小心机,下方一字型造型的地柜让客厅没有卫生死角,平时扫地拖地都流畅自如,一字柜两侧组合上收纳柜也有巨大的展示功能,让客厅不管什么时候都显得干净整洁。

# 在家具的用色上,简约的浅黄色与优雅的原木色,为整个空间带来了没有距离感的生趣,姜黄色懒人沙发、编织流苏毛毯,它们静态地传递出一种生活态度,搭建起平凡生活的品质感与仪式感。

# 柔和的沙发线条,轻盈细腻的皮布,犹如一位优雅的女士,起承转合着客厅的精致格调。午后的阳光让人心向神往,映照出温暖和煦的光晕,闲暇时,杜总可以拿一本喜欢的书坐在柔软的沙发椅上,感受生活的情致与美好。

➝
03
DINING ROOM
餐厅

# 客餐厅的空间采用两格黑色玻璃屏风隔开,沙发同色系木饰面背景墙延伸至餐厅,使整体空间色彩更加协调、统一,另一面墙为到顶的黑色酒柜和棕黄色过道玻璃门构成,木质和玻璃细腻光泽在这里显得格外的搭!

# 四方食事,不过一碗人间烟火,纯粹平淡的幸福在乌檀木的餐桌前缓缓流淌,搭建起杜总一家人精致的三餐四季,给人以一种小确幸的美好。
➝
04
KITCHEN
厨房

# 厨房空间,以当代简约纯白色橱柜+大理石瓷砖墙的形式,勾勒着杜总不俗的生活美学,日子就是如此简单美妙……

# 杜总认为,生活的幸福,应该是在每一个细水长流的烹饪日常中静静书写,不需要过多的惊喜与意外,只要平和舒适、安然自若,就是最佳状态。
# 阳台靠窗的通风位置,最适宜安装强排式燃气热水器啦!杜总后期可以选择带恒温功能的大容量热水器,能支持厨房、浴室多点供水,让家人随时能使用舒适热水器。
➝
05
BEDROOM
卧室

# 主卧室可以说是最花心思的空间了,考虑到是婚房,床头背景墙上还挂着自己动手布置的国潮风装饰折纸,订婚的仪式感肯定不能少,喜庆红+富贵金的组合,温馨而浪漫。

# 灰色布艺床品,提升了空间品质感,橙色点缀的窗帘,给空间带来一丝活泼和年轻感;床头左右两侧搭配低调的壁灯,在夜晚时带来柔和的光线,将氛围烘托得更为柔情。
➝
07
STUDY ROOM
书房

# 过道很长,从餐厅处一直往里延伸,林老师在过道尽头搭配了一幅极具创意的装饰画,并安装了暗藏筒灯,给过道带来更佳的光影效果。

# 过道“路过”的第一个空间就是书房了,对未来的新婚夫妻来说,书房是他们开启美好生活的又一个起点,是让人能在繁忙的工作之外,对生活倾注更多热爱的精神田园。

# 设计初期,杜总希望书房使用带有多层抽屉的北欧式书桌,但是林老师认为简约的木质书桌更适合杜总一家工作学习,因为极简的家具更能让静下心来专注一件事,多次沟通后,两方的思想碰撞终于达成一致。

# 林老师在书房的的设计与构建中,保持了美感与实用的中和,宽大的实木书桌,看书、工作、玩电脑都很方便,温和的木质柜体,抒发出真实简单的生活之境。
➝
08
SANITARY WARE
卫浴

# 卫生间干湿分离的设计,避免每次洗澡后都变得湿哒哒的,干爽洁净,搭配百叶窗,增加浴室生活的舒适感,淋浴区旁用的壁龛,轻松收纳沐浴用品,冲凉时,闭着眼睛也能够到洗发水和沐浴乳,利用有限的空间颇有见缝插针的意思。
➝
09
CLOAKROOM
衣帽间

# 从主卧进入到衣帽间,动线流畅,衣帽间的格调与房间衣柜保持一致,玻璃柜门与浅米色的柜体完美融合。
