不要餐厅和阳台,成都85㎡小家重塑布局,极简中古风惊艳所有人
在家ZAIJIA
2024-04-11
这是一个充满了空间趣味性的家,也是一个可以满足职住一体的家。
既拥有齐全的功能,也充满观赏性与温情在里面。
房屋面积:85㎡
户型:两居室
装修花费:30W
房屋坐标:成都 武侯区
认识TA们

设计师 :黄一一、蛋卷
苓禾设计主理人。苓禾设计由两位女性设计师共同创立,以满足居住者的个性化需求为出发点,融入舒适性、实用性、美观性和创新性元素,打造充满活力、富有创意的生活空间。
这对从事医疗行业的90后夫妻,在忙碌的工作之余,有着丰富的兴趣爱好——旅游、阅读、摄影、理财、运动,还有两只可爱的猫猫和一只巴哥犬陪伴。
对生活充满热情的他们,希望自己的新家在满足颜值的基础上,承载更多功能,收纳空间也要足够大,装下他们的生活的每一面。

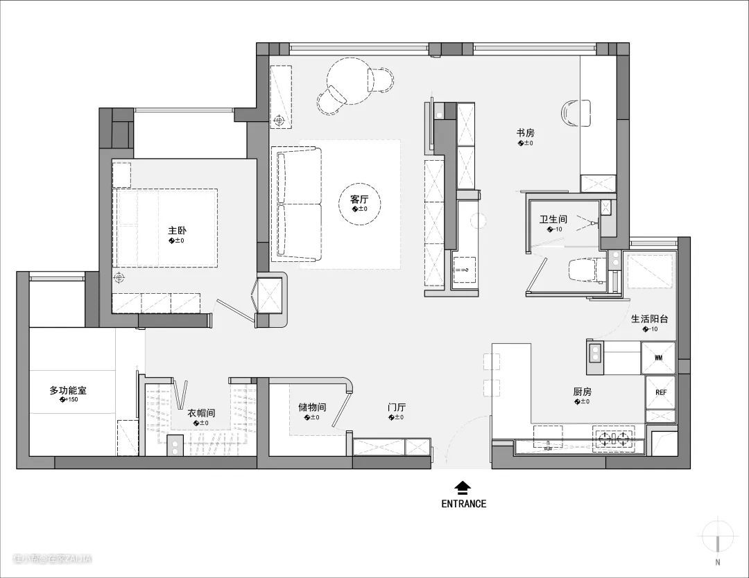
原始户型图
改造前的毛坯房,存在着厨房、卫生间封闭狭小、入户没有玄关、阳台面积浪费较多的问题。
设计师结合屋主的需求,在拆除掉部分非承重墙之后,重新规划空间和动线,重点围绕客厅与书房,打造出了充满活力、富有创意的生活空间。
🔨 改造重点:
○ 拆除墙体,做成开放式厨房,岛台同时承担操作台和餐桌的角色;
○ 封阳台增加书房和客厅的使用面积,并在两个区域之间形成贯通的洄游动线;
○ 只保留一个卫生间,并做成干湿分离,改善入户采光和视角;
○ 以沙发背景墙为中轴线,实现动区和静区的分离。
在重塑空间布局之后,设计师用一体化的思维和不同材质的搭配,为喜欢日式风格的男屋主和喜欢复古设计的女屋主,打造了专属于他们的日式中古风。

平面布置图
01
省略餐厅
重构玄关与厨房的关系
没有玄关,是这个房子的硬伤,而且一进门就是开发商提前规划好的餐厅区域。一进门餐厅和客厅尽收眼底,没有层次感和私密性。

装修前实拍
对于这些问题,设计师决定暂时把这个区域原本的餐厅功能省略,在一进门的左手边增加通顶的玄关鞋帽柜,开放格和悬浮式的柜体,让这里在视觉上并不显得拥挤和压抑。

至于屋主夫妻和两猫一狗庞大的收纳需求,这个800库储物间显然解决了燃眉之急。

![]()
设计师利用800库墙体的厚度,制作了一组小方格造型,为喜欢拆盲盒的屋主额外增加了展示空间,进而弱化墙体的存在,提升空间的观赏性和美感。

原来封闭又采光不足的厨房,改成开放式几乎是一种必然。靠近玄关的一侧,增加了一组岛台,既可以是台面的扩展,也可以作为餐桌。尤其在餐厅被“占用”之后,这里是夫妻二人平时用餐的地方。

橱柜是胡桃木和白色门板的拼色设计,地面搭配好看又不显脏的小花砖,把屋主夫妻分别喜欢的日式极简和复古元素巧妙结合。

这样的做法,真的让夫妻二人都爱上厨房。每天卸下疲惫回到家之后,在这个充满烟火气的角落,悉心经营他们自己的小日子。

紧靠厨房的生活阳台他们也没有浪费,洗衣机和烘干机解决日常的衣物清洁。生活阳台和厨房之间也用磨砂玻璃引入更多的自然光线。

搞定了玄关储物和日常做饭、用餐这些功能性需求之后,其它的空间可以更多地把重点放在“空间情绪”的把控上,传达出他们的生活理念。

02
阳台神助攻
打造沉浸式客厅和书房
这套采光良好的高层,阳台的视野和景观都超棒,但如果阳台仅仅用作晾衣和观景,那就太浪费了。

装修前实拍
设计师选择把阳台分别纳入客厅和书房区域,在这两个他们在家待的时间最久的地方,获得更多的可用空间。

同时利用电视墙与书房书架墙体,形成洄游动线,让行走路线、视线和光线,在这里畅通无阻。

胡桃木、柚木、暖色乳胶漆等不同材质、色彩的碰撞,营造出温馨舒适的复古氛围。

落地窗大面积使用木百叶,是窗帘也是一种装饰。每天根据不同的光线和太阳高度,灵活调整叶片角度,收获恰到好处的光影意境。

阳台的浅绿色斗柜,是家里额外的咖啡角,天花上是风铃悬挂雕饰,随风摇摆,增加空间的趣味性。在靠近窗户视野最好的地方,品一杯下午茶,赏一丝光景,感受生活的惬意与美好。

考虑到家里临时来客人时多人用餐的需求,设计师在窗边预留了圆桌的位置,给生活多一份选择。
书房宽大的书桌,可以满足两人同时办公学习。

书房与客厅,书房与卫生间之间以两道推拉门作为分割,整个空间可开可合,在有限的空间里,满足不同的办公和生活的模式。

做到了干湿三分里的卫生间,一改整个空间木色与白色的主色调,为生活带来一份疗愈的绿色。

三分离的另一个作用,在于为家里增加了一条新的走廊,光线从书房洒入,把房间采光好的优势发挥得淋漓尽致。

设计师顺势在正对玄关的位置,专门定制了美美的端景,成为家里的独特符号。

整个公共空间,设计师用一体化的思维,重新构建墙、地、物的关系,用不同材质让整个空间层次分明、久看不厌。
03
静谧空间
把生活切换为勿扰模式
沿着储物间向里走,就进入了家里的“静区”,由主卧、衣帽间、多功能室组成。

卧室的面积不大,没有太多花哨的装饰,是纯粹的睡眠空间。


嵌入床尾墙内的储物柜,用来补充卧室衣物的临时收纳。
从刚才的视角看,储物柜与客厅背景墙形成了相互连接的造型,为客厅起到了装饰作用。

衣帽间用了简易的金属衣架,储物量巨大,翻找衣物也很容易。

集合客房、茶室等功能的多功能房,在木地板上铺设了定制的椰棕垫,耐磨防潮、透气性强。平时放松喝茶、亲友偶尔小住,都能轻松应对。

这个原本平平无奇的户型,通过设计师的深度重塑,为屋主夫妻发现了未来生活的正确打开方式。
关于这个家,你还有哪些好奇或疑问,欢迎留言区积极讨论~
📖
━
拓展阅读



📱
━
商 务 合 作
微信ID:TrendsZaijia006
微信ID:TrendsZaijia010
电 商 合 作
微信ID :ting912196
后台回复“转载”,获取转载须知
编辑&排版 / 浣熊
图片 / 设计师提供
喜欢这个家吗,
那就 三连吧!
好看的家442