杭州90后姑娘不听劝,坚持买下28㎡loft公寓,没想到越住越舒适!
家居设计师宅哥
2024-04-12
有着“人间天堂”美誉的杭州,自古以来都是文人墨客所喜爱的地方,他们在这里留下了很多脍炙人口的经典。
杭州凭借着美丽的自然风景和人文气息,令许许多多的游客对其流连忘返。
杭州作为新一线的城市,其房价虽然比不上北上广这样的城市,但是纵观全国范围内,也是不算低的,所以想在杭州买上一套房子,也是很不容易。

本期家装案例给大家介绍的就是杭州的一位90后小姐姐28㎡的小家。
小姐姐是在杭州上的大学,大学四年的时间,让她彻底爱上了这座充满魅力的城市,所以大学毕业以后,小姐姐毫不犹豫的选择留在杭州生活。
小姐姐这么多年以来都在这座城市中漂泊,最大的愿望就是早日攒够钱买上一套房子。
功夫不负有心人,由于限购政策和房价的关系,小姐姐在前年终于买到了一套loft公寓,虽然仅仅是一套loft,但是对于小姐姐而言,房子怎么样不重要,重要的是她总算在杭州有了真正落脚的地方。


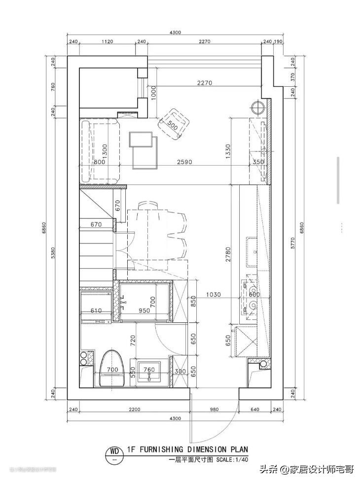
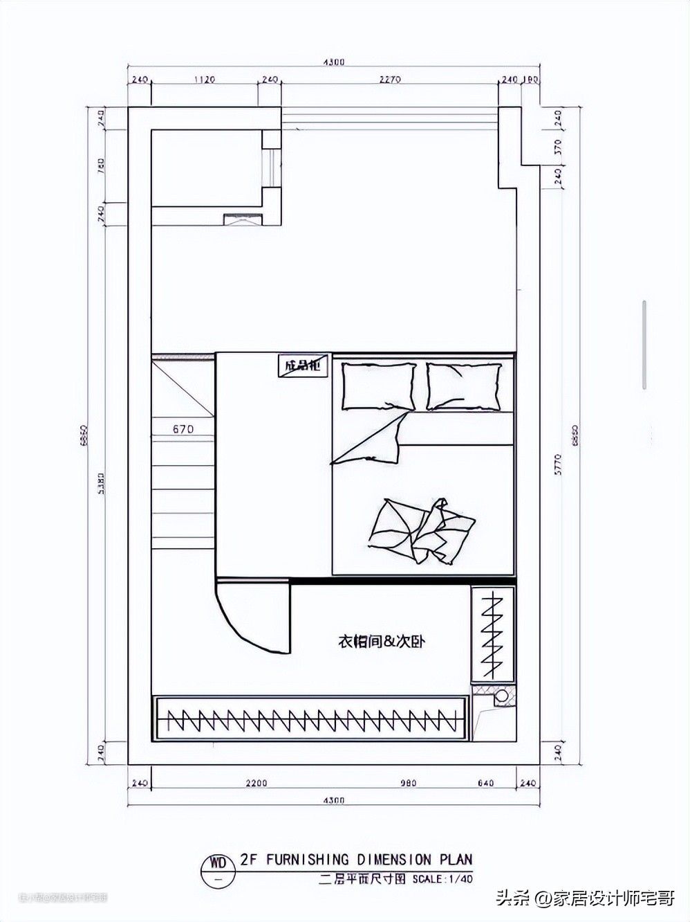
这套房子位于杭州,房本面积38.8㎡,套内面积为28㎡,层高4米,小姐姐搭建了一个15㎡的二楼,使用面积43㎡,这也是loft受欢迎的最大一个原因。
房子整体户型结构是一个标准的长方形,一楼从外到里分别是玄关、卫生间、厨房以及客厅这四个功能区。

二楼主要是卧室和衣帽间,衣帽间是一个多功能的空间,家里如果来客人需要过夜的话,将衣帽间的折叠床打开就可以当做次卧使用。
房屋整体的户型结构是一个比较标准的loft公寓常见的户型,功能区划分合理,小姐姐一个人独居完全可以居住的非常舒服。


一提到奶油,想必大家首先想到的就是香香甜甜的蛋糕,吃上这么一口,就会令人全身心的感受到甜蜜。
近些年奶油色系已经成了网红款的装修风格,全屋大面积使用白灰色,营造出简洁宁静的家居氛围。
玄关与厨房在一个空间内,这种布局很像是酒店的构造,在单身公寓中比较常见。
玄关空间的装修色彩比较简洁,墙壁白灰色,地板是原木色,而入户门则是更深一点的灰色,简约中又不失温馨,小姐姐还养了小宠物,小狗懒洋洋的趴在地板上,更显得家居氛围温馨又治愈。

玄关一侧设计了一面玄关柜,能够在里面收纳很多的物品,靠近门的一侧柜子的中间镂空一处空间,里面安置着灯的开关以及一些装饰品,美观又实用。

玄关柜上层的容量不小,小姐姐在里面收纳了各种包包和衣物,里面满满当当的,却又很有条理。

小姐姐在镂空处下方用来放置一些书籍和杂物,看起来小小的空间却有着大大的容量。

小姐姐在玄关柜对面安置了一个洞洞板置物架,趣味又实用,将墙面很合理的利用起来,上面收纳了小姐姐的包包、帽子、钥匙等各种小巧的物品。


卫生间门打破了常规的设计,做的是隐形门,和玄关柜融为一体,既美观又不显突兀。

卫生间内的空间面积不算小,墙壁、地板以及各种家具,多数使用了灰白色和白色的颜色搭配,显得高级又现代化十足。
干湿分离的构造,让卫生间的使用感受MAX,淋浴区基本全封闭住,只在玻璃推拉门上方留出让空气流通的空间。

小姐姐在马桶上放了一个史努比玩偶,显得俏皮又生动活泼。
马桶两侧的空间都没有浪费,与洗手台之间放置了一个小置物柜,里面收纳了各种洗漱用品等。

马桶对面利用楼梯下方形成的空间,刚好可以放置一个洗衣机,旁边还有一个脏衣篮,洗澡的时候随手就可以将换下的衣服放在篮子里,然后用洗衣机清洗,方便又实用。

淋浴区是用玻璃单独隔出来的空间,里面安装了奶白恒温花洒,不但功能齐全,而且美观又实用。


厨房占据玄关的另一侧空间,开放型的一字型厨房完美契合房子的空间构造,大面积使用白色,与其他功能区更加的和谐,不会显得过于杂乱。

靠近入户门的吊柜下方放置着一台冰箱,小姐姐将冰箱顶部和侧壁空间也利用了起来,顶部摆放了一些小型的物品,侧壁安置了一个置物架,上面用来收纳各种调料品,将不起眼的角落合理利用和规划,空间的使用率更高。


餐厅在玄关柜往里面的拐角空间内,与户型构造十分契合,将两张长餐桌拼接在一起,更显得餐厅空间很宽敞。

靠墙的空间放置了一个餐边柜,餐桌可以折叠收纳起来,和餐边柜融为一体,让空间更加宽敞。

餐边柜是多功能型的一体柜,上方可以折开变成一张餐桌,使用起来更加的方便,可以满足多种不同的使用场景。


由于客厅上方不再是二楼,所以非常高,就令客厅整体显得非常的通透开阔,壁挂式的电视既美观又不占用空间。上方安置了两层置物架,上面摆放了很多的小工艺品,非常精致美观。
电视柜旁放着一个造型独特的落地灯,打开以后像一个小太阳一样,氛围感直接满分。

客厅地面整个铺着一层浅灰色的毛绒地毯,上面是一个懒人沙发,显得舒适又治愈,家居氛围浓厚。

懒人沙发可以变换形态,闲暇时躺在上面看书、晒太阳非常舒服,累了可以直接躺在上面睡个午觉,舒适又惬意。

楼梯旁的空间安置了一个小沙发,这个小小的沙发脚卡通元素非常多,令人感觉到治愈又温馨。


楼梯旁的墙上也充分的利用了起来,安置了三面壁挂柜,里面摆满了小姐姐喜欢的各种小手办,令整个空间生动又鲜活。

小姐姐为了防止小狗们随便乱跑到卧室影响自己休息,特意在楼梯口加装了一个栅栏门,非常实用。


上到二楼直接就可以看到衣帽间,衣帽间的衣柜门采用了帘子作隔断,这样隐匿性更好,还能营造出一种整墙大窗户的视觉感,给人的视觉感受也更加的开阔自然。


卧室内很是温馨,靠近玻璃围栏安置着一张单人床,床头旁边是一个造型独特的米白色床头柜,打开小台灯以后,整个空间很有氛围感。

卧室入门处放置了一个落地收纳柜和一面挂墙式的置物架,上面摆放了小姐姐喜欢的各种装饰品。

虽然loft公寓因为各种原因,不是非常的受买房人士的欢迎,但是小姐姐觉得只要能在杭州这样美丽的城市拥有自己的家就已经很满足了。
Loft公寓也优在房价相对较低,再加上小姐姐将家里布置的那么温馨舒适,小编觉得如果自己能在这么漂亮的房子里居住的话,简直做梦都能笑醒,大家觉得如何呢?
本案图源来自@zzzzzzz,文字部分属于原创,图片版权归原作者所有,侵权请私信联系删除