买了精装房:找设计师,能做什么呢?
设计馆
2024-04-18
买了精装房:有必要找设计师么?
对于在线设计,很多人都是担心落地效果问题,今天这套案例的客户,是之前找过我们设计的曾小姐(《装修找异地设计师靠谱吗?入住半年,业主晒图了!),由于有了前面的实操成功经验,所以去年她换了大房子(精装房),又重新来找我们做设计方案(软装+局部硬装改造),下面我把这个精装房改造方案整理分享给大家吧!
0、平面布置图

▲这次是曾小姐换的精装房,而且面积比较大,所以有几个空间就暂时不需要设计。总体硬装格局没什么变动,主要就是背景墙上有一些设计变动。
1、餐厅

▲餐厅现场照片。

▲餐厅设计方案——左侧背景墙拆掉,换成一整排的定制餐边柜,餐边柜局部加入玻璃门,右侧保持原有墙面、地面与天花也没做改动,中间布置上一套复古优雅范的餐桌椅组合,把用餐空间布置得充满文艺舒适的气息感。
2、客厅

▲客厅现场照片。


▲客厅保持原有的岩板电视墙、地面与天花也没改动,布置上棕色皮沙发,电视墙摆设成品电视柜、皮革斗柜,中间再布置小茶几与休闲小沙发,把这个客厅布置得充满自然文艺的舒适感。
3、工作区

▲工作区设在客厅沙发后方,一张大板实木书桌布置在沙发后方,坐在工作区就能掌握客厅全貌,孩子在客厅玩耍、大人在后方书桌坐在聊天、工作或看书,温馨惬意;。
4、走廊

▲走廊保持原有的基础装修,把天花的灯具改成筒灯,在客餐厅这边看过去,有斗柜与餐边柜上的装饰品呼应,整体画面感也是非常时尚前卫。
5、主卧

▲主卧现场照片。

▲主卧改造后的床头墙保留原有的硬包,布置上咖色皮艺床、米白与浅灰色的床单,地面还铺设棕灰色地毯,为主人营造了一个知性雅致的卧室环境;床头两侧布置床头柜,侧边的衣柜采取底部抽屉+上部衣柜的设计,方便内衣物等小件衣物的收纳,并且还加入了开放挂衣区,方便临时脱下不洗的衣服挂放收纳。

▲床尾墙布置斗柜+电视机,躺在床上看电视也是不错的体验;飘窗定制上抽屉柜与小坐垫,并在靠近飘窗位置摆设了一个梳妆台,为主人化妆打扮提供了一个方便的空间。

▲如果你疑问主卧的衣柜怎么那么小,怎么还装个大大的开放挂衣区呢?其实,人家还有专属衣帽间,衣帽间整体衣柜以玻璃柜门的设计,并在内部加入暗藏灯带,为主人提供了一个方便优雅的收纳衣服空间。
6、书房

▲书房现场照片。

▲书房装了一整面墙的书柜,中间加入玻璃柜门方便摆放装饰品与常看的书籍,方便实用又避免了灰尘侵袭。在书桌对面布置一张墨绿色的休闲沙发,看书工作累了,就可以坐在沙发上放松一下,劳逸结合的书房布局,令人惬意舒适。
7、儿童房

▲儿童房现场照片。

▲儿童房把床的摆放方向做了调整,这样就在过道区域腾出了一个摆放钢琴的位置,为孩子提供了一个多功能的空间;而在过道区域的墙面则是装了一排的照片展示架,用于摆放个人照片与奖状,突出孩子的个性与荣誉。

▲儿童房我们还做了另一个方案——照片展示墙改为黑板墙的方案,不过业主最终还是选择了另一个方案。
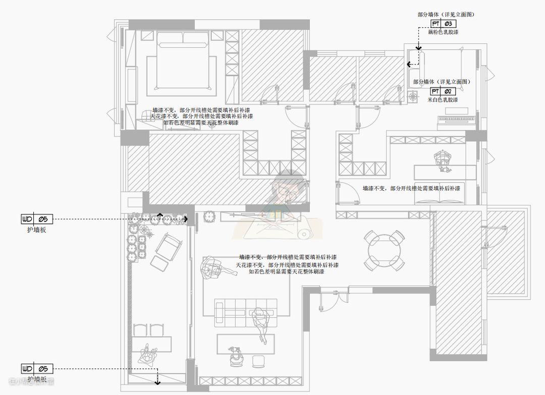
8、关于精装房改造设计
以上已经放出了现场照片与设计效果图的对比,通过设计图与现场硬装基础的结合,可以让你提前预览看到布置效果,让你改造精装房更加心里有数。在精装房的软装设计方面,我们除了给你提供如上文展示的效果图,还能为你提供——
①硬装改动的施工图:
比如背景墙改造、天花调整等,我们会根据现场情况与方案需要,提供相应的硬装改造施工图,避免装修工人拆错拆多,也为工人提供拆除后的施工方案参考。

▲硬装改造平面图。

▲硬装改动立面图(部分)。

▲硬装主材表。
②电路改造方案:
精装房的插座数量不够,调整布局后开关与插座位置也要做对应的调整,所以在整体方案上,我们还会提供对应的电路改造方案,以便为你提供更加方便实用的开关插座。

▲开关控制改造方案。

▲插座改造方案。
③软装采购清单:
买了精装房,要买什么样的家具、窗帘、灯具与软装,才能把空间布置的更加精美呢?在我们的软装设计方案里面,会把效果图里面的家具、软装都附带购买地址参考款式图片,让你买家具软装时不会买错翻车。

▲软装采购清单(部分)。
受限于原本硬装基础,精装房的改造+软装设计,想要做出效果,会有较大的挑战难度;如果你买了精装房,又担心软装搭配方面做不好,也可以联系我做在线设计哦!有了设计图、硬装改造施工图、软装采购清单,将会让你改造与采购都省心不少。