46平精致装修,让你爱上小家
哈尔滨大树装饰公司
2024-04-21
房子是一个一居室,全部向南的房子,业主的预算有限,想用最经济的价格做出简约好看的效果,于是把风格定位再北欧风。
原始户型图

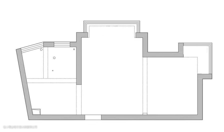
平面改造图

改动最大的是在厨房和卫生间的位置。
玄关——进门的左侧是一个定制的黑白色的鞋柜,干净的立面看起来更为的美观又简约,中间预留的褐色空位可以收纳一些随身的小物件,柜子底部悬空,方便放置鞋子。

客厅——客厅主要是以灰色为基调,穿插黑色和浅灰色,又采用了小部分亮色作为点缀,统一中又富有变化。



窗帘选用的是橘色+灰色来搭配的,还搭配了一层的白沙。灰色马鞍皮的茶几,用橘色包脚金属钉固定,哑光金属几架外观细腻也提升了空间质感。





厨房——虽然房主平时很少在家做饭,厨房选用的集成灶,不但节约了很多的空间,橱柜也能高效的利用。

洗衣间——厨房的右侧原本卫生间的位置改成了洗衣间,卫生间原本的阳台空间作为现在的卫浴区来使用。

卧室——主卧的背景墙采用了深蓝色,让视觉得到了延伸,窗帘也选用了蓝白相间的配色,给人一种干净整洁的感觉。

卫生间——采用了大面积灰色瓷砖,并搭配了灰色的浴室柜,做了壁龛的设计,高效的利用了空间。
