花语岭南-131㎡法式复古风,把生活过成一幅画
华浔品味装饰全屋翻新
2024-05-03

项目:花语岭南
风格:法式复古
面积户型:131 ㎡复式
设计师:常淑嫚
前言
本案业主是一个跨国家庭,是一个幸福的三口之家。男业主喜欢有厚度、有质感的风格,女业主希望房子可以拥有法式风格的优雅、随性与浪漫。
设计师考虑整体调性选择了充满复古风情的法式风格。通过精致的角花、雕花灯盘描绘法式优雅,小花砖点缀复古氛围,木质元素体现质感,打造出一个精致复古的温馨空间。以光为媒,把生活过成一幅浓墨重彩的画。
户型设计
-Apartment layout design-
华浔 · 广州
▼

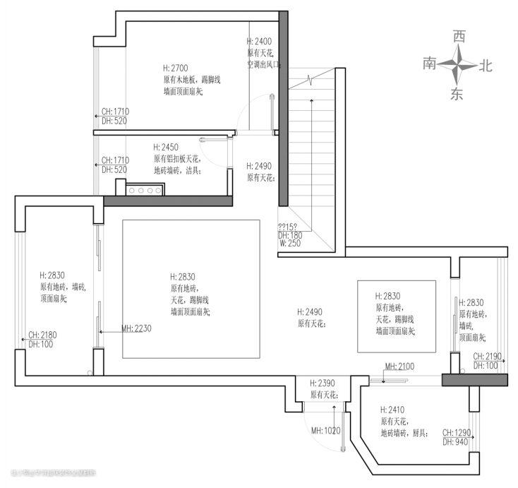
一层改造前

一层改造后

二层改造前

二层改造后
● 设计亮点 ●
一层:
1.将两侧的阳台与客餐厅打通,形成对流的通透空间,让客餐厅更开阔,采光和通风效果更佳。
2.开放式厨房设计延伸操作台长度,增强餐厨空间的互动性。
二层:
1.将次卧与主卧打通,改造为一个带有衣帽间的大套房,满足业主的日常需求。
2.将过道与公卫纳入另一间次卧,让儿童房面积更大,功能性更齐全。
01
客厅
HUAXUN TASTE DECORATION

全屋通铺鱼骨拼木地板,与奶白色的墙面搭配,形成充满温度和氛围感的空间,散发出复古的韵味。

打通阳台与客厅,阳光透过大落地窗直接进入客厅,为复古空间加上一层温暖柔和的滤镜。拱形垭口柔化空间轮廓,让空间透出柔美和慵懒。
圆拱造型的壁柜增添了一份温柔与浪漫,可以放置别致的摆件,也可以存放心爱的书籍。周末的午后,有书本和咖啡陪伴,偷得浮生半日闲。

通过精致的石膏线条与角花,勾勒出优雅浪漫的法式风情。繁复的雕花灯盘搭配细节丰富的吊灯,演绎无与伦比的复古电影质感。
休闲区的储物柜门加入藤编元素,赋予空间复古的质感,也散发着清新自然的气息。
02
餐厅
HUAXUN TASTE DECORATION

打通生活阳台与餐厅,让空间得以延伸,打造更明净通透的就餐环境。
黑色餐边柜搭配铜质拉手,从细节体现法式的精致和优雅。木质中古风家具让空间更有厚度和质感,将复古气质进行到底。

楼梯前的墙壁是一进门就能看到的区域,在单调的白墙上增加一扇拱形窗户,优雅的弧度画出浪漫灵动的空间气质。
利用方格纹玻璃呈现若隐若现的美感,复古的视觉表现形式,深深浅浅的格纹以光影为画笔,描绘出一幅独特的像素画。罗马柱的运用,更是让空间的艺术气息提升到另一个层次。
03
厨房
HUAXUN TASTE DECORATION

业主希望空间之间具有更强的互动与关联,而开放式厨房设计,不仅让原本较为局促的空间变得更宽敞舒适,提供更多的操作空间,也打破了空间的界限,让餐厨空间更加紧密,让家人之间的交流互动更加轻松。

厨房墙面铺贴小花砖,自带复古氛围,呈现出更为丰富的视觉效果,与黑色橱柜碰撞出典雅摩登的空间气质。
04
主卧
HUAXUN TASTE DECORATION


原有的主卧空间较小,将旁边的次卧和主卧打通,让主卧成为拥有专属衣帽间的大套房。
衣柜做弧角设计,减少空间的尖锐感和冷硬感,温柔了空间惊艳了时光。柜门加入弧形元素,勾勒出更具法式风情的曲线美。

鱼骨拼木地板与木质屏风沉稳的色调,温润的质感,让温暖和静谧在整个空间中弥漫开来。
05
卫生间
HUAXUN TASTE DECORATION

主卫采用奶咖色调,营造温暖恬静的空间氛围,小花砖带来富有更有层次感的视觉效果,也点缀出空间的复古美感。
在淋浴区的墙壁增设壁龛,利用墙面空间收纳洗浴用品,让空间的利用更充分。

公卫墙面选择了花鸟图案的花砖,地面铺设黑白小方砖,复古的艺术氛围在空间中弥漫,就连镜子都像是一件艺术品。
06
次卧
HUAXUN TASTE DECORATION

儿童房采用蓝白配色,清新淡雅的色调给孩子一个舒适的成长空间。学习区域特别设置洞洞板墙,孩子可以按照自己的喜好设置书架的高度和位置,悬浮式书桌也赋予空间更轻盈灵动的美感。

将二层原本的过道和公卫也并入儿童房,卧室的功能性也更为完备,居住体验也更便捷、舒适。
衣柜特别加入圆形镂空设计,视觉上更有层次感,也为空间增添更多的趣味性。
07
书房
HUAXUN TASTE DECORATION

业主希望有一个独立不被打扰的办公空间,设计师将一层的次卧设计为多功能书房,兼具书房和客卧的功能,配备一体式折叠床,有客人来访时可以在这里休息。
原木的纹理让空间多了几分岁月的厚重感,温润的质感能让人身心都沉静下来,独享静谧、闲适的时光。

将原有的飘窗打掉,根据空间结构巧妙设计书桌,下方做嵌入式抽屉,打造一个光线充足、明亮舒适的工作和学习空间。感到疲累时,只要抬起头就能看到窗外美景,给眼睛做个按摩,给精神做个 spa。
Resumes of Designer

常淑嫚