粤海壹桂府-260 ㎡混搭风,两套复式公寓合并为一创造梦幻大宅
华浔品味装饰全屋翻新
2024-05-09

项目:粤海壹桂府
风格:混搭风
面积户型:260 ㎡复式
设计师:陈家鑫
方案说明:
本案是一个四口之家的住宅,将原本两套复式公寓打通合并成一套,重新构筑全屋空间布局。设计师考虑到每位家庭成员喜好和需求的不同,三个卧室的风格各异,不同的风格碰撞出充满新鲜感和想象力的空间魅力。
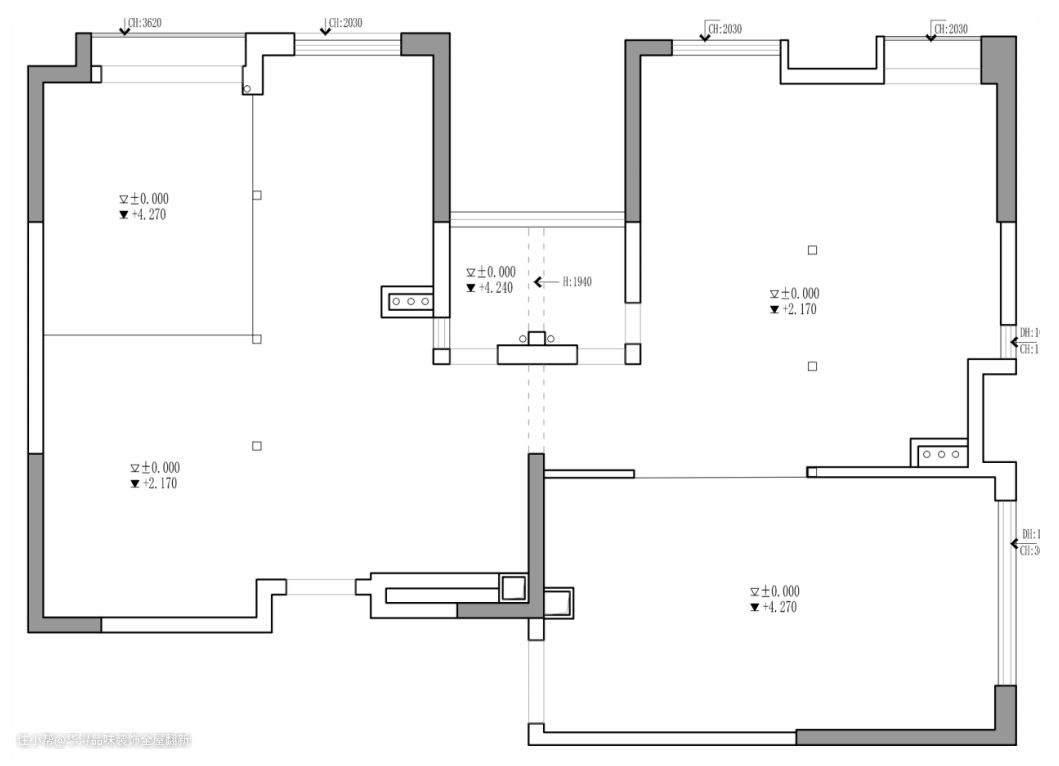
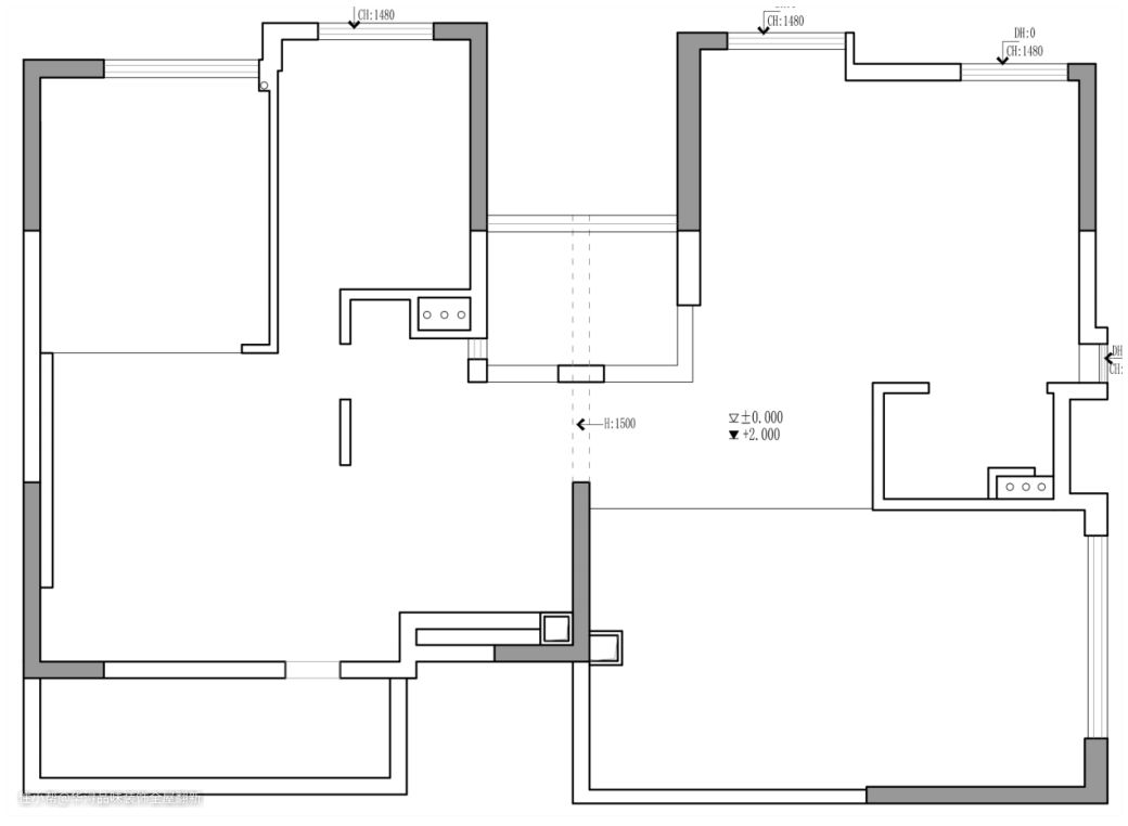
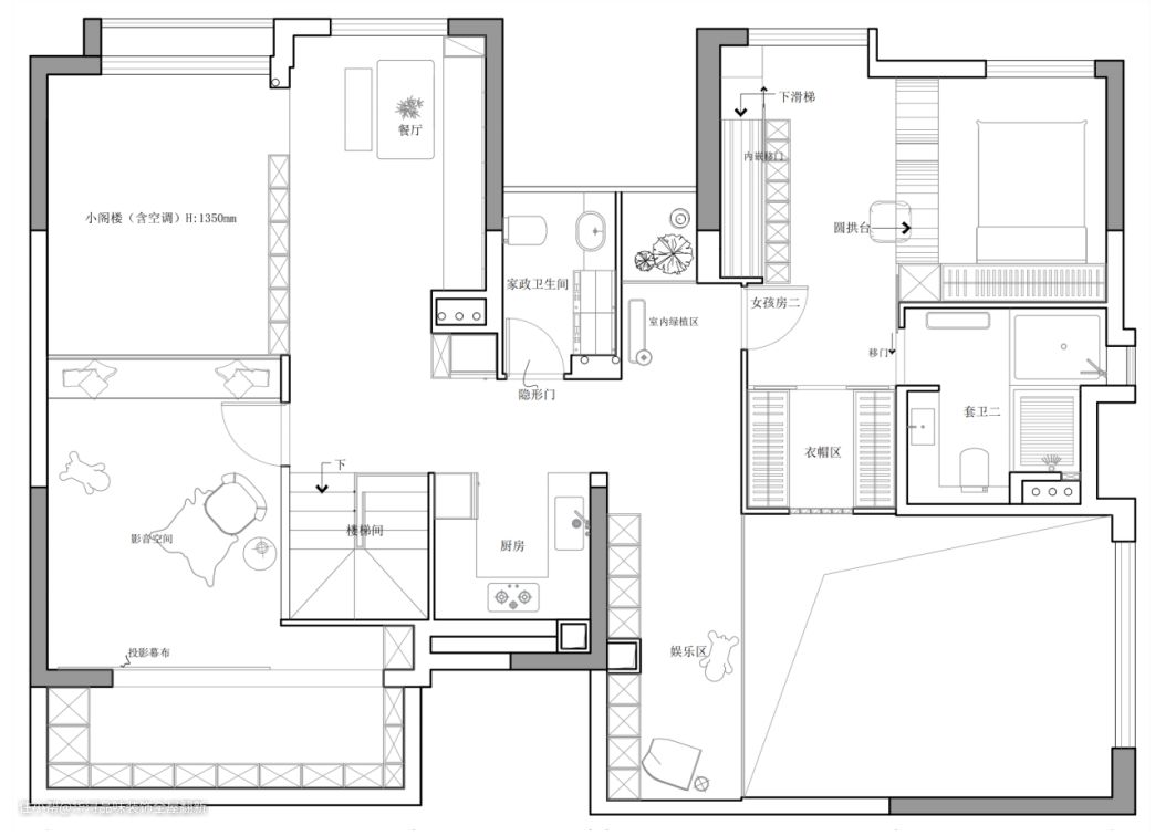
户型图

一层改造前

一层改造后

二层改造前

二层改造后
设计亮点:
1.将两套复式公寓打通合并成一套,让原本局促的空间得到释放,居住体验得到极大提升。
2.将一层左侧空间打通,改造为一间功能完备的主卧大套房,并把原本的公卫并入其中作为主卫,让业主夫妇拥有更便捷、舒适的居住环境。
3.在主卧睡眠区上方加盖楼板,原本的中空位改造为小阁楼,同时也可以作为休息区和储物区,更充分利用空间。
01
钢琴区

白色的楼梯、木质的扶手、玻璃的护栏,不同的材质交错融合,连楼梯都成为了一件艺术品。在楼梯旁边设置钢琴演奏区,在这个静谧的角落,是一家人可以沉浸在音乐海洋的专属空间。
02
客厅
客厅保留挑高设计,更大限度的发挥复式空间的优势,尽显开阔大气。二层墙体局部镂空采用玻璃砖作为装饰,丰富空间的层次和美感。

大落地窗使得空间更为通透,白色的空间是干净而纯粹的,处处透出恬静惬意的气息。让空间成为画布,光影成为画笔,光影明暗之间,客厅似乎也具有生命力。

电视背景墙加入木质元素,与木地板相互呼应,不同的材质的交融打破空间的单调性,呈现出更有质感和层次感的客厅空间,也透出属于家的温暖和宁静。
一侧利用弧面为空间带来更独特的曲线美,让空间更柔和雅致,同时可以作为玄关隔断起到一定的视觉阻隔作用。

客厅的侧面是西厨区,利用吧台分隔厨房与客厅,烹饪时也可以和其他家庭成员交流和互动,打破空间的界限,让空间关系更紧密的同时,也幻化出更多可能。

03
餐厅
位于二层的卡座式餐厅,可以提供更宽敞、舒适的座位,非常适合和亲人、好友聚餐。原木质感散发出温暖的烟火气息,座位底部拥有大量收纳空间,让空间的收纳能力进一步提升。

餐厅一侧利用墙面设计嵌入式餐边柜,方格纹玻璃柜门仿佛为空间打上了马赛克,复古的视觉表现形式带来独特的艺术美感。

04
厨房
设置在二层的中厨采用 U 型布局,更合理、充分地利用空间,浅灰色柜体增添典雅时尚的美感。
开放式设计增加厨房与其他空间的互动性,让准备食材与烹饪的时光不再是孤独和枯燥的,让空间更有温度。

05
主卧
主卧采用了新中式设计,业主希望保留上一套房子留下的的红木家具,正好与新中式风格的古朴典雅相契合。

传统中式元素与现代设计美学的对话,创造出具有东方韵味的空间,彰显宁静致远的意境之美。

将原本一层左侧的空间打通,同时将原本的公卫并入主卧,让主卧成为拥有独立卫生间和衣帽间的大套房。吊顶利用线性灯和筒灯提供照明,在质朴古典的空间中加入精致时尚的元素。
衣帽间利用中式屏风作为隔断,可以保障空间的独立性和隐秘性,又能增添古韵素雅的中式韵味。

06
女儿房
小女儿的房间选择了柔美可爱的奶油风,粉白配色让整个空间洋溢着浪漫又梦幻的气息。书柜加入圆形和拱形开放格设计,为空间增添趣味性。
睡眠区略微抬高,平时可以直接席地而坐,阅读、休闲娱乐、与朋友聊天聚会,打造类似于榻榻米的惬意舒适空间。

在睡眠区侧面设计拱形门作为空间过渡,体现温柔细腻的空间气质,而圆拱台作为学习空间极具艺术感,巧妙的设计也让睡眠区的隐私性得到更好地保障。

大女儿在国外留学,不在家里常住,她的房间采用极简设计,白色的纯粹和浅灰色的优雅,营造出静谧恬静的空间氛围。

床头背景墙选择了有暗花的护墙板,低调内敛又不失精致典雅。利用地台将睡眠区抬高,形成高低错落的空间层次感。

07
卫生间
主卫做了双台盆设计,让两位业主在繁忙的早晨可以同时洗漱,椭圆形镜子和台上盆刻画出空间的精致感和艺术气质。

白色瓷砖铺陈底色,黑色线条勾勒优雅与精致,如同一幅写意水墨画。利用壁挂式马桶减少卫生死角,方便日常的清洁打扫,也让空间显得更轻盈灵动。

小女儿房的套卫墙面采用绿白拼色设计,清新自然的色彩充满活力。地面铺设小花砖,点缀出灵动可爱的空间氛围。


大女儿房的套卫通过蓝白配色,营造浪漫而梦幻,又静谧而神秘的空间氛围。悬浮式洗手台和壁挂式马桶似乎让空间都漂浮起来,让人感到恬静和愉悦。

墙面与地面铺贴大面积瓷砖,独特的蓝色纹理让人仿佛置身于深海之中,彻底地放松下来,享受一场蓝色的梦。

08
休闲区
缩小原本客厅中空面积,二层过道位置增设娱乐阅读区,靠墙设计通顶的书柜,提供一个安静舒适的阅读空间。



华浔品味装饰设计师:陈家鑫
现在预约 即享受
上门量房、平面方案、报价等免费服务
- 快来私信我们吧 -