打造你的梦想家园,130平美式轻奢装修
郑州金螳螂家
2024-06-05
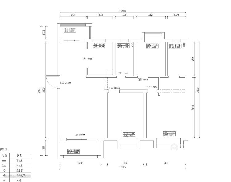
业主需求&原始结构图

给家里儿子的婚房装修,想要一个年轻且带点奢华的空间,需要多一点收纳空间

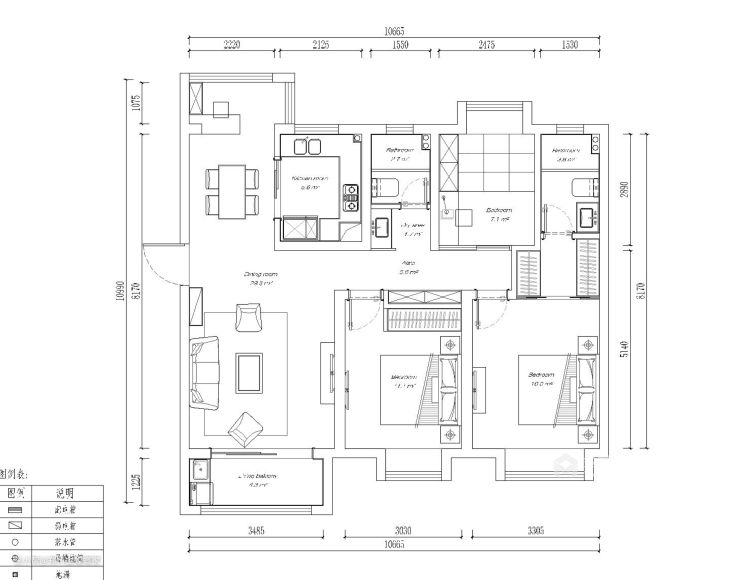
平面设计图及设计说明

房型很方正,南北通透,不足的地方在于餐厅的空间有点拥挤,北阳台打通作为餐厅的一部分使用,为了弥补厨房的收纳不足,做了一个吧台的设计,使餐厅的空间不用那么拥挤。 客房的空间有点狭小,设计了一个榻榻米书房兼客户的功能房间,打破常规的房门,做了内嵌式的移门

客厅效果图及设计说明

客厅的墙面采用白色木饰面和灰蓝色木饰面搭配,使得空间更具层次感,采用轻奢质感的家具和灯具,不锈钢的材质,阐述着稍带奢华的空间感

餐厅效果图及设计说明

餐厅和客厅为一个整体,橙色的窗帘洋溢着欢快的气息,给餐厅一个愉快的吃饭时光

卧室效果图及设计说明

白色窄边框移门分隔卧室和衣帽间,灰蓝色的木饰面和大理石飘窗台多了一些慵懒的气息

