神秘高级灰,让你的家变得与众不同
郑州金螳螂家
2024-07-06
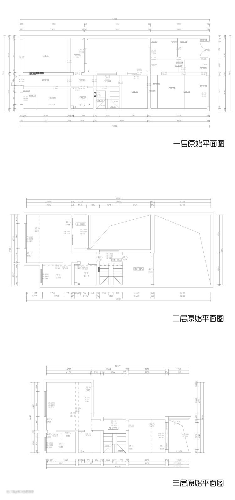
业主需求&原始结构图

本案地理位置位于昆山市市区西北位置,联体别墅式的建筑形式,全屋三层,总面积250平米,形状成长方形,交通空间占比相对较大,所以在现有的土建划分上就需要一些取舍,在此之前需要对业主的生活习惯及喜好做充分的考量。业主是一名标准90后小姑娘,除了对室内风格具有别具一格的喜好外,对于功能空间的划分也有一些别出心裁的想法。

平面设计图及设计说明

在与业主进行深入的沟通后,设计师对应业主需求开始了大刀阔斧的改造。 首先在一层,业主对于客厅上方的挑空空间非常不满意,希望能取消挑空。业主希望能有一个较大面积的墙面来展示自己的绘画作品,所以我将原始面积巨大的客厅空间用隔断形式隔出了一个层高较高的玄关走廊,这样在入户右手边的整面墙将作为展示的区域。原始土建的设计中将汽车库设计在屋内,但是根据调查本小区的停车压力还没有达到非要车库不可的地步,而且短期之内不太会有较大的变化,结合业主的意见,设计师将汽车库改造成了厨房+餐厅的空间形式。最后,业主希望能在一层增设一个保姆房,设计师将原来的客餐厅空间改造成了保姆房+卫生间的形式。出了屋内空间的改造,原始户型中的中央花园,业主希望将其纳入屋内使用的范畴,设计师建议将花园地面做成地砖并且增设玻璃顶棚。 其次在二层,作为业主本人主要的起居空间,更希望整合套房的概念,所以在主卧的卫生间布置方面,出了有干湿分离的形式,设计师将衣帽间的形式也整合了进去。二层的挑空层则做了水泥现浇面,增加出了一个房间的面积,设计师将这个空间设计成了书房空间。 再次,三层的功能主要针对业主的后代或客人使用,那么两个标注形式的房间+1个共用卫生间的形式完全满足了需求。

客厅效果图及设计说明

在完成了复杂的功能空间再设计后,风格的确认和氛围的营造成为了当务之急。业主本人更倾慕于现代风格的设计,作为美术老师的业主本人对于“点、线、面”的元素的敏感程度很高,所以设计师也对这三种元素做了重点的整合。即使是将挑空取消,客厅位置还是具有一个较为客观的挑高高度,在本案设计中,吊顶与背景墙的呼应连接是一个亮点。


餐厅效果图及设计说明

餐厅和厨房的结合很大一部分的原因在于业主未来的烹饪习惯可能会从传统的中式菜品中脱身出来,转而以西餐为主,所以油烟对于就餐环境的影响不会显得较为明显。

卧室效果图及设计说明

主卧和次卧较大的特点是采用时下流行的“无主灯”照明模式,与主灯照明利用一到两盏吸顶灯或造型灯来奠定整体照明基础所不同的是,无主灯则是以点状分布在天花板的小筒灯来代替主灯,在视觉及使用感受上不会受到阻碍。


卫生间

卫生间的风格参照现代轻奢风格,类似酒店的外灯带设置使档次骤然提升。



走廊

一楼的过道边设置的休闲区,除了满足业主的个人爱好,也设置了平时能够喝茶阅读的区域。

书房

书房的面积大小接近客厅,但是保证了一层客厅的高度后,书房的高度被限制,考虑到书房的照明需求主要是办公区域的照明,所以并没有设计过于复杂的吊顶,将照明的任务传递给了在墙面设置的造型灯带,配合筒灯形成的局部照明,从需求和美观上都可以完美保证。
