打造时尚家居,从黑白灰开始👍
郑州金螳螂家
2024-07-12
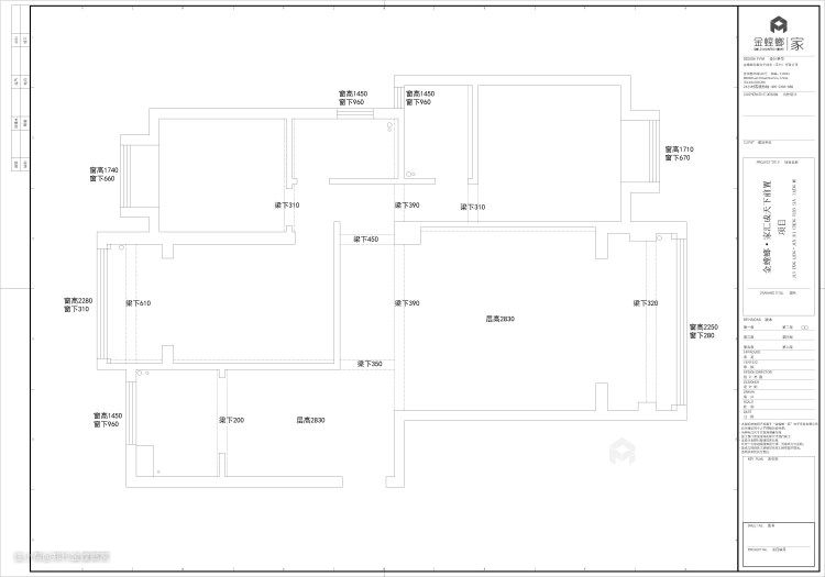
业主需求&原始结构图

我们纵观整体框架,其实该户型在有一个比较大的缺点就是客餐厅公共区域的布局不太合理,具体表现在客厅较大但是匹配的餐厅偏小,看上去是视觉上是比较不合理的,至于功能这款也是较为不合理的,再加上南北不是太通透的情况下用餐这块会也是比较压抑的。还有一个点就是主卧配置的卫生间偏小,不太符合正常使用的标准。

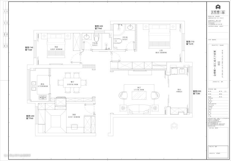
平面设计图及设计说明

在功能布局上就原始户型上分析的点做了一些调整,首先就是我们将餐厅这块地方的缺点改善,结合户型认为可以把原来北边的一个房间和现在的餐厅位置互换下,然后对应的把厨房位置做了调整,一是解决了餐厅位置的尴尬,二是让客餐厅变得南北通透,进户门的鞋柜功能也增配进去了,此户型最大的一个痛点就可以解决了。还有一个点就是主卫里面的卫生间偏小,这个我们就把卫生间南墙往南扩,就解决了这个问题。这个户型在这样调整完之后还是相对比较合理的。

客厅效果图及设计说明

客厅顶面简单直线造型吊顶,电视背景采用定制黑色木质材料与地面浅灰色砖相呼应,搭配简约的米灰布艺沙发,构成当下最流行的黑白灰。

餐厅效果图及设计说明

餐厅整体在黑与白的利落搭配下,亮色的点缀加上装饰画的融入可以带来居家的温暖感受,让沉稳与质感和温暖柔和达到平衡。

卧室效果图及设计说明

实木家具与床头柜,质感独特而精致,床头的壁灯能更好的营造温馨而安宁的舒睡氛围。在家居配饰中,每一个小物件我们都希望能留有故事和性格,表达主人的情感。
