简单装修,黑白灰现代风
郑州金螳螂家
2024-07-13
业主需求&原始结构图

业主喜欢现代风中表现出一些简单轻奢的时尚感,奢华但不过分;然后合理利用空间布局,让居住者更加的舒适与实用。

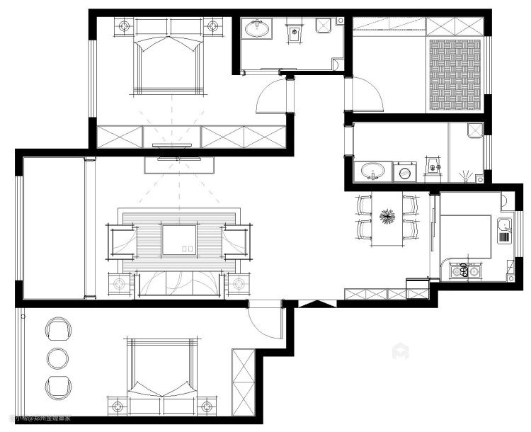
平面设计图及设计说明

平面方案,秉承为客户打造美好生活空间,让每一个空间合理布局,改造之后动线清晰。

客厅效果图及设计说明

所谓的奢侈,第一个浮现的场景是金灿灿的,越来越多的人舍弃这种风格,他们更宠——轻奢风格,现代轻奢风格是一种极致的简约风格,它摒弃了传统意义上的奢华,简化装饰,返璞归真,同时又给人时尚前卫、气质优雅,且不失温馨舒适的感觉。


餐厅效果图及设计说明

黑白灰的搭配,将展示空间呈现出最大化效果。没有一丝丝传统意义上的奢华装饰,却将“奢”发挥得令人感到舒适。


卧室效果图及设计说明

卧室作为休息放松的重要地点,即使是简单装修也不能够缺少基本的要素。所以在卧室简单设计时,需要考虑的因素就包括了灯光、床铺、衣柜等。这些物品虽然不需要太过复杂,只需要简单大方实用即可,但是却必须样样俱全,否则也就失去了卧室的基本功能。
