这本是一套145平套四双卫的户型
空间需求:
- 夫妻两人常住,未来五年才会考虑小朋友,预留一间房为老人房,方便以后照顾小朋友,短期内不需要多的房间
- 需要独立的衣帽间,女主人的衣物非常多同时考虑独立收纳储物空间
- 需要独立的健身房空间
风格偏好:
- 屋主喜欢宫廷风,金色元素居多,但不能过于复杂
因此,套四改为套二的户型,另外的两个卧室空间改为独立的衣帽间和健身房,健身房布置简单,方便以后灵活为卧室
项目空间:145平
项目地址:成都·信和御龙山
设计机构:卡普空间设计
服务类型:硬装+软装设计

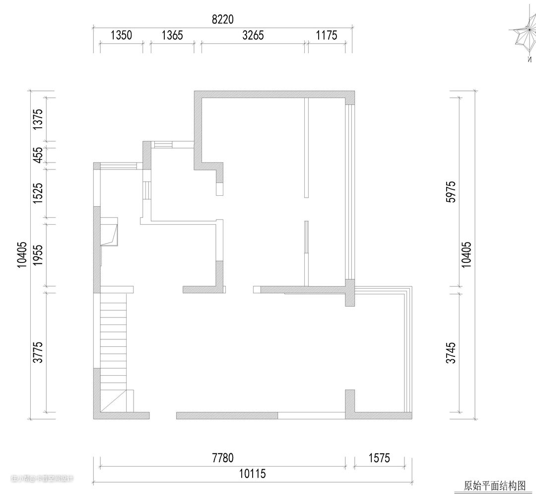
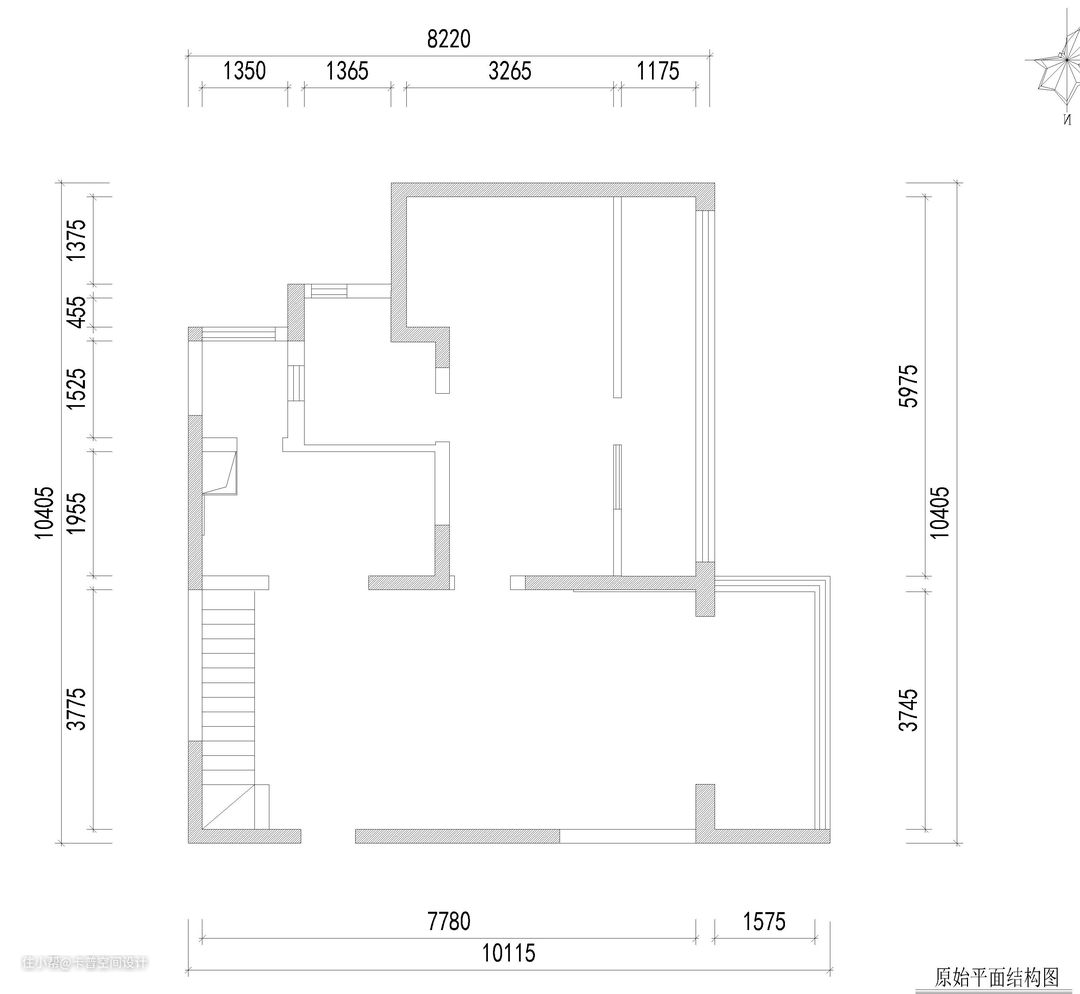
(一层平面图)

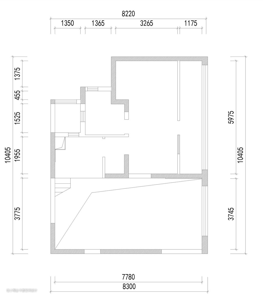
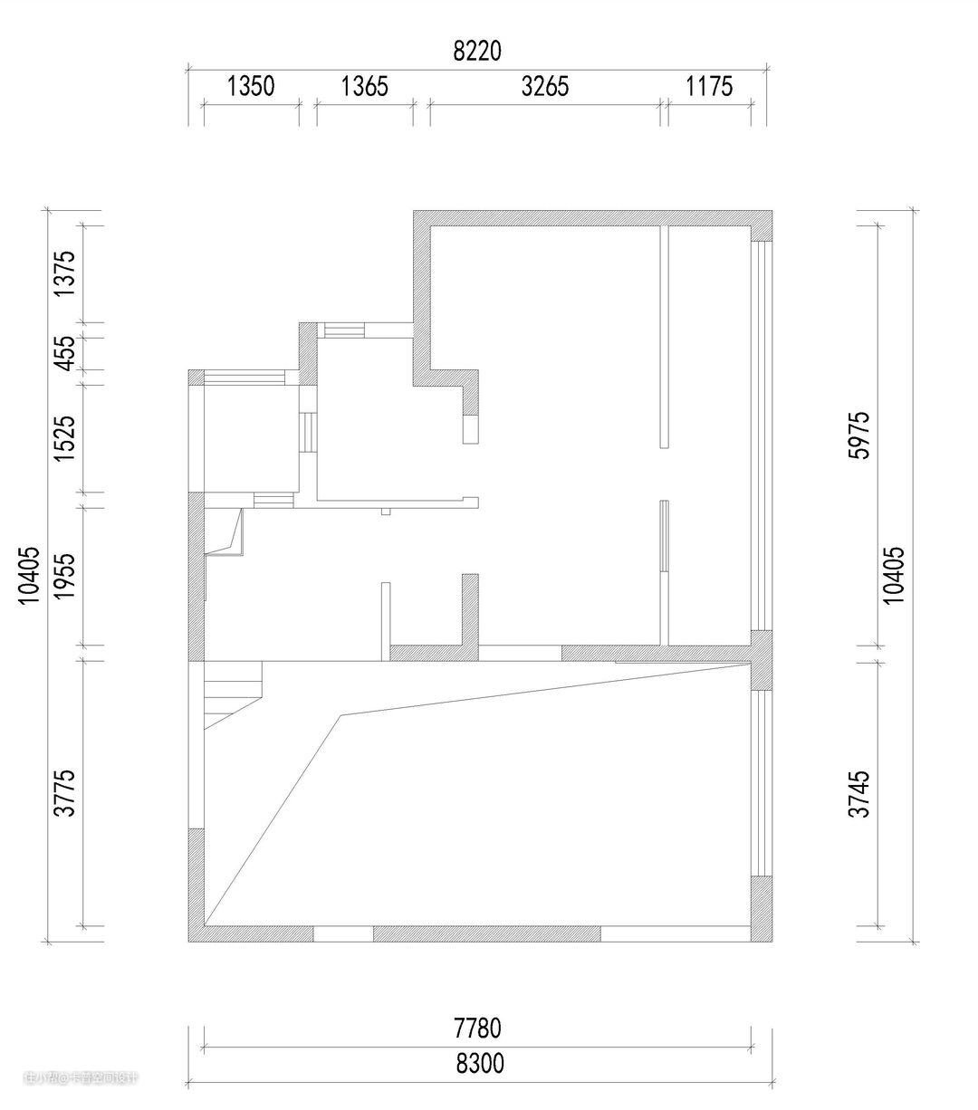
(一层布置图)
户型分析:
- 厨房占据了入户过道、阳台较大面积,空间使用效率不高
- 客卧空间比较大,只做卧室会很浪费空间
- 餐厅位置狭小,入户摆放餐桌后,客厅拥挤,狭窄
户型优化:
- 厨房不占用阳台空间,封闭阳台,客卫与阳台连通,扩大空间
- 厨房外扩占据入户墙面,定制一组储物柜与电视墙齐平
- 客卧空间分隔出餐厅,缩短厨房与餐厅的动线
- 入户玄关不设置餐厅,预留为未来儿童玩耍区域,避免客厅视觉变小

(二层平面图)

(二层布置图)
户型优化:
- 主卧床边定制衣柜,正面增加一组嵌入式柜子,增加储物空间
- 设置独立的衣帽间,方便起居生活
- 布置主卧独立卫生间和客卧卫生间,增加私密性
- 隔出健身房空间,同时定制衣柜,方便以后灵活更改为卧室

入户玄关预留为以后儿童玩耍区域,预留空间,不摆放家具家居,扩大空间视觉

楼梯柜设置为鞋柜+储物柜,节省位置,同时空间使用率高

(楼梯柜动态图)

入户吊灯为金色水晶大灯,配合地面与墙面的元素,搭配大气

客厅金色元素凸出,宫廷欧式风格沙发茶几,质感很强
沙发背景墙为实木护墙板上墙加上描金描银工艺造型


沙发的靠背造型凸出,漆面工艺沉稳,搭配欧式风格效果倍增

电视墙面简单,左右墙面定制的是储物柜,侧面可以打开收纳,正面假门加造型装饰,楣板为描金的龙凤造型

客厅波导线拼贴工艺,层次感强

考虑到餐厅空间较小,欧式家具尺寸偏大,一边背后设计为金色边框菱形玻璃镜子
玻璃镜面反射,增大空间面积

餐桌另一侧设置为酒柜带酒架,方便餐厅用具的摆放和收纳,顶线和罗马柱增加欧式线条感,立体效果强

欧式窗帘,花边和造型满满质感


厨房橱柜全套采用实木材质搭配描金工艺,高柜嵌入烤箱和消毒柜,方便厨房使用
地面和墙面都有拼接和波导线工艺,增加厨房的层次感
一层客卧

欧式沙发、水晶吊灯,定制衣柜同样欧式线条,床上用品匹配风格,整体统一

客卧空间实际较大,两面墙的衣柜,储物空间和空间使用率都很高,并不会拥挤

(二层楼梯)

(实木护栏,描金造型)

拼贴工艺,营造丰富的色彩感,使空间充满活力

(二层楼梯悬挂水晶灯)
主卧室

主卧室空间相当于两个次卧,在增加了侧面柜子后,空间预留仍比较大
为了让房间更有色调,索性增加深蓝色窗帘点缀搭配
与白色墙面和描金的护墙板形成反差


嵌入式衣柜,完全满足女屋主的收纳需求

主卧窗纱,欧式花边工艺

(主卧卫生间带浴缸)

上二层楼梯,展现的是开放式衣帽间,U型设计,空间利用率增加,收纳储物倍增
搭配的顶线和罗马柱加上水晶灯,让整个衣帽间整体欧式风格十足



衣帽间左右两边都配有全身镜,正后两面都能照到全身,方便日常着装的整理

(独立健身房)
未来增加小朋友,可灵活调整为卧室
- 基础装修:8.9万
- 宏宇瓷砖:1.2万
- 圣象木地板:1.6万
- 全屋衣柜橱柜木门楼梯:20万
- 定制窗帘:1万
- 网购灯具:1.2万
