今天这套房子的业主原本是住在六安的,由于父母和兄弟都在合肥,考虑再三,业主为了跟家人距离近点,同时也是为了孩子上学,于是选择了在合肥买了下面这套房子。

业主家常住的只有一家四口,由于小儿子还小,目前跟父母住,所以设计师选择了三房设计。虽然是毛坯房,但是整个房子还存在很多的问题。

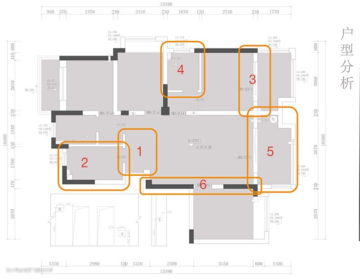
①玄关处没有收纳空间;
②厨房空间小,操作台面短;
③主卧想要打通阳台,但又存在很多问题;
④主卫无法满足干湿分离以及带有浴缸;
⑤传统晾晒方式影响美观;
⑥这面墙因为门洞位置的原因,不美观也很难利用。

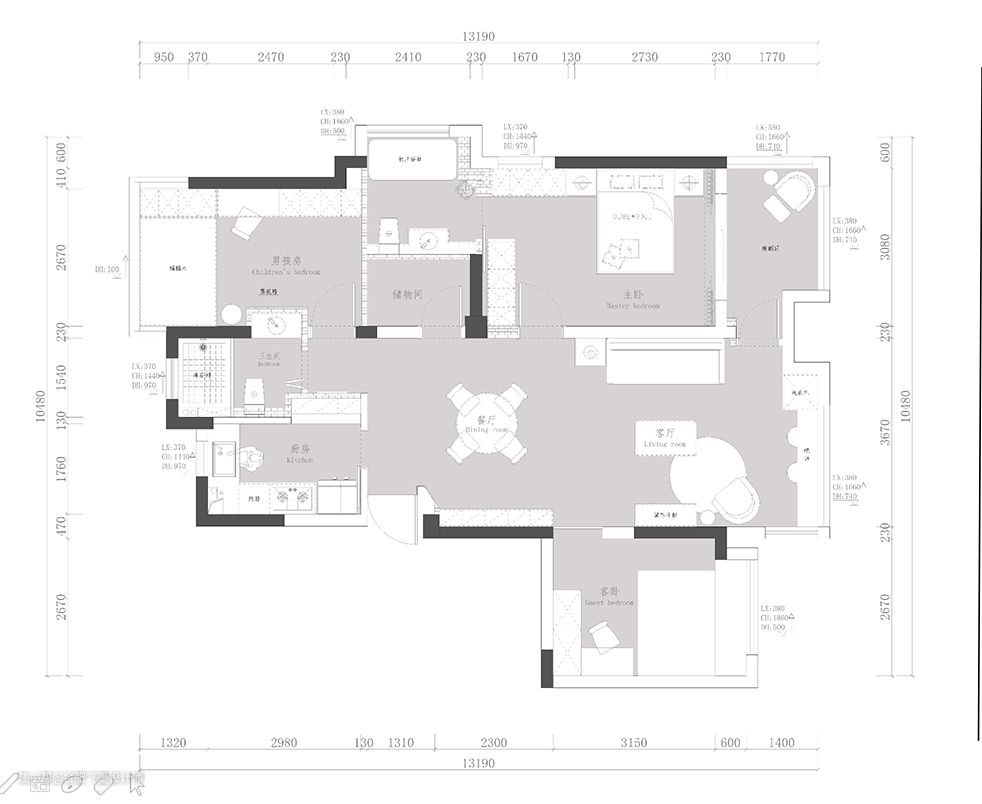
户型:三室两厅
面积:113平
风格:美式风格
半包:13万

房子的这些问题在这次改造中全都一一得到了解决,下面我们就一起来看看改造后的家吧!
家里进门就是餐厅,为了解决玄关收纳问题,设计师选择设计餐边柜,这样不仅满足了餐厅的收纳需求,同时也能满足玄关的收纳,这个柜子可以说是一物二用了。

另一边厨房设计,原本的厨房空间小,这次改造设计师借用了隔壁卫生间的空间,现在这个厨房一点也不局促,反而显得很宽敞,u型的橱柜设计实用功能超强,业主再也不用担心台面空间不够大了。

餐厅的另一边就是客厅了,这儿的空间并不大,只有一张简单的沙发靠墙摆放,客厅里也没有安装电视,对业主来说,这儿只是家里一起聊天聚会的地方,不管用哪个角度看都是一个字,美!




因为家里平时家庭聚会比较多,如果旁边的阳台用来晾晒衣服的话,真的会很影响美观的,业主完全不能接受,所以现在客厅窗户旁边直接设计的是个小吧台,不仅好看,而且家庭聚会的时候人多客厅待不下,这儿就是个好地方。


窗户上选择了百叶帘,它有两个好处,一是遮光性好,二是拉窗帘也比布帘要方便。

原本的主卧也想要将阳台打通,但这样不仅外面噪音比较大,而且还会出现横梁压床的现象,风水不好,最后设计师并没有选择打通,而是将外面的阳台设计成了一个休闲区,至于卧室里,设计师将原本的主卫空间全都包进了卧室了,空间一下子就变大了不少。

难道主卫就这样拆了?No,主卫只是被挪到了隔壁的房间,设计师将两个房间打通,这样一来同时扩大了两个空间,卧室有了收纳空间,卫生间也实现了干湿分离以及安装浴缸的需求,家里还是主卧带卫生间的格局布置。

因为大儿子在上初中,所以需要一个独立的学习和休息空间,设计师选择将北次卧赠送的阳台打通了,然后采用了地台床设计,同时实现了书桌,衣柜,床三大功能,不得不说这种设计真的很适合一些小户型卧室,功能超强大的!




①客厅背景墙做了隐形门设计;
②多处室内门应用玻璃门设计,增加室内采光。
○设计风格:美式风格系列
○设计团队:飞墨设计组
○施工单位:合肥飞墨设计
○半包价格:13万
项目地址:#合肥#-文一锦门北韵
全屋的柜体均为飞墨家木匠师傅现场手工打制
客厅沙发靠垫
客厅摆件装饰
吧台椅
客厅收纳托盘
客厅摆件装饰
餐边柜装饰摆件
北次卧边几
北次卧书椅
餐厅茶几
儿童房墙面装饰挂件
