项目地址 / Address:保利两河森林公园
项目户型 / House Type :别墅
设计主创 / Design: 吾隅设计
项目面积 Area / 330㎡
项目费用 / Price:110w(硬装➕软装)
服务模式/Service Pattern :全案设计
品牌支持/Brand :yepom / BIEN家居 / 必美地板 / villeroyboch / 暖心瓷砖 / 泰桥布艺 / 舒梵 / minimore。
2018年我们接到设计委托的时候房屋已经开始施工,因为随着施工推进,房屋女主人越发觉得不是自己最初想要的家的模样,所以叫停了工地。通过朋友介绍找到了我们,当时房屋已经完成了土建,屋主希望在不大动格局的前提下对房屋进行重新设计,希望我们能完成她的初心。房屋女主人是两个孩子的妈妈,她主要负责照顾两个孩子的日常,和爸爸的起居,因为爸爸工作原因相对较少在家,所以我们把设计的切入点放在了妈妈身上,待在家时间最长的她,最了解家人生活和空间紧密关联。
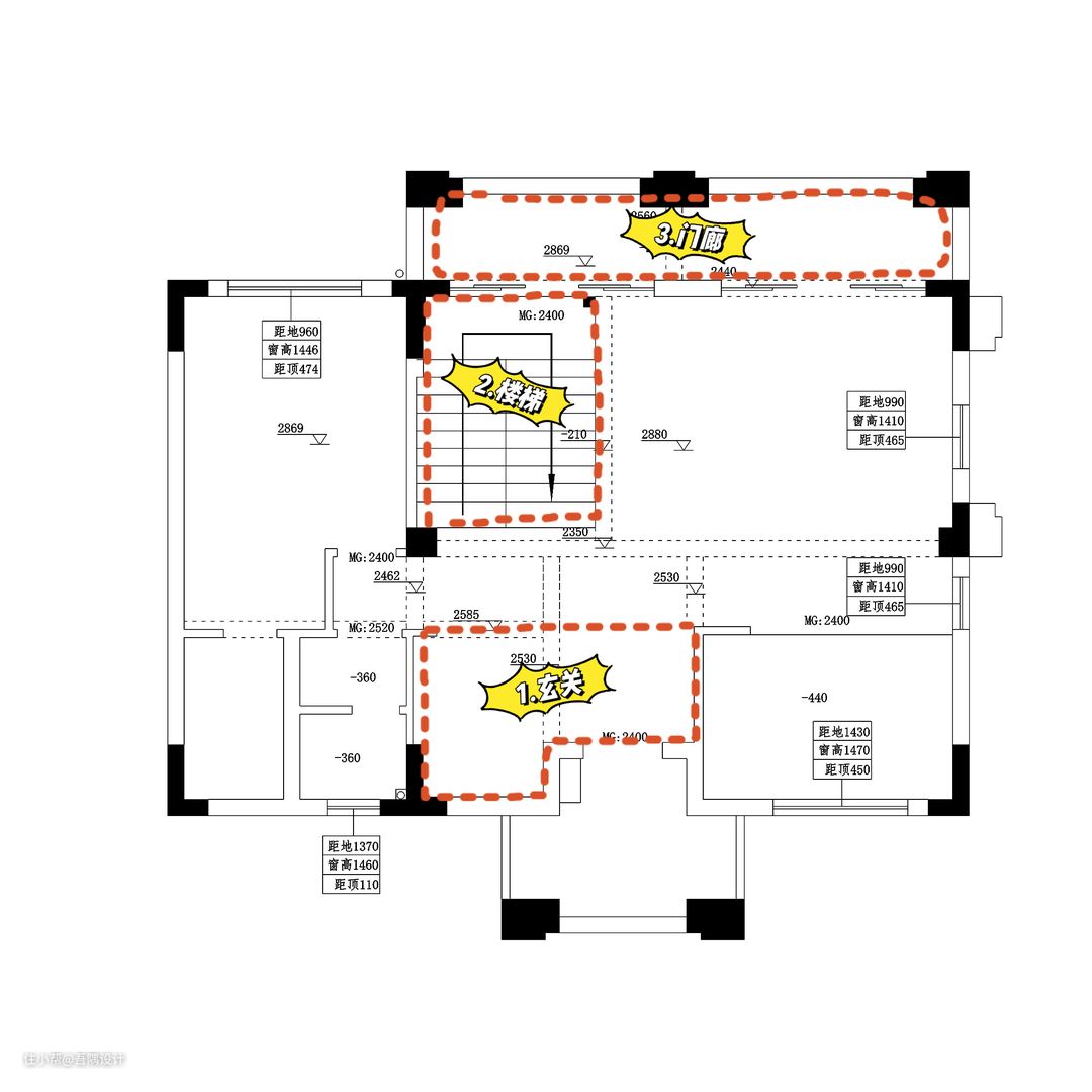
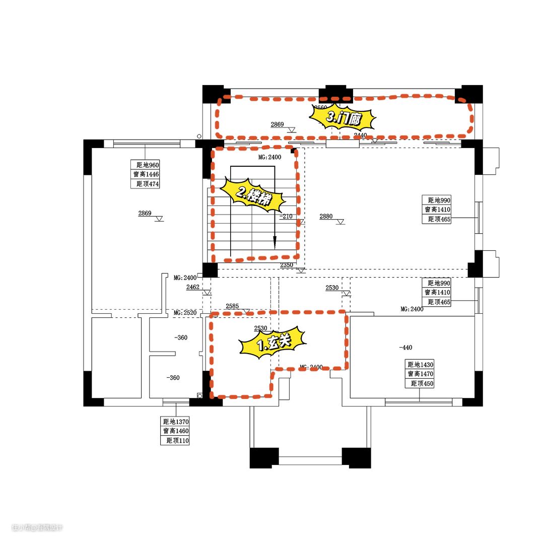
一楼原始平面图


一.玄关玄关面积约7.5个平米,缺少实用性;其次玄关处于完全开敞状态,没有视线过渡,入户后整个起居室空间即一览无余。

二.楼梯楼梯处于整个房屋中部,体量相对较大,楼梯侧面和底部空间比较鸡肋和整个公区空间缺少关联。

三.门廊门廊长7.9米宽1.3米,隔在起居室和花园间,不但没有起到衔接作用反而影响室内的采光。
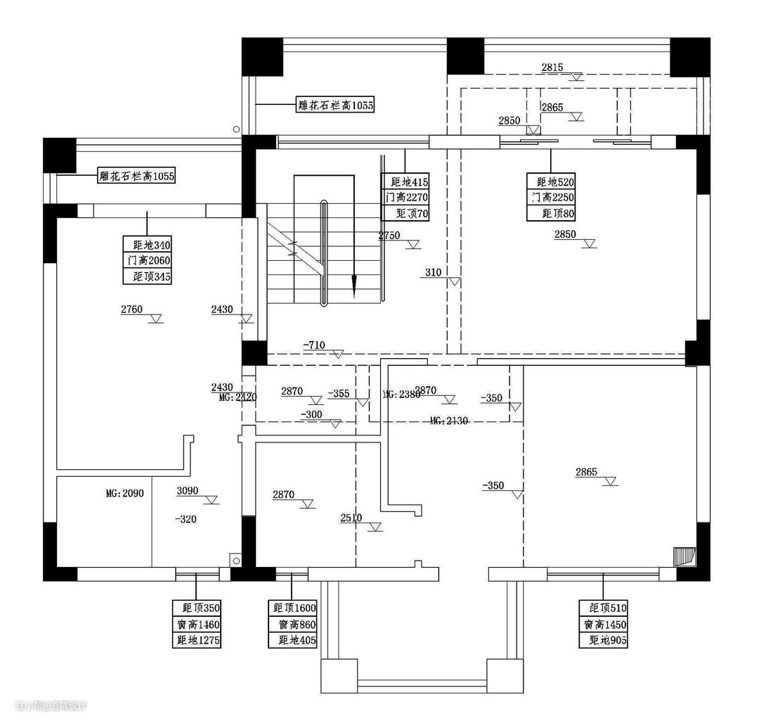
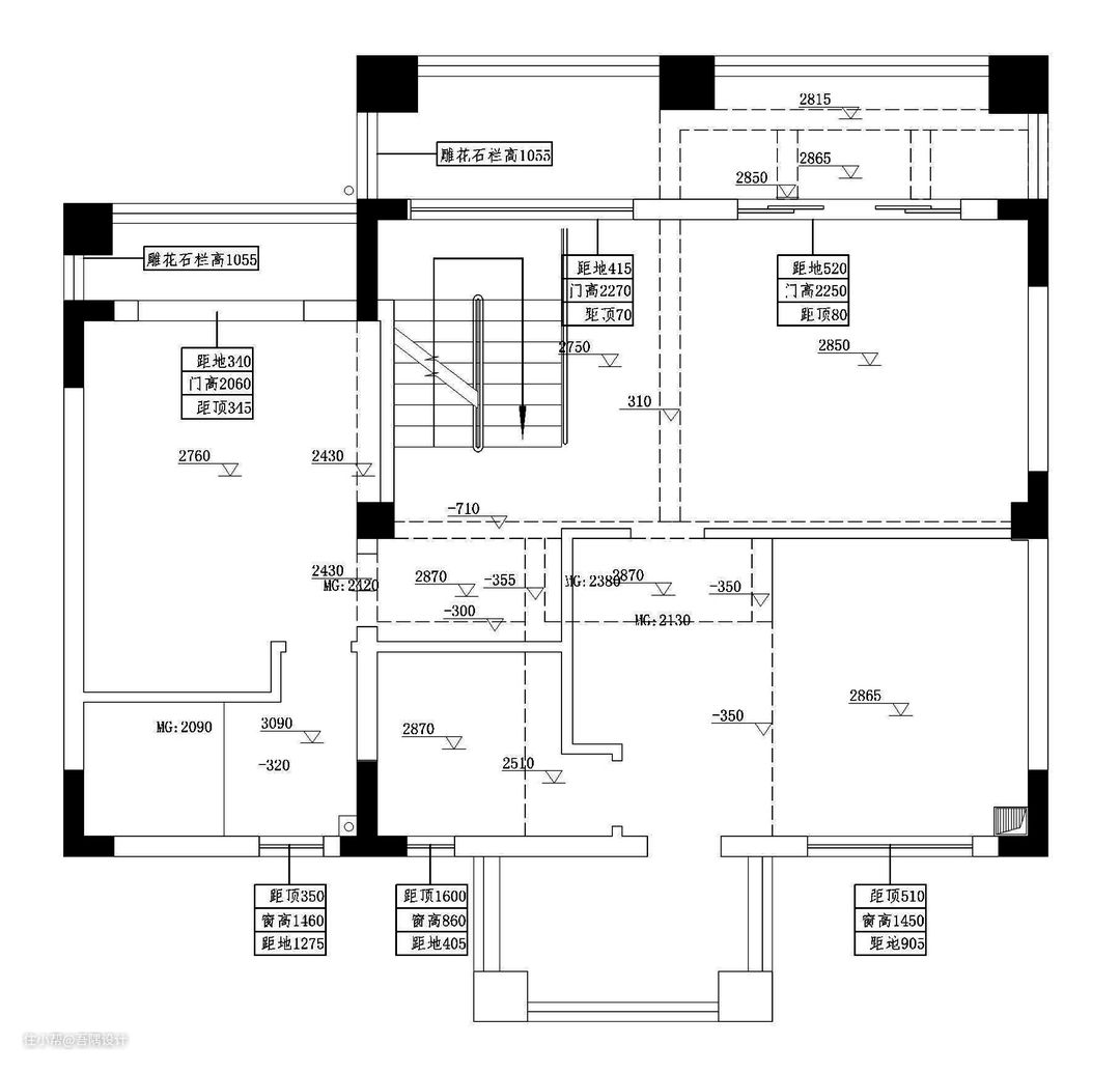
二楼原始平面图

二楼格局满足屋主设定的亲子空间和孩子的卧室格局,所以在空间上我们没有做变动,更多考虑空间可延续性设计和局部功能的丰富。
三楼原始平面图


三楼主要是屋主的卧室空间,另外还有个露台,大概18个平方,如何使用增加三楼的功能性和提高空间价值。
一楼平面布置图


在玄关与起居室之间用老砖墙做了空间的划分,并带出进入起居空间的过道,老红砖质朴的自然感让每个走进来的人都会不自觉的去触碰它。利用大面积长虹玻璃➕铁艺格子窗既让视野有所延伸,又保留了起居空间的隐私。鸵鸟自古以来是吉祥鸟的化身,所以我们特意在入户处挑选了ibride的鸵鸟边桌,希望能契合妈妈对家人出入平安的期许。

利用墙体退让出的空间,我们设置了“L”形的玄关收纳单元,不要小看这组柜体,它的容量大概是100个20寸登机箱的储藏空间。卡座长度可以轻松坐下三个人同时进行换鞋。

因为房主家人都喜欢阅读,有大量藏书,我们利用楼梯原本墙体结构设置了书柜,让大人小孩都有便于自己取放书籍的区域,增加了楼梯动线拿书的的实用性,大人小孩都可以把楼梯当作阅读阶梯,边走边抽边放,也是家动线上的装饰布景。

在大人看来楼梯下部异形空间是比较鸡肋的,但在孩子眼里却是宝藏地带,我们定制了橡木格栅围合楼梯区域,使楼梯立面看起来更加整体,但又保证了视线的穿透,弧形门洞的加入给整个楼梯底部空间带来更多趣味。

由不同形状门洞串联的楼梯底部空间,看似不稳定的异形空间,往往是孩子最喜欢的“秘密基地”,这里也许成为他们童年的美好回忆的一角,avarte的鲸鱼懒人靠包,深得孩子们的喜爱。

我们把楼梯区域都整体抬高了15cm,通过抬高界定这个孩子的玩乐和阅读空间,也从视觉上让整个楼梯区域变得更加轻盈,加入了攀爬钉的楼梯立面,又给熊孩子带来了一个惊喜,为了能在这个区域看护孩子,我们在窗户处设置了一个卡座,大人可以在这里阅读和陪伴。

我们把原本在花园的门廊加入到了室内起居室空间,不但大大提升了起居室的采光,也使得原来不算开阔的起居室得到了拓展,丰富了空间的动线设置。顶上两边对称的过梁离地高度只有2.35米,如果统一下压吊顶难免压抑,所以我们采用回收的老木板对两根大梁进行装饰和弱化,老木板特有质地塑造了平和宁静的空间氛围。

起居室按照妈妈的意愿不设置电视,她希望这里是留给家人相互陪伴,促进家人情感,或是能好好放松下来阅读的场所,窝在沙发,一壶茶一本书,让阳光在家中恣意流淌。

照片这个角度是站在餐厨空间看起居空间,最大限度的减少了视线死角,女主人很清楚自己的习惯和需求,因为两个孩子还年幼,她希望在餐厨做家务的同时能照看孩子,设计之初女主人就希望客厅、餐厅、厨房形成密切的联系。

下午三四点钟的阳光,缓缓渗过柔软的白纱,轻盈的落在椅子、地板和墙面,让这个角落有了它自己表情。

我们把水槽设置到了有树景一侧的窗边,在葱郁清凉的绿意映带下,让水盆区的家政也是轻松愉悦的。

开放式厨房选择漏斗式的油烟机,造型上比较利落也方便清洗,8个平方左右的厨房选功率180W的机型即可。洗菜和切菜需要弯腰,腰椎负荷大,炒菜需要抬胳膊,肩膀容易疲劳,所以我们把水盆柜和灶具柜体高度根据女主人身高进行定制做了高低处理。【地柜高度最好以手肘抬起操作时,离台面100-150mm距离为佳】

从厨房延伸出来的地柜连接着餐桌,大儿子下午放学后可以在此做功课,餐厅和厨房结合,女主人也能兼顾孩子的学习情况。在茶余饭后,家人闲聊日常琐事在此展开,欢声笑语与目光的交汇都是他们生活的模样。

开放式厨房和餐区的紧密关联,使得一日三餐更有乐趣,深蓝色橱柜是用女主人喜好色定制的,在自己喜爱的颜色下制作美食是一件幸福的事。

在通往卫生间的走廊尽头选了弥生志的挂画,因为走廊较长我们通过这样的软装手段来降低经过走廊时的冗长感。

客卫只有2平米,我们设置为马桶间,用波浪面亮光的墨绿色墙砖搭配黑白拼花马赛克地面拉出空间感并提亮空间,盥洗台下方搁板可以搭配藤篮,用于日后收纳的拓展,如马桶纸巾和日化用品。


一楼客房是女主人为双方父母准备的,墙面配色是cf18“欢迎回家”的主题色-暖木棕,色调偏软,属于温暖感强烈的颜色,为老人房注入了宁静的包容感。


二楼算是整个房子的第二起居室,空间功能主要是亲子陪伴➕两个孩子的卧室空间。利用墙角设计了一个树屋,隐蔽了构造柱的同时制造了有趣的空间场景。


我们希望家里的攀爬墙,“秘密基地”,“树屋”都成为他们美好的童年记忆的闪光点。而孩子每一个好奇的眼神、纯真的笑脸、澄澈而透明的心灵,这是作为本案女主人 | 孩子的妈妈,想要感激和守护的。

亲子空间有20个平方左右,比较宽敞,我们刻意保持了些空间未完成的状态,这样可以随着孩子的成长而做出变化,大人小孩都可以席地而坐展开亲子互动。



两兄弟都房间采用了相同的配色,都是依照他们自己喜好决定的,暖木棕墙面与湖蓝色柜体与良好采光一道让房间显得明亮活泼。

儿童房卫生间是用充满阳光活力的橙色和灰蓝色搭配,让卫浴空间变得活泼有趣起来。


三楼楼梯间拥有大面积采光和层高的优势,以百叶窗框构架出空间的层次,百叶可以调节角度引入光线,让楼梯空间更加舒适。


主卧空间我们延续了屋主喜好的湖绿色,搭配了深蓝色的丝绒布艺,鱼骨铺地板的温润,让人回到卧室可以自然放松,深蓝色丝绒的窗帘和床档营造空间的复古和高级感,但一切都看起来简单,舒适,自然。

衣帽间做了双开门的折叠门,看起来优雅大方,折叠门上半部分加入了长虹玻璃,让视野可以得到延伸,光线可以自由的渗透,放大了空间感受。

我们利用床尾空间规划了一处卧榻,卧榻下部空间作为小件衣物收纳,用两扇折叠玻璃木门实现空间的开合,屋主夫妇可以窝在这里阅读、冥想或是彼此促膝谈心,享受恬静时光。


每个人仿佛都需要一块属于自己的居心地,放松,抚平,内观。当我们感到平静,也是体察到自然与生活相融之时,看到日光洒落在桌子,地板和墙面上就能感受到这里的平和与包容,就像《人生果实》的电影里那句:「在这种安心中度过每一天,比什么都要美好」。

主卫空间比较宽敞,安放了双人洗手台面方便屋主夫妇从容使用而不显得拥挤,造型简约的黄铜球灯对称排列,称职的提供着镜前妆容的照明。利用楼梯下部空间嵌入浴缸功能,在一天忙碌后屋主可以用泡澡的方式舒缓调整疲惫身心。


露台空间的使用,我们和女主人沟通后把它变成了一个多功能的书房,大人可以在这里轻办公和无器械运动,更重要是希望孩子们也可以在这里找到自己的兴趣所在,不管绘画还是手工,启发他们对美的感悟,今后这里充满怎样的欢乐和创作,让人期待不已。
