新房装修,首先绕不过的话题就是:房子要装什么风格?
许多家庭首选现代风格,毕竟现代风格是近代工业发展的产物,以简为美,符合大众审美和功能需求,再者,工艺也没欧式、中式等风格繁复~
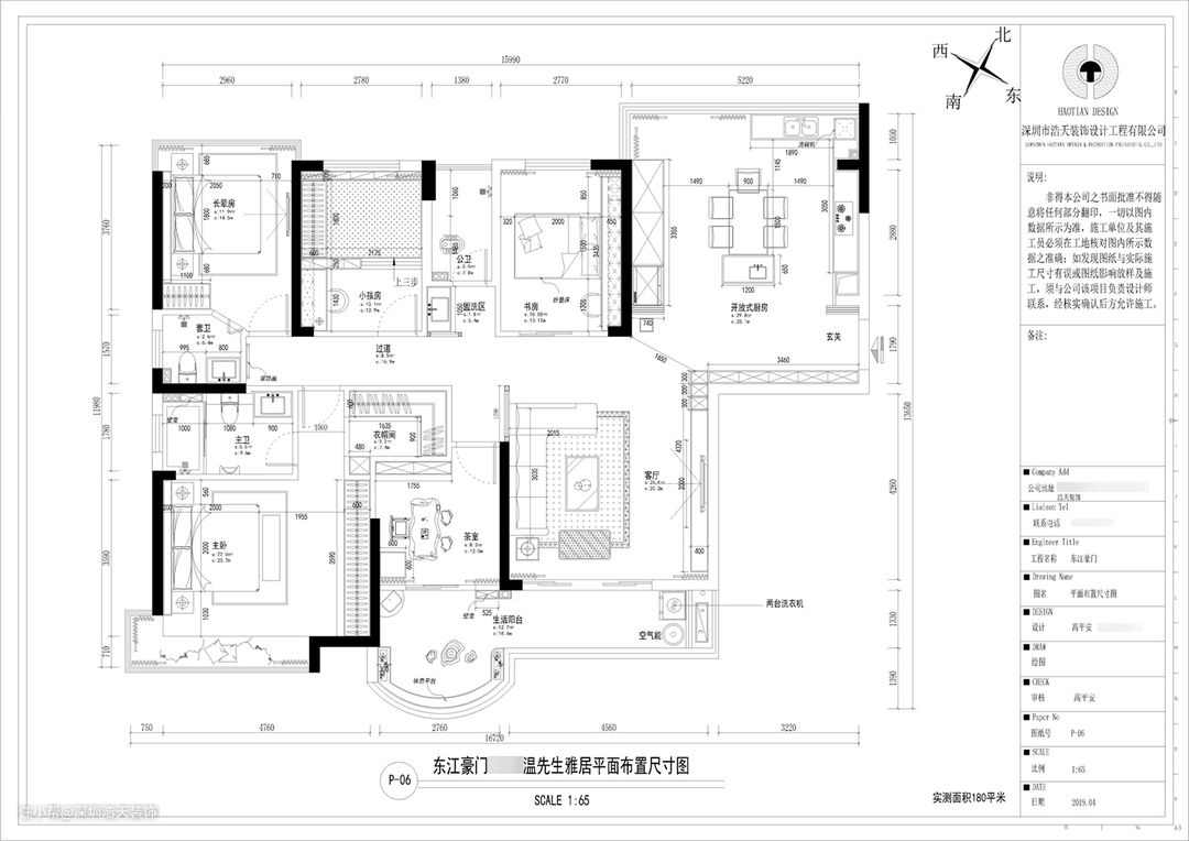
本案就是采用现代的风格装修,简单却不单调。


①餐厨的位置拆掉空间里所有墙体,打通餐、厨、生活阳台三个空间,做餐厨一体设计,整体空间更加宽敞通透,规划得更和谐统一,生活气息十足,还有超强的储物收纳
②主卧借用茶室的部分空间,改造出独立的衣帽间,何尝不是满足了女主的一大心愿。新建墙与承重墙一致,拉平墙面,使空间更方正,“回”字型动线清晰合理。
③长辈房更改门洞位置,规避卧室门直对入户门,卫生间门做斜开设计,保证有足够空间设置衣柜,增加收纳功能,也避免了厕所门直对床的情况。

推门进入干净的黑白灰空间映入眼帘,左手边是通顶的三米多的鞋柜,满足一家人的收纳需求。包括换季的收纳都不在话下。中间做镂空设计,摆上些旅行带回的纪念品,加一个钥匙框,随手收纳也是十分的方便。

这个角度,已经可以看到餐厨的全貌了。为了扩展空间有不至于炒菜时的油烟味扩散,餐厨区做了窄边推拉门做隔断,炒菜时关上,闲时打开,颜值在线的同时不阻挡光线。玄关、走廊视觉体验感也随着上升一个level。

橙色的沙发对着玄关方向,家人归来第一眼就可以看到的安心,被设计师给暖了。沙发后的是带着简单线条的半透明的隔断,使空间增加了通透感。

客厅整体空间线条简洁硬朗,成熟优雅的香槟背景色,奠定了空间低调优雅的基调。搭配上舒适的皮质沙发和木质家具,打造出一个个性十足而又现代时尚的家。

十足的采光让整个空间更加通透明亮,摒弃琐碎,留下纯净,现代风的质感和雅致给繁忙都市生活赋予宁静轻松的舒适感。放眼看,书房和餐厨空间都采用黑色的透明推拉门,中间的墙体悬挂着别致的钟表,装饰意味十足。

客厅是家人的聚集之地,人手一部手机的低头族习惯似乎逐渐代替了家人间的闲谈,也有很多家庭取代了电视的位置。但这个家却装备齐全,且放大了电视的存在,家人饭后一起观影的温馨仿佛浮现眼前。

餐厨一体的设计很有创意,增加空间体验感的同时,让爱延伸。空间上更加宽敞,采光与通风得到改善,空间利用率提升。做饭时,爱人帮忙摘菜,做烘焙甜点时,孩子一旁温书写作业,甚至它还可以是一个办公区。

餐桌边上增设了小吧台,也是帮厨的好地方。

三米多的通顶餐边柜,黑色的把手点缀,使其没有那么单调。融入了双开门冰箱,使整个空间协调统一。

因为餐厨一体的设计,好不容易找到了单独厨房功能的角度。1.8米+3米的L型设计,灶台后方就是餐桌,操作方面,开放的空间也绝没有辜负热爱美食的屋主。

被压缩空间的茶室虽然小了些,但足以两三好友畅谈。与生活阳台推拉门之隔,风景无限很是惬意。

主卧采用木饰面的护墙板作为床头背景,布置上禅意舒适的矮床,在无主灯的灯光氛围下,带来一个舒适静雅的睡眠空间,置身空间,卸去一天疲惫,身心愉悦。摄影小哥太高了,这神似摄像头的角度……也刚好可以拍到全貌~

床尾正面墙的衣柜设计,白色和木质的结合,简洁而不单调。衣柜顶层和床头的灯槽设计,加之无主灯,将卧室的休憩氛围渲染的十分到位。

矮床的设计,也一定程度上放大了空间。简洁的床品,满足睡眠足以。

衣柜给你们看一下细节,还是超爱把手的设计,装饰性极强。


卫生间采用港式设计,比如做了一些细节的男士专用的设计,安装黑色复古淋浴花洒,墙面铺贴仿大理石瓷砖,现代风带着些复古。


长辈房以温和的暖色调为主,同样是一个套房,方便老人夜间上厕所,床头转角位设计一个平开门衣柜,放日常的老人的衣服。

房间面积较小,采用床柜合一设计,增大收纳储物空间,每一寸空间的功能也都被规划得明明白白。搭配上纯净的蓝色床品、窗帘和书桌等,来展现出儿童房活泼烂漫的童趣。

书桌没有设计为一体的,随着年龄段选择书桌,给孩子一些仪式感还是要的。上方不同形式的收纳,满足不同物品的需求,从小学会摆放也是必要的。

上床的踏步也是收纳的好地方~

由于家中人数较多,公卫设计了独立的干湿分离空间。高峰期也不会影响实用。

生活习惯不同,三个卫生间,公卫采用蹲便的设计,节省空间。时而留客,实用起来也不会尴尬。
