对于每一个以自住为目的“刚需”来说,收房,都是一个值得期盼与激动的时刻。但自2018年起,在成都购置的新房大多只能以精装房的形式购买了。对于购房合同内,装修单价接近于3000/m²的价格,本喵对这套期盼已久的住房 “精装房”,内心充满了期待,也同时怀着对官方给出的“精装””诸多忐忑与担忧。
这次整体改造的费用非常实惠,在精装房的基础上只是按设计师要求改动了灯具以及墙面的颜色,其他全部都是设计师提供的软装,其实装修改造只用了2万不到,全屋软装整体花费也不过11万左右,所以算是给我节约了不少精力和钱。

收房的日子终于来临。怀着无比激动的心情,第一次踏进家门的那刻.....本喵便毫无招架地“跪倒在地”!一切的期待与畅想,都变成了冰冷冷的现实。放眼望去:三星级酒店大堂地砖,九十年代的瓷砖拼花,夸张的纹路镶嵌于土黄色房间木门,脚踩在我这个外行人都能识别出的蜡黄色低端强化木地板......本喵眼冒金星向后踉跄了几步。
面对着已摊付了高昂的装修单价而仍在滴血的心,另一个更大的问题,现在正冷酷地摆在本喵面前——住,下不了脚;拆,钱包不干。不敢看,不敢想,可怎么办!怎么办……?
面前的“惊”装房越发显得无辜,好像在对本喵说“未来的日子我想陪着喵过,救救我,我想成为喵喜欢的样子”。
逐渐平复了愤慨、“激动”与哀默的心情,我打算静下心来冷静分析眼下现状与自身诉求:
● 火速搬家至新居的意愿,从时间和金钱上都不允许等待。
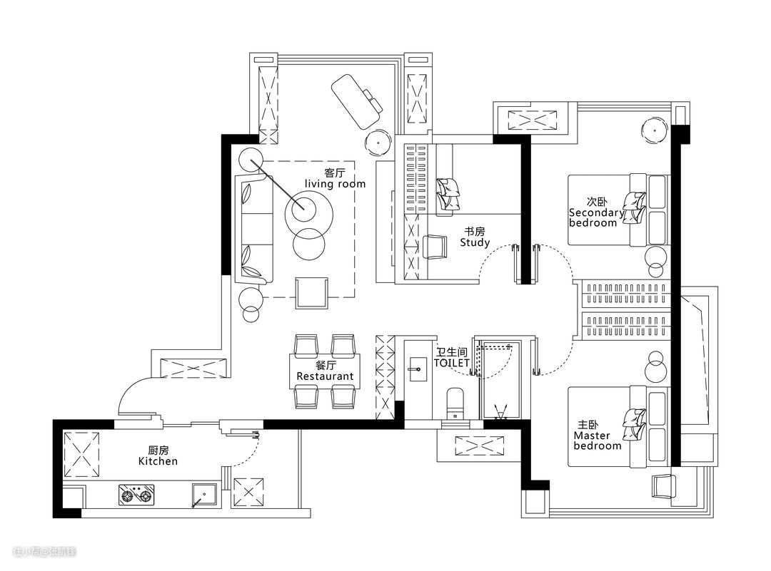
● 对于一个格局、硬装已定型的小套三,怎么变化才能将空间利用的淋漓尽致,既满足需求又不显局促?
● 根据以往的装修经验,深知不能凭着脑中的想象和冲动而采购、布置。(毕竟现在旧家中,还残留着许多长年仍没开封的材料与软装)
● 希望尽可能避免屋内有更多开敞、外露的地方与飘灰的室外接触。毕竟本喵身为一名80后职场“白骨精”,每日事务缠身,疲于工作,回到家后,每天干家务?不可能存在的!!
● 怎样将这个“惊”装房风的小家,改造成一个洋气符合新一线,实用合理、温馨精致配本喵的私人空间?
综上所分析,答案呼之欲出。找一位靠谱、有品位的设计师沟通、帮助,于当前是非常非常非常有必要,也是当务之急的事。
设计师就像本专业领域的外科医生,迅速的对现有精装房进行诊断分析,再结合本喵的诉求及实际情况的整合,最后给出了最令本喵满意的救援方案。以下内容千万别眨眼,精装房改造之路及干货输出正式开始!
想法:现代冷色调,可放零食、酒水的柜子,又可收纳大型物件(例如28寸行李箱,戴森等物品)
改造点:原开发商安装的推拉门,造型普通、老气,隔断了客厅与阳台的空间,改造时将其拆除;将阳台自行封窗,抬高地坪至与客厅一致。连通客厅与阳台的空间,将其一体化的改变,使房子公共区域的空间感瞬间增大了一倍。

(改造前状态)

(改造后状态)
进门后第一视觉,首先要自叹一声,真好看啊!一套半透明半封闭的订制餐边柜,内含落地灯和灯带,在满足采光需求的同时,又显得高档有艺术感。大理石餐桌(桌脚一定不要复杂),现代简约式餐椅,北欧风黑色餐灯,内里有白色陶瓷的细密雕花。


乖乖喵也喜欢的不得了。


灰色渐变。其实从一开始,我是真的有点难以接受的。甚至一度还不客气的diss设计师说“这不是黑板or国旗吗?”然而最后,本喵被快乐的打脸了。事实证明——设计师永远是对的。最后现实呈现出的效果,真的好看到哭泣!



当将买来的简约式皮质沙发,千鸟格单人座,黑白纹大理石茶几,灰白机织地毯一组合。请恭喜我,三星级酒店大堂地砖已完全看不到了。


客厅没有设置专门的顶灯,而将四周射灯的光源换为更柔和的暖色调调,沙发与墙角间的落地式钓鱼灯风格简约,颈部大曲线的造型综合了家具线条的硬朗。


以上家具的搭配,线条简洁明朗,颜色与墙体相得益彰,使整体感觉显得大气又不失温馨。

过道也将灰色进行到底。
原图就不放了。请自行脑补蜡黄色的木地板,土黄条纹的门,惨白的墙体,实在不愿更多回忆。
主卧毕竟是人休息入睡的地方,所以风格设置的温馨,且主色调采用了时下最流行的橘粉色与浅灰撞色的设置,简直深得我心。浅灰色的衣柜与梳妆台,皆为订制,色调与整个房间一致。



之前一直在纠结,其中一间客房到底是做衣帽间还是榻榻米书房好?直到参观了邻居家功能单一、颇为鸡肋的衣帽间后,个人还是觉得榻榻米+书房的选择是最明智的。毕竟,榻榻米的床下、墙柜都能提供充足的储藏空间,堆塞那些并不常用的东西,而与此同时又有了放书及学习环境。两全其美!


与客厅色调一致的灰色墙体,千鸟格花纹的双人床,浅灰色定制衣柜,简约的床头柜(我不太喜欢带抽屉床头柜。毕竟,人是有多少抽屉就会塞多少东西的生物,没有抽屉正好可以践行断舍离的意志。)


全屋采用了灰色调为主。而与收房时,从原开发商那里接手的东西相比,结构与风格上只变更了墙面,再其次就是根据设计师的建议做了柜子,采买了家具等。
划重点:
没有过多的添置软装。软装对于曾拥有过装修经验的我来说,实在太多余了。一是懒得擦灰,二是看久了便会审美疲劳,最后变为闲置,导致家里的东西是越堆越多。经过这次的体验,深深地的觉得,对于一所不太满意的房子,可以不用先急着装饰、改风格。一位有品的设计师,及他依着整体设计的基础对你在家具采买上的推荐和指导,依然可以达到整体风格和谐的转变与提升。
以上就是木子喵呕心整理的房屋改造历程,从开发商给出的“惊”装房到设计师提点后的精装房,没有过多的软装花销就改变了房屋的风格充实了其功能。
如果说在你的收房途中也遇到了和本喵一样的遭遇,不要心累着急,从“惊”装到精装就只差一个靠谱而有品的设计师而已!
撰文:木子喵
