
经历了100多天的漫长假期
武汉终于迎来春夏热烈的美好
和季节一同到来的还有缤纷的色彩
今天的这个作品
用色彩演绎生活的勃勃生机
让那些平淡的琐碎与日常
拥有了怦然心动的瞬间
❤初次见到Joe和Shirley,就知道他们的家一定会很特别。长期跟奢侈品牌打交道的两个年轻人,有着不一般的时尚品味。果然,当设计师问到设计需求,他俩一起不假思索地说:”好看!“
哇偶,第一次有屋主可以任性地把“好看”放在第一需求,年轻的后浪们,非常清楚自己想要的是什么,可以完全按自己的想法,把生活安排得明明白白!
于是,这个新家有了摩登的色彩,优雅的曲线,大胆的撞色,以及水磨石,丝绒,黄铜,镜面......等等一大波时尚元素。同时,设计师很好地把控了各种元素的比例,让这些混搭丝毫不显凌乱,反而用色彩撞击出高级感,成为唤醒寡淡日常的一记有力暴击!
时髦精的家,会是怎样的?一起来
解 锁 春 夏 限 定 色 彩 密 码

时 尚 · 复 古 · 有 趣
地址|Address:华生城·首府
面积|Area:85㎡风格|Style:现代混搭
户型|House Type:两室两厅一厨一卫
设计|Designer :诗享家设计
软装|Soft Outfit:诗享家宅配
摄影|Photography:梵镜空间摄影
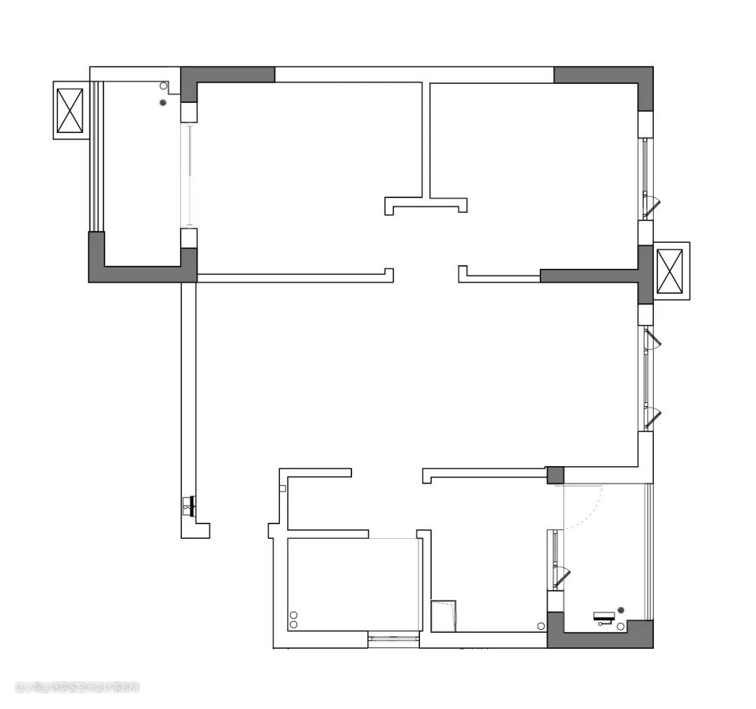
原始户型整体格局非常方正,但也存在一定的缺陷,比如楼层较低(2层),采光较差;厨房较闭塞,让人觉得压抑;北面小阳台使用不方便,容易造成面积浪费,因此我们对整个空间进行了梳理与调整:


//拆掉墙体,引光入室
· 拆掉了餐厅与厨房之间的墙体,引光入室,并将阳台打通,厨房的采光得到了补充,同时还扩大了使用面积;
· 舍弃主卧常规的平开门做法,拆掉正靠近客厅的墙面,整面墙体采用黑色细边框搭配长虹玻璃,让空间更通透又不失私密性;
//调整动线,化零为整
· 借用客厅的面积设计了玄关,用玻璃做隔断,设置玄关柜,方便日常外出物品的收纳;
· 卫生间把过道的空间并进来,增加了浴缸,完美的满足了Shirley的要求;
· 把原本两个卧室中间的过道融入主卧,优化了卧室的空间感。
色块 · 曲线 · 撞色
Living room

· 随处可见Joe喜欢的收藏:造型别致的烛台、文艺的素描画框、复古的丝绒餐椅,水泥花盆里的绿植......主人的审美趣味是家的灵魂,那是一种专属于他们的特别质感。

· 极富韵律的曲线元素也是这次设计中的亮点,从造型的精致弧度,到优雅线条的吊灯,再到充满趣味的拱形镜面,拓展空间感的同时,也能借助镜面的反射引光入室。

· 经典的灰粉配色让空间显得年轻有活力,而材质的质感则很好地烘托出色彩的表现力,再点缀少量的宝蓝和黑色,更显时尚。

· 每一件家居小物,都来自Joe的精心挑选,颜色,造型,材质,手感......男孩子的温情和细腻,可能不在语言上,“做”往往比“说”更动人~~

· 各种材质的巧妙混搭兼容了优雅复古、简洁时髦等多种气质,让家更丰富有趣。

· 跟大多数女生一样,Shirley的心里住着一个小公主,轻盈的纱质帷幔,隔绝了喧嚣,特别适合静坐一旁,发呆,做梦,与自己好好相处。

· 精致有趣的小物件,是主人从各地带回的战利品,留存着他们或热烈或甜蜜的回忆。

· 优雅的法式线条,精致的餐具,Shirley用心布置的餐桌,让生活有了更多的仪式感。细碎生活里闪闪发光的片段,也许来自于一次美好的晚餐,一个温情的角落,一次推心置腹的交谈。
02
开放 · 清爽 · 有氧

· 拆除墙体后的厨房,显得格外通透和清爽。Joe和Shirley的饮食偏西式,非常喜欢吧台的随意感,一碟小点,一杯红茶,就着窗边微甜的风,安心享受属于两个人的怡然与甜蜜。

· 薄荷绿和水磨石,带来清爽舒适的视觉感受,谁说厨房一定油腻,它也可以成为浪漫的轻食区!
03
复古 · 个性 · 摩登


· 借用一点客厅的位置规划出一个玄关,方便放置常用的包包,鞋子等小物,Joe特别选了一款藤编柜,老物件的年代感,往往也是时尚的一部分。

· 长虹玻璃移门做隔断,采光更加充足,磨砂材质的玻璃门,既保证了卧室的隐私性,同时也自带朦胧美感。

· 并入了阳台的卧室,显得格外宽敞,而雾霾蓝与砖红色的搭配,有着更饱满的视觉感受。

· 卧室右侧的衣帽间,是Joe和Shirley的特别定制,砖红色的丝绒布帘,仿佛舞台的幕布,有着别样的仪式感。Joe会开心地拉开它向我们宣布:这是我们打下来的江山!
04
文艺 · 优雅 · 轻奢

· 香熏,红酒,泡泡浴......哪怕是片刻的自在惬意,都能让身与心的能量满格,焕然一新地去面对工作和生活。
05
关于家的故事
The story of home

FROM 设计师:
Joe对Shirley的宠溺,随处可见:
她想要少女感,多用些粉色系吧;
她想要大浴缸,浴室小也要想办法;
她想要衣帽间,可以做出舞台感吗;
她喜欢梦幻的帷幔,她喜欢精致的餐具,她喜欢......
见过太多男生出钱女生操心的装修模式,所以当Joe滔滔不绝地对我描述Shirley的喜好和习惯时,真的很感动。情感才是空间的灵魂,家的设计,如果融入了更多的体贴和爱,房子才会变成家,空间也会因此充满生命力。能在这里看到爱情的模样,真好!
FROM Joe:
这个家是我送给Shirley的礼物。
Shirley喜欢一切美的东西,所以我特意找到诗享家,他家的设计师简直就是颜控专属,每一套都很漂亮!而且不管是用色还是选材,都很专业。设计师跟我们俩的审美一致,又是年轻的女孩子,常常能提醒我没有想到地方,很棒!
喜欢的地方太多,色彩的搭配,衣帽间的设计,卫生间的浴缸,还有吧台,拱门,厨房,客餐厅......每个角落都有惊喜。话不多说,两个字:感谢!
下套房子,我们还会来~~
-The End-
