本案是一个自住房改造案例。房屋的常住人口有五口人,属三代同堂的家庭。本案的女主在委托我们本居设计全案设计的同时,也提出了自己的一些期待和要求: 1. 尽量多的储物空间 2. 厨房和餐厅之间有更好的交互性 3. 利用好飘窗台,自己有靠窗看书的习惯 4. 利用好阳台,长辈更偏爱阳光晾晒衣物

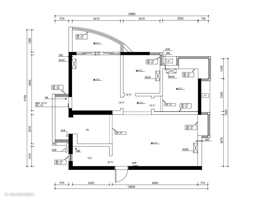
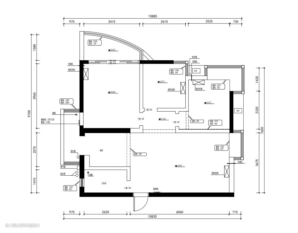
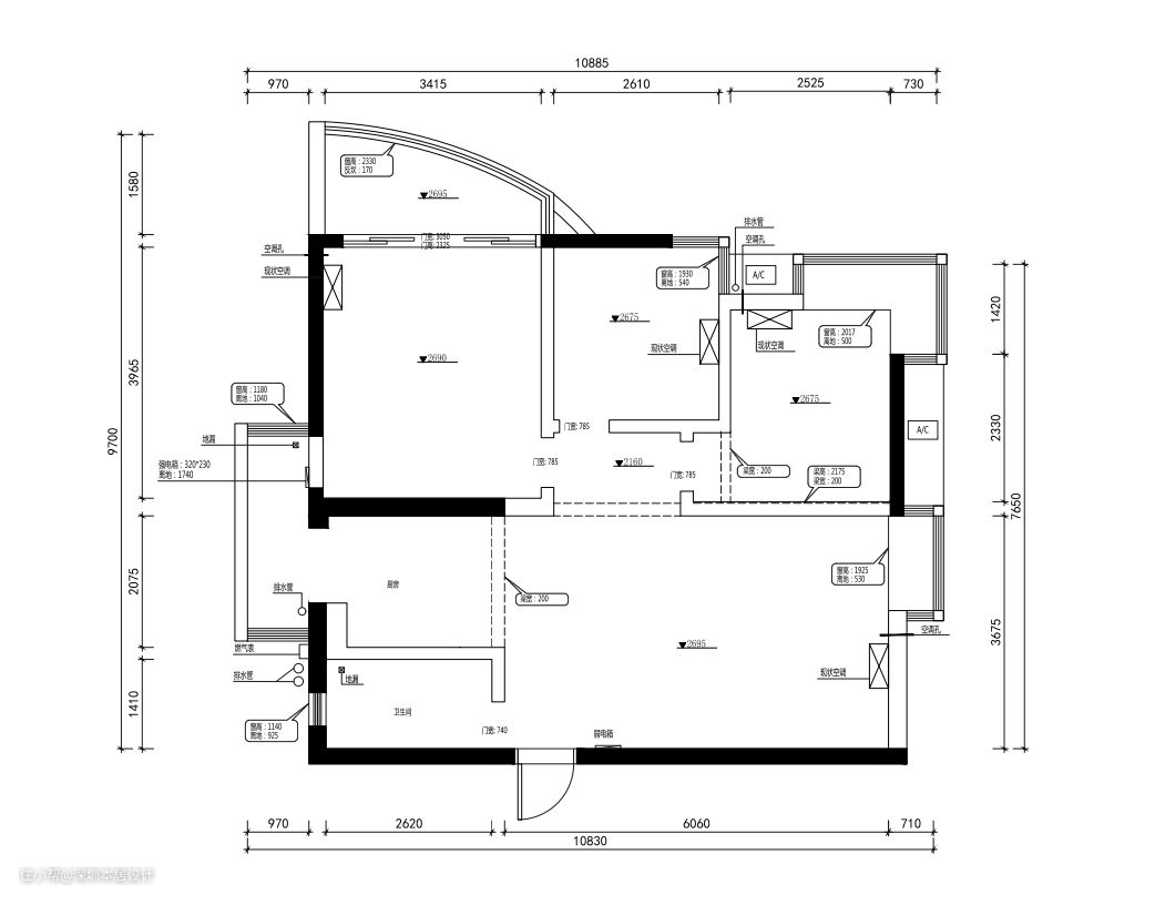
原始结构图 未改造之前,房子明显存在着一些不足: 1. 客厅进门右侧一个大沙发,对面则是个小小的成品电视柜,收纳空间明显不足 2. 厨房外面的小阳台空间非常窄小,上一任业主把冰箱、洗衣机及各种小家电全堆放于此,空间非常局促 3. 主卧是常规的进门一侧衣柜、床、床头柜设计,次卧也是进门一侧衣柜,中间书桌和半高书架,右侧床设计,空间利用率非常低 4. 带飘窗的次卧除了一张成品床和简易挂衣架,剩余空间走到飘窗都要侧身,明显不符合人体工程学 为了解决以上不足,我们做了如下设计:(基本上,除了客厅沙发等承重墙以外,能拆的墙我们都拆了,因为对于改造,我们可是认真的~)

改造前现场照片

改造前现场照片

改造前现场照片

改造前现场照片

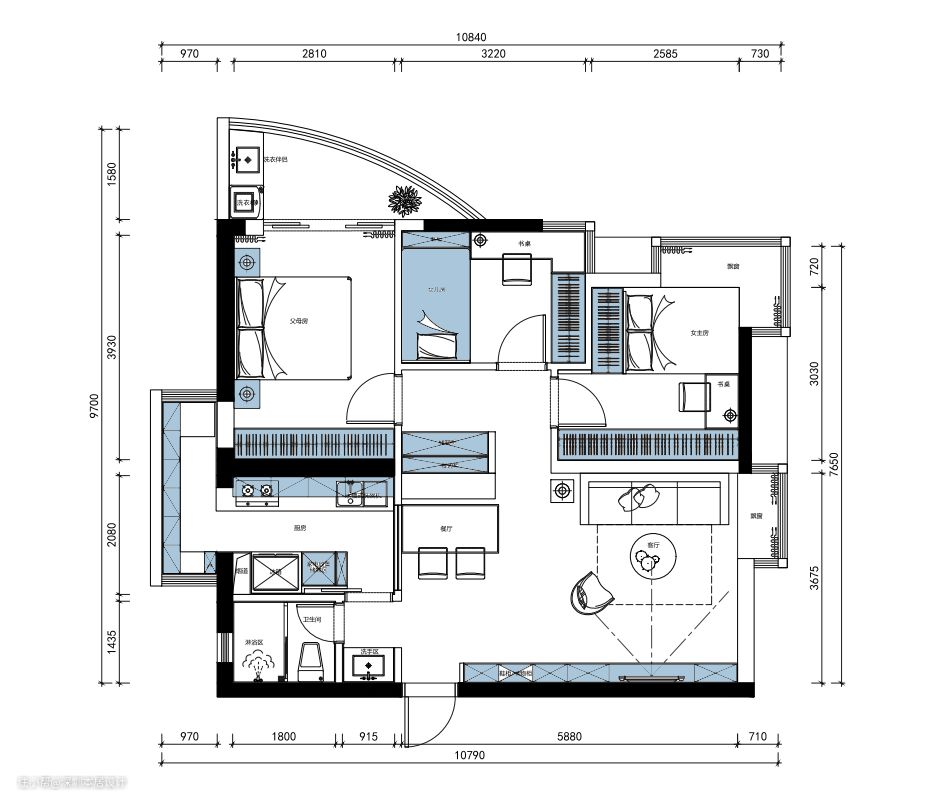
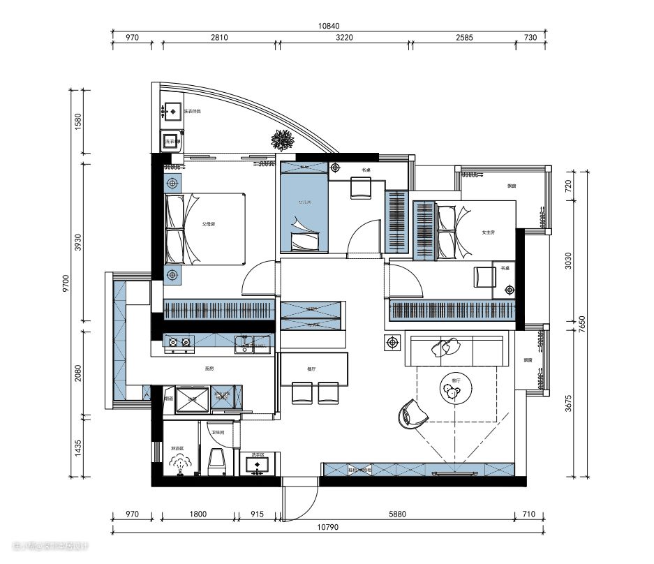
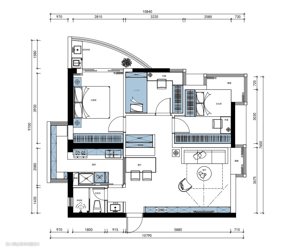
平面布置图 1. 将客厅原本格局对调,进门右侧整面电视柜结合鞋柜功能,收纳空间瞬间变大 2. 改变厨房进门位置,将原本推拉门位置改成半高窗,并与餐桌相连,增强交互性 3. 把冰箱和可嵌入式家电做成整体柜收纳,整齐罗列,合理规划空间 4. 考虑女主喜好,将她的房间设在带飘窗的房间 5. 小孩房设计榻榻米,床尾腾出空间做书柜,学习用书整齐摆放 6. 大阳台设计洗烘叠放+洗手盆一体,满足父母晾衣需求 7. 过道位置空间调整,增加三处完美储物柜,收纳空间再次提升 8. 卫生间干湿分区

清新自然的马卡龙色系,总是充满着神奇魔力,相信任何年龄阶段的女生,都足以被它温柔的色调着迷~那今天,小居就给大家带来这款充满魔力的马卡龙改造案例,一起来欣赏吧!


怎样的柜体设计实用方便还有多种功能兼顾呢?入户右手边将原本客厅的格局对调,设计整面到顶电视柜体,并结合鞋柜功能,一柜多用,收纳瞬间变大。加之蓝色系的马卡龙开放格点缀其中,使整体柜面看上去清爽、静谧又自然。


马卡龙黄和高级灰的主色调,沙发背景墙告别了大白墙的死板与寡淡,刷上马卡龙淡粉色,整个空间也更加富有情调。温馨的马卡龙黄色单椅,暖和的阳光色泽,带来的是延续不断的柔情。


餐厅的设计细节——设计师将原本推拉门的位置改成了半高窗与餐桌相连,并在靠墙位置设计了兼卡座功能的储物柜,这样一来,不仅合理规划了餐厨动线,还增加了餐厅区域的收纳,一举两得。


马卡龙色系的餐椅时刻都散发着浪漫,金属黄铜色的餐桌椅底脚又带来丝丝清爽,配以柔和的吊灯辉映着餐区,每每用餐其中,都仿佛是在参与一场马卡龙的甜蜜盛宴。


考虑到女主偏好,设计师将她的房间设在了带大飘窗的房间。蓝白粉的主色调,进门即收获满满梦幻之感。整面的粉白拼色衣柜,榻榻米靠飘窗而放,床头另设储物柜体,或许,美好的日子就是这样简简单单。



娇俏嫩粉色混合着清爽淡蓝色与金属质感装饰结合,好似城堡里的公主,头戴水晶皇冠,身穿华丽蓬蓬裙,洋溢着娇艳的笑靥迎面而来,释放出难以言表的色彩张力与唯美视感。


父母房空间宽畅,满足基本生活需求的同时不设过多家具,避免磕碰,推拉门连接阳台,采光充足。用色也十分讲究,空间内醇透的亮白色与蓝色及浓郁黑的辅佐补充,自然沉稳的同时也加深着空间的层次质感与通透性。

空间不够用?洗衣机、烘干机无处安放?试试这样,在阳台设计一个多功能柜体,把洗衣机、烘干机全部塞下,还兼带储物功能,空间利用百分百!当然了,考虑到本案女主的父母偏爱阳光晾晒衣物,所以阳台上也设计了晾晒区域哦~



梦幻甜美的小小公主房,清新的浅绿与灰蓝配色,既有小女生的稚嫩温和,又给人宁静恬淡之感。靠墙榻榻米床+嵌入式衣柜、书柜设计,提升安全感的同时又满足收纳,一旁连接整个窗台的书桌,就是孩子的一方学习天地~


原本的厨房空间非常局促,设计师把冰箱和嵌入式家电设计成整体柜体,较大型的厨房电器即可罗列其中。进入厨房则是洗切炒一气呵成的操作台,十分方便。当然,精致的文艺花砖,更是让厨房多了另一番风味。


打通原本紧靠厨房的小阳台,设计成一长条置物柜,300mm的深度即可满足各种小家电的摆放。增大的储物空间,也让锅碗瓢盆不再无处安放!



卫生间干湿分离设计,将盥洗区独立出来,方便与坐厕或淋浴的同时使用。淡橙色墙面、淡蓝色台盆柜、白色瓷砖三种颜色的拼接设计,视觉舒爽的同时也让整个空间更加饱满。

“马卡龙色”的天生梦幻画风总是让人倍感家庭的温馨。每每踏进家门,就仿佛回到了温暖的小港湾,让人身心得到彻底放松,温暖又治愈。
