房子是一个60平的小套二,业主是一对年轻的夫妇,装修之前就想着房子虽小,功能却要齐全。餐厅,书房,休闲空间和储物空间,一个都不能少。精打细算每一个空间的布局,最后不仅实现了所有需求,看起来还很宽敞。虽然主色调是黑白,但是搭配出来非常大气耐看,因为有爱的人住进去会变得温馨呀~

原始户型有一个差不多90°的观景阳台,这也是现在业主看中他的地方,但是原业主把它截断了。
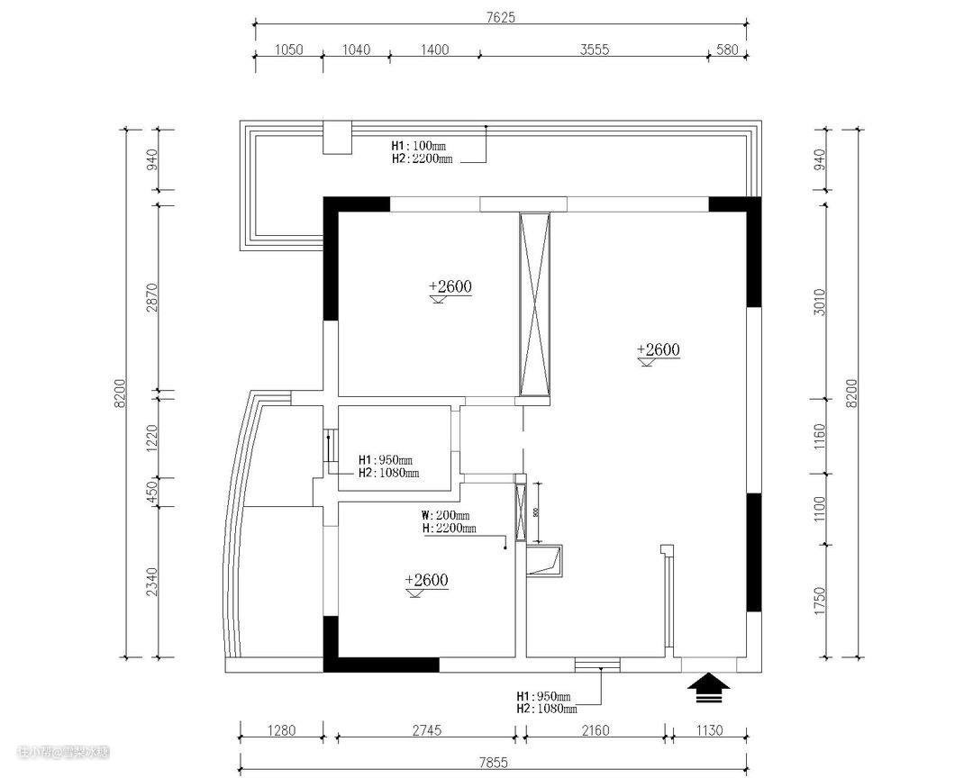
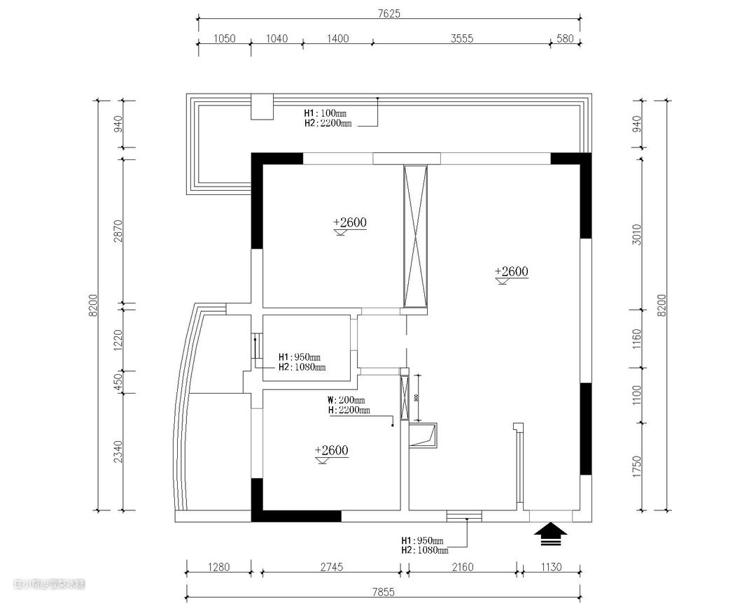
这个是我们刚接到房子的时候的样子。

这是厨房和餐厅,冰箱很小完全无法满足一家人的需求。餐桌一打开就占满了过道,完全没有餐厅位置餐桌也就只能呆在角落了。

厨房更加小,更别说还有多的操作台面了。(其实改造后这里还是放烟机和灶台的位置。但是操作台面就多多了)

还有进门这个长长的鞋柜,不仅放不了多少鞋子 还挡住了原来的过道。让原本就不宽敞的入户,显得更加狭长。

还有这个特别小的卫生间,淋浴和蹲便挤在一个地方,真的很憋屈。

话不多说,我们直接上图。

入户玄关,右边是鞋柜,绝对满足一家人放鞋的需求。

先来看看客厅,电视柜的超大储物空间,可以满足一家人的日常储物。

暖色调的家具装饰,给家添了一丝温馨。

来看看现在咱们的入户多宽敞,餐厅的位置也有了,人一多餐桌一拉开也不会占到其他过道。再也不用挤到角落里用餐啦~

其实整个房子的最大亮点就在厨房啦。

此厨房可叫做半开式厨房,由两扇门和一扇窗组成,既能满足开放式的宽敞又能解决怕油烟的问题,面积有限更需要一个可活动的空间,而不是完全封闭的一个空间,右边位置可以放个双开门大冰箱,格子也可以自由储物。



我们来看看厨房内部,同样的洗手台和烟机位置,从L型到U型的变换,多出来这么多的操作台面,妻子在切菜,丈夫在炒菜,爱就是两个人在一起吃很多顿饭呐~


观景阳台被打通了,小角落还可以做一个小书桌,抬头是梦想,低头在与梦想一起奔跑,生活有时不是虚幻的。



卫生间是把原来的阳台位置打通了,这样有了单独的淋浴区域,卫生间该有的舒适一点也不能少,生活可不能将就。

诗和生活,你和远方,都可以兼得,看我们用什么心态去对待了,去繁化简,回归本真才是现代生活的真谛。


