“感受温柔,领略山河。” ——我为两件事来到这世上,一是为了感受温柔,二是为了领略山河。 设计思路: 由于本案屋主独居,热爱绘画,希望打造一个既有温度又多彩的生活空间,本案整体的配色灵感来自屋主喜爱的西班牙画家Guim Tio的绘画作品。通过多种色彩的运用,表达屋主对家的理解:艺术性+自然性的和谐融合,希望与家在一起时,能保持温暖和舒适的状态,平淡的小烟火,才是最深的温柔。 整个空间我们运用了多种色彩,这加大了色彩的使用难度。想要通过这个空间的色彩来表达屋主对家和生活的理解,引用屋主的原话:“我内心天马行空,我的外壳五彩斑斓,愿你能透过层层保护色,看到最真实的我。”整体在墙面用色和材料颜色选择上,我们选择了代表自然属性的绿和蓝;和代表温暖属性的橙和粉。配色方法主要采用了邻近色配色和冲突色配色手法,让空间色彩和谐流畅,又起到醒目强调的作用。

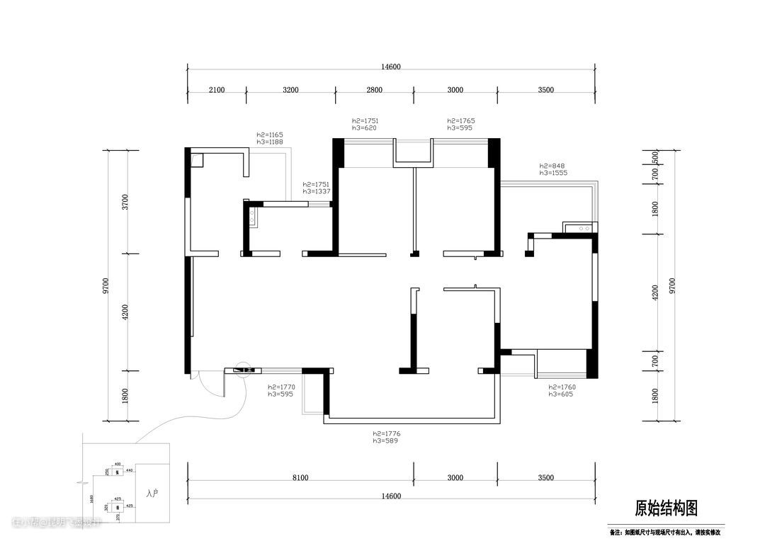
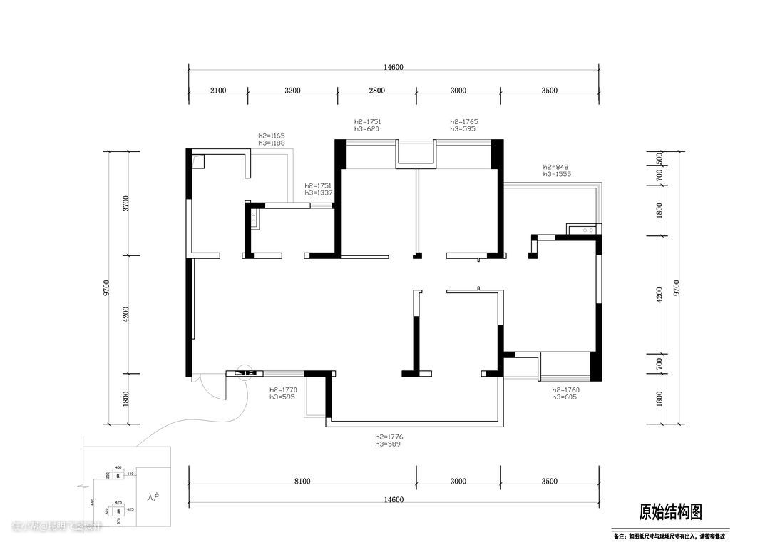
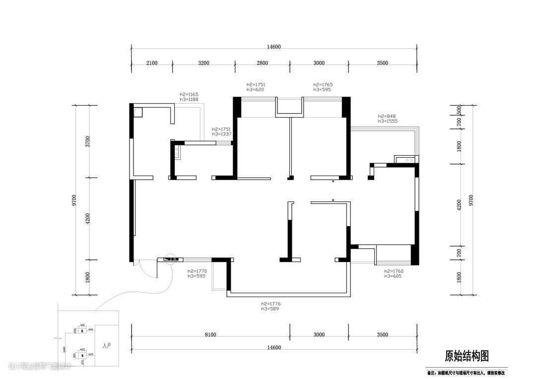
原始结构图 由于屋主目前独居,希望未来的家:1)餐厅空间可以有更多的可能性。 2)客厅公共空间想更为宽阔些,敞亮些,需要增加书房和画室空间。 3) 次卫生间门对着客厅,破坏了客厅的完整性,又不美观。 4)卧室空间功能性需要更为完整。 5)入户需要有玄关的感觉,整体需要足够做的储物空间。 6)整体色彩不受限。

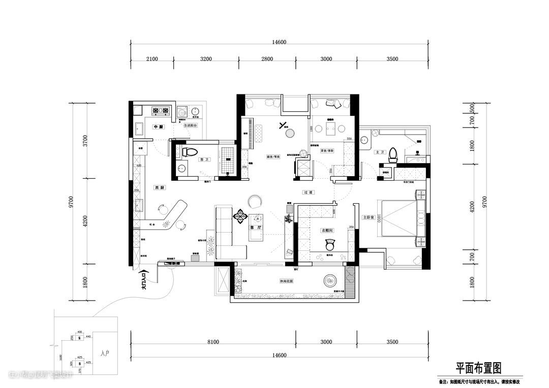
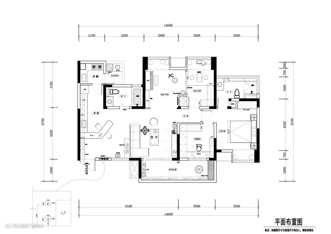
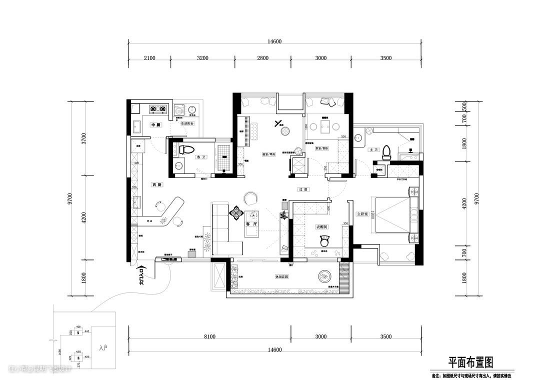
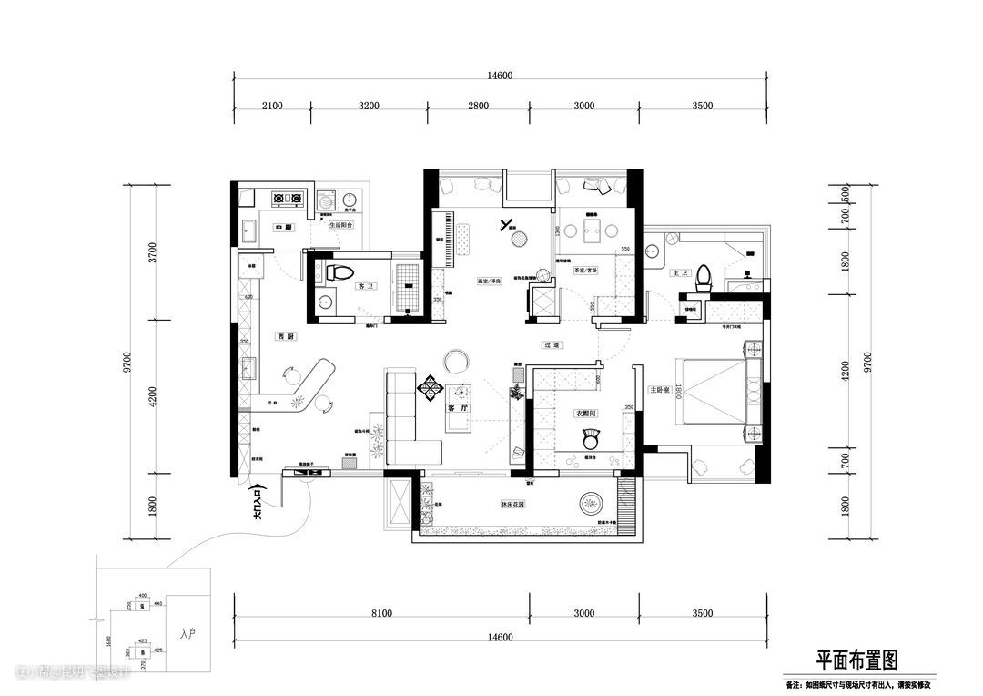
平面规划图 通过与屋主的沟通,我们解决了屋主最初对家的所有想象。 1)由于屋主独居,日常就餐人数不多,我们采取了去常规餐桌的设计方法,把餐区扩大,把入户储物鞋柜和餐区柜连为整体,用弧形吧台作为隔断,形成门厅的感觉,扩大餐厅的空间视觉,同时也保留中厨的空间。在餐区做了大量的储物空间。而且餐区不仅仅是就餐区,也可以是写字区,也可以是休闲区。 2)为了让客厅空间更通透和宽阔,我们把连到客厅一个卧室墙体拆除,把画室和琴房与客厅连为一体,然后把另外一个卧室缩小,并且用玻璃做隔墙,这样进一步增加客厅空间的通透性。 3)面对客厅的次卫空间,我们把这面墙做了整体墙板和隐形门融为整体,增加客厅的完整性

入户鞋柜 我们选用了粉色和灰色的鞋柜门,蓝色的镶嵌柜体点缀,加上墨绿色的墙面瓷砖,从一进门就这个家确定了调性,五彩斑斓的家。

弧形吧台既是就餐区,也是写字区,也是入户隔断区。

客厅空间 这个空间与书房连为一体,顶面采用了石膏花的元素,地面材质与书房同为多层实木地板,沙发的选择我们呼应了书房的手绘壁画,也跟客厅的绿色乳胶漆墙面同为自然属性。客厅的基调自然舒适强于温暖。墙壁的壁灯为喜欢在沙发蜗居的客户点亮一丝暖意。

沙发的植物与厨房的墨绿色瓷砖相互呼应。

客厅区的窗帘选用了灰色为主布,粉色配布点缀,加上电视墙局部粉色乳胶漆呼应,让这个空间多点暖意,又与玄关处的粉色相互穿插。电视墙的石膏定制花型和顶面石膏角花相互呼应,配上左边的石材基座和石膏画像,让这个空间增添了一些艺术氛围。

这个角度看过去,客厅与书房融为一体,显的空间尤为宽阔。电视墙的粉色色块从电视墙延伸到过道至主卧室,犹如温暖从玄关经过客厅流进卧室。书房墙壁的挂画我们和业主精心挑选由画师手绘而成。羽毛五彩斑斓的飞鸟,犹如屋主对家的另一种理解。

电视墙一角特写

开放式厨房空间 这个空间是整个公共空间采光最差的区域,我们通过点光源和线光源的局部打造,让这个空间层次分明,而色彩上我们运用了:白色,灰色,粉色,蓝色,墨绿色多种色彩的碰撞,让这个暗的空间显得更有趣,也给整个家定了基调。

厨房橱柜与吧台连为一体,虽高低交错,但台面的岩板纹路却贯穿始终。

这个角度可以看到中厨空间,也能看到墙板和顶面的灯光从厨房区延伸到客厅区。虽然地面材质开放式厨房和客厅是不同材质,作为功能区分,但墙板和墙板上的灯带又把这两个区域连为一个整体。

主卧室空间 主卧睡眠空间,我们采用了无主灯,线光源,点光源的灯光设计,让睡眠空间柔和。主卧的整体色调我们把从玄关就出现的“粉色”,客厅过渡的“粉色”,在这里找到归属地。粉色为这个空间的主色,为这个空间添加了几分柔度。而蓝色的点缀,又让这个空间与客厅未断联系。

床头柜和壁灯的特写

床头采用装饰吊灯或者壁灯,释放床头柜的使用空间。

书房空间 书房也是琴房,敞开的空间把书房的光线借进客厅,客厅光线更敞亮,气流更流畅。书房墙面的壁画,我们和画师多次沟通比例和色调,经过画师整整2天的时间完成。画凳我们是淘的老料木凳。

这个角度我们可以看到书房隔壁的多功能房间,既是客房空间,也是储物空间。玻璃隔断的选用,让书房的视觉感更为通透。

画室空间沿用客厅的自然属性为主,森林系的壁画,坐在老料的木凳上绘画,犹如在森林户外创作,别有一番趣味。

主卫生间空间 主卧空间主色为粉色,也蔓延到卫生间的瓷砖使用上。卫生间我们选用了粉色和白色的仿水磨石瓷砖的上下搭配。既少女又复古。

卫生间另外一个角度,浴室柜旁边我们用瓷砖做了一个储物柜,屋主一直担心自己的东西放不完。这下完全解决了这个问题。

阳台空间 这个空间我们没有选择把它包在客厅内,想留有一处与外界相处的地方。用防腐木做了卡座,选择了复古的吊灯,当阳光明媚时,这里也是不同的风景。

衣帽间空间 整体定制均采用隐形拉手,让整体空间更简洁,灯光沿用主卧了的灯光设计手法,颜色增添了一抹橙色,让这个干净的空间,又有了一丝温暖。

衣帽间我们按照屋主的收纳习惯,我们布置了普通挂衣区,折叠区,展示区。梳妆台左边柜为化妆品陈列柜,镜子隐藏在梳妆台内。上翻即可使用。
