那近两年来把红绿配色升华出时髦“高级感”的,无疑就是GUCCI了。其实,GUCCI标志性的红绿条纹织带早在1950年代就问世了,为了迎合热衷于骑马的上流人士,Gucci常常会从马术中寻找灵感来源,而条纹织带的设计则是来自于传统马鞍下的红配绿马肚带 机缘巧合时间正好撞上了圣诞节,那小编就任性一点借着圣诞的热度发布,这套案例可谓极尽“花俏”本事,张扬,没有打算低调,搭配一些法式的石膏造型,红窗帘,绿门套,统统一块儿上阵,完全没有违和感,设计师在本期案例中的配色亦采用了“故宫色”,小编这就带领各位一起探访这个温馨柔和的家!



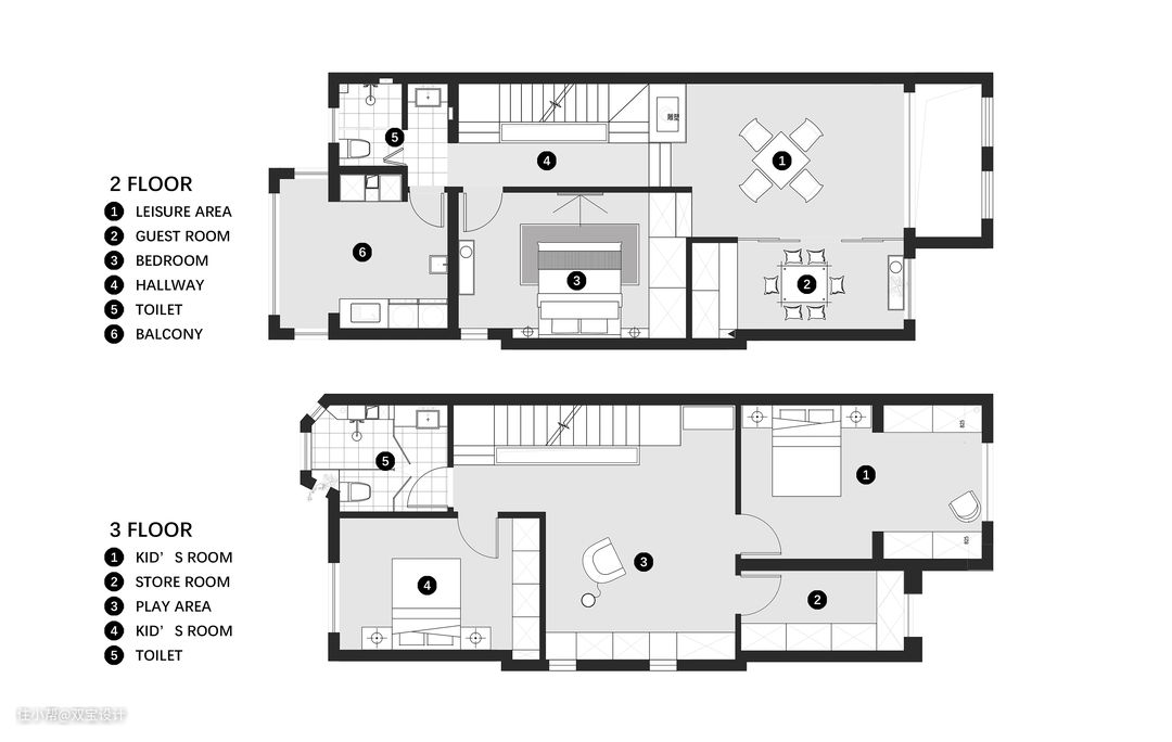
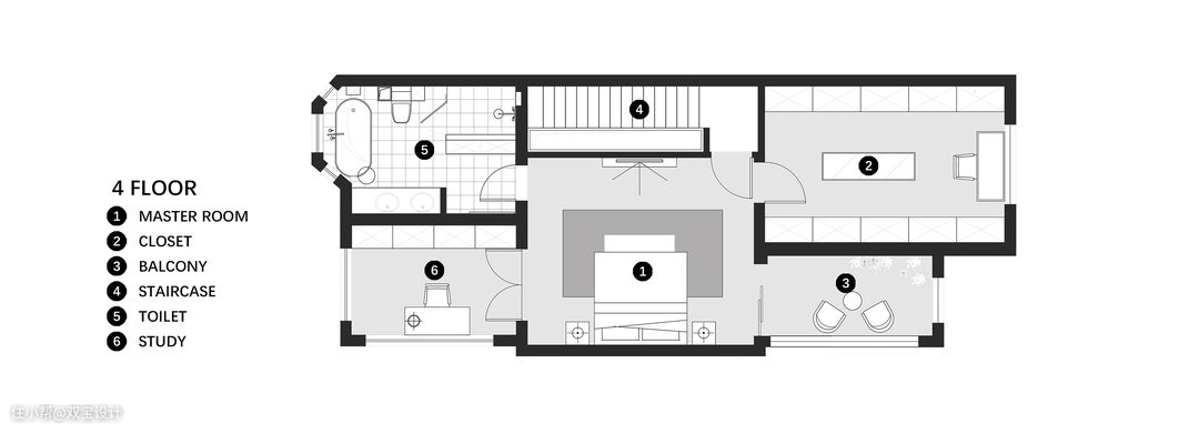
改造后: 1、作为老人房的二楼,大大的晾晒空间是屋主妈妈强烈要求的,接近14个平方的洗衣房应该能满足屋主的需求 2、三楼两个儿童房,中间开放空间是两个小宝贝公共玩耍区域,可以在这里看看书玩玩乐高,在左边墙面涂了一面黑板漆,一整面墙的收纳格,玩完的玩具能装进收纳筐归位 3、四楼一整层都属于主卧,超大的衣帽间简直就是女生的梦想,在这个家里设计师实现了,设计师也为男主人打造了独立书房,主卫设计了双台盆,可供两个人早上同时使用的主卫生间,当然在这层楼也保留了一个小阳台,无论是喝茶还是晒太阳都很舒服

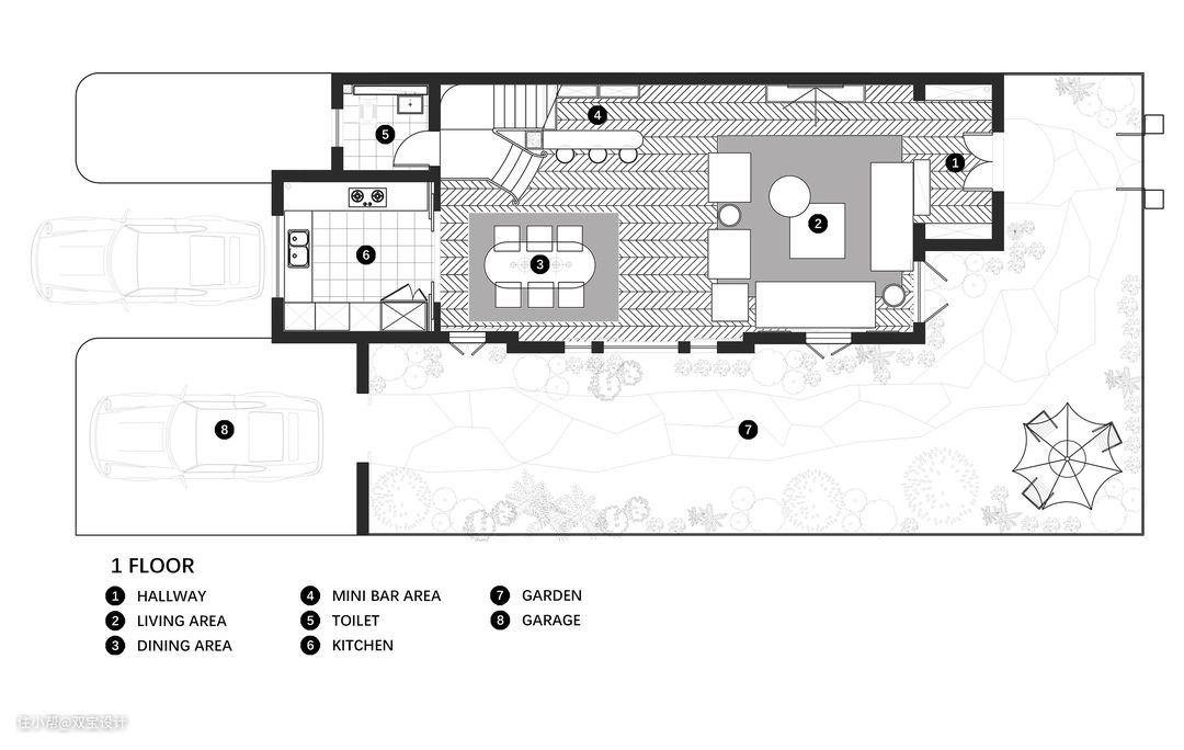
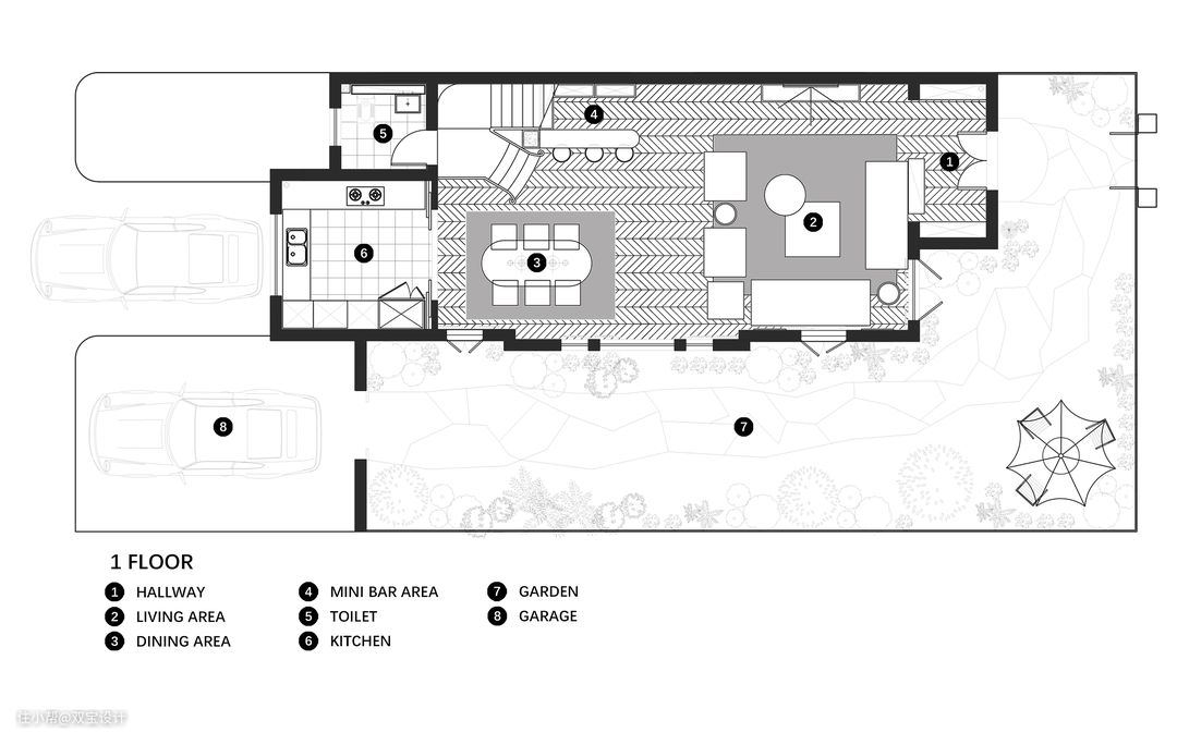
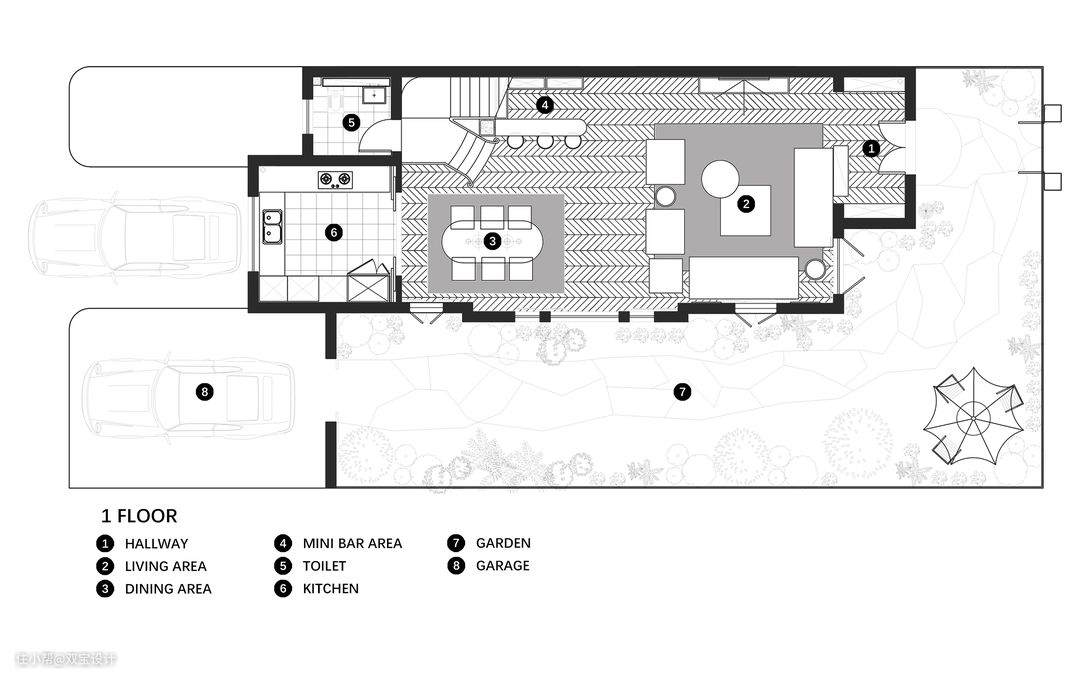
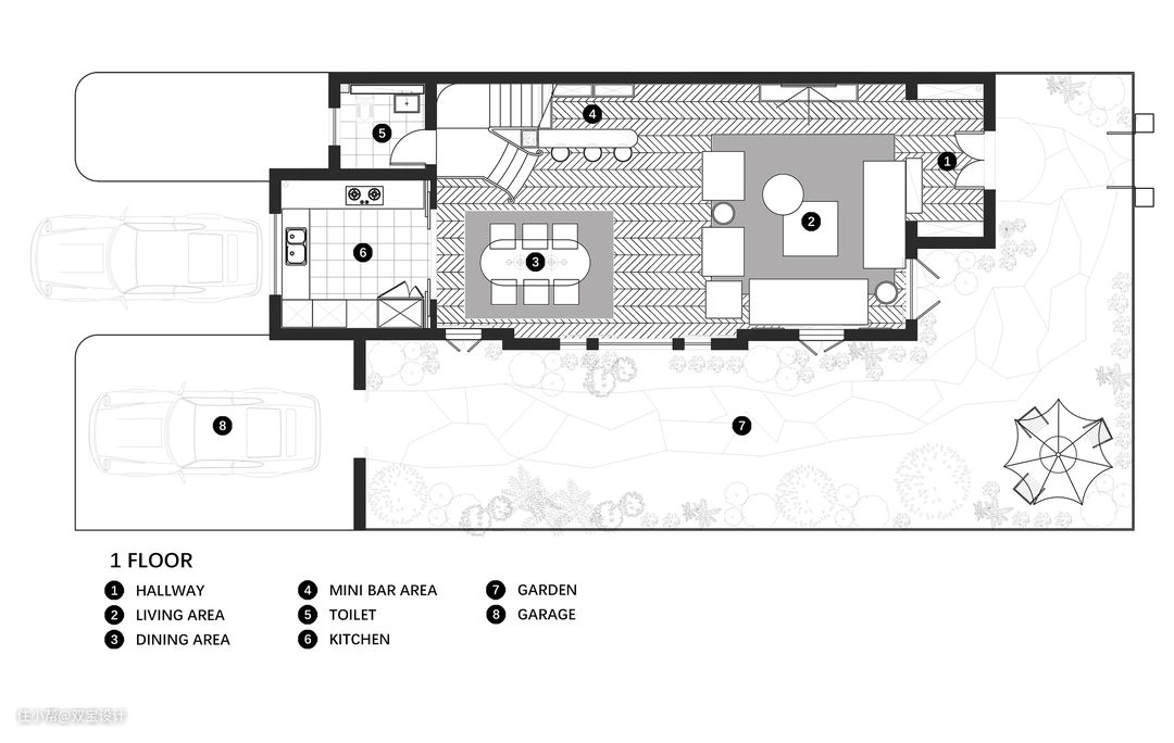
玄关采用的全封闭式满墙储藏柜,一整面的超大鞋柜,在配色上,设计师也大胆的选用了酒红色,大部分的鞋子都在进门的储物柜里,旁边的玄关柜可以放一些常穿的鞋子,同时也起到了装饰分区作用


玄关柜满足了屋主平时进出门换衣、换鞋、放随身物品的需求,在玄关的位置设计师保留了原始挑空,让光线更好的引入进来,浅灰色的墙漆搭配现代感十足的吊灯也毫无违和感

把电视内嵌在壁炉中间,带有简约线条的墨绿色壁炉,反而更有高级感,再加上金色复古装饰画搭配酒红色丝绒窗帘,整个客厅的配色显得诗意浪漫


不知道有没有小伙伴注意到屋主家的大门也更换了,听说屋主为它费了不少心思,这样的木门夹玻璃我们在美剧里经常看到,灰蓝色的大门配上墨绿色的门框,有没有一点美剧既视感呢

80公分的石膏线条之前小编在工地预告篇已经为大家透露过,如今完整效果是不是颜值更上一层楼,设计师特意将墙面护墙进行了分色处理,薄荷绿和墨绿色让单一沉闷的墙面有了仪式感

大面积的丝绒红窗帘是主色调,小面积绿色沙发作为辅助色,窗帘上的小天使金色窗帘壁勾也是首尾呼应,营造满目复古风情


从楼梯间可以看到完整客厅的视角,在客厅旁边的mini吧台坐着来杯Mulled Wine,气氛浓郁的能当场跳舞,只可惜重庆没有雪

餐厅采光极佳,大面玻璃门窗将室外光线和花园景色都“借”进来,四季不同,窗外的景色大概就是最好的装饰画

满足屋主的少女心,在餐厅的空间设计师留了一片粉色系,Louis Poulsen的粉色吊灯和石膏灯盘搭配在一起充满趣味性,北欧吊灯与法式元素的相互碰撞,立马成为点睛之笔


得益于客餐厅互通的敞开,餐厅得到了有效的放大,邻近MINI BAR,在家里开十人派对也不显得拥挤


餐厅与厨房自然过渡联通在一起,担心开放式厨房可能会有油烟的问题,所以加了极窄黑框玻璃门,增加了整体空间的通透感

这个紫色的吧台柜单看或许不出挑,但和墨绿色楼梯石材配在一起,竟然有种奇妙的化学反应,小小一角,从此也多了份戏剧感

楼梯下方的mini bar,虽然不大,但是五脏俱全,吧台下方还藏有收纳柜,背后也设置了酒柜,Delonghi的电热水壶和面包机和这个家的整体色调简直绝配,百搭耐看,几乎不挑空间的特质,谁能不爱


三楼的开放玩耍区是属于两个小宝贝的,在这个区域,设计了一面收纳墙,大部分玩具绘本都可以放在下面的收纳盒里,这样每天他们在玩耍的时候,也不会弄得很乱妨碍他人,而且还能锻炼两个小宝贝的收纳技能


眼尖的小伙伴发现其实每一层楼的墙面色彩都有所不同,一楼是沉稳的墨绿色,两个小宝贝这层楼以雾霾蓝作为整体基调,这样的色调可以伴随小朋友一起成长,憧憬未来


主卧套房独占一层楼已经让小编酸成柠檬精,没想到层高也这么令人羡慕,拱形造型顶最大保留层高,也带来了不一样的空间视觉震撼效果,和屋主购买的床相辅相成,相互呼应增加主卧空间的艺术效果

从色彩跳跃的法式风走上楼,会不会觉得来到了另一个国度,床头的雕花是屋主的心头好,小编个人觉得偏东南亚风,感觉会让整个空间别有韵味,一阵清新的度假风徐徐吹来


设计师根据屋主实际的需求喜好来选择,装饰画、壁灯、床头吊灯、地毯等软装饰品搭配,增加卧室空间整体的视觉柔软度,不同的材料和色彩都可以组合出不同的风格倾向

这个儿童房的宽度尺寸都比较大,设计师考虑到可能会要住到小朋友成年过后,同时实现居住储物学习兼顾的功能,设计了一个独立抬高的衣帽间兼书房玩耍区域,这样,孩子的小伙伴们来了,即使坐在房间有单独交流和玩耍的空间


黑白线条的儿童房简约让人放松,然而这一片白色之中,设计师铺贴了一圈树叶,仿佛置身于森林,这抹绿色,给了空间活泼的感觉,又多了安静的力量


小编觉得其实这个儿童房挺像CHANEL的,不知道是不是屋主想要从小培养小宝贝的审美能力,整个儿童房的颜值满分,但小编还是蛮担心这样的白色空间,在小宝贝还是比较活泼好动的年纪,会不会给它添上一抹色彩呢

没有在儿童房做复杂的装饰,只是在配色上大做文章,设计师尽量让空间显得开敞,后期等小宝贝长大,也可以让空间合理的成长起来

看到这个衣帽间,试问在座的各位女同胞们,谁不羡慕!谁不想每天醒来走进衣帽间选衣服都像在购物一样!!不得不佩服设计师,一整面墙都铺贴了镜子,不仅让整个衣帽间空间视觉变大,还可以拿它当全身镜,再次为这个衣帽间打call

衣帽间够大的情况下,在中间放置一个岛台,下方的抽屉还可以放置了丝巾、领带,这么多抽屉,收纳肯定是够了,小编就好奇的问一句,每天醒来在这衣帽间会不会挑花眼呢


放一张拉仇恨的图,这个衣帽间不仅颜值上线,还很贵,所有柜体都安装了氛围灯光,就像橱窗一样的感觉,简直克制不住想冲进去剁手的欲望,这大概就是把橱窗搬进自己家里来了

百叶就是“光影的魔术师”,小编在这个空间的最爱就是这个百叶窗,下午阳光透过百叶窗映射进来,坐在这工作看书都是一种享受吧


主卫也是这套房子的亮点之一了,六边形转角墙体和经典的法式吊灯,深棕色窗套腰线和灰色浴室柜,无论是配色还是造型,都有着极强的时尚奢华感

放大看整个卫生间,处处都有设计师的小心思,为屋主打造的清晨洗漱最流畅的动线设计,大到洗漱化妆沐浴空间,小到女主人专用的化妆镜,毛巾环,“一条龙”式梳妆区相当实用,果真每一个漂亮女生的背后,都藏着一个超大的卫生间


屋主淘来的五金件自带复古气息,和灰色浴缸搭载一起,显得稳重又不失闪光点,镶金边的复古镜,打造唯美的轻奢质感


琉璃花架在夜晚的灯光下,泛着点点星光,它同样形成了视觉遮挡,独享一方静谧天地,沿着花园四周种植了各类花草,等夏天来了傍晚坐这里纳凉喝茶倒也是惬意


这一张特别有美剧的味道,复古的外墙砖,放入餐桌和户外椅,找个好天气,随时可以邀请三五好友一起喝个热红酒
设计师说:在设计前期,更多的去挖掘客户的个性特点,更深入层次的了解客户现状,设计不仅只需要设计师的专业技能,业主的喜好生活方式尤为重要。充分了解对方,信任对方,充分了解他的生活习惯和状态,才能体现出设计的价值,这样才能打造出专属于这个屋主的家
