▲前言: 一座城,偌大的外在空间;一间屋,小小的私人领地。 好比这间屋子和它的主人,一个腹有诗书,一个耕读不辍。所以洞性灵之奥区,而故吐纳自深。“珠玉潜水,而澜表方圆。 ▲业主需求: 本案男业主在北京某大学任教,女业主任职于一家国际机构,由于工作原因,家中书籍非常多。 1.首个需求便是需要大面积的储书空间; 2.男主希望有一个良好的、有采光的办公环境。 3.女主则希望有一个开放式厨房,并且容纳种类齐全的大型电器。在沟通过程中,得知年轻的夫妻需要在房间给宝宝预留婴儿床的位置,而女主的妈妈偶尔也会来住上几日…… 4.希望卫生间是干湿分离的设计,也基于工作生活,认为干湿分离是非常方便的。

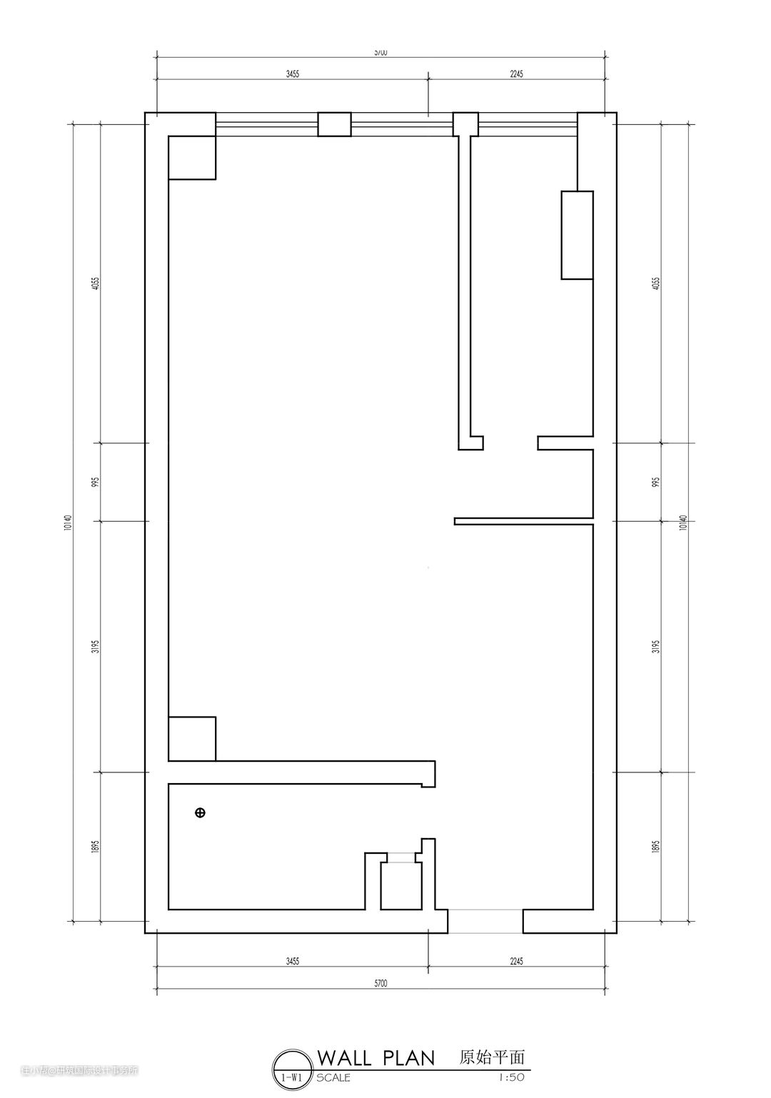
男业主是一个集有趣的灵魂与耀眼的才华于一身,设计爱好者,所以在设计师提出方案之前,他自己先出了一个方案,虽然布局较为简单,且存在空间使用率不高等问题,但是大大帮助了设计师迅速把握设计需求。 经过现场考察,原本户型所存在的缺陷如下: (1)房子本身的布局不是特别好,空间利用率很低; (2)卫生间呈狭长状,布局极其不合理,厨房比较小,储物空间小; (3)客厅和卧室分区不明显,中间没有独立的功能区,没有隐私性,均无法满足的客户需要。 经过专业检测,整个户型的内部结构非承重墙体,后期的设计比较自由,可以进行大刀阔斧的改造。

前后经过6稿,最后敲定的这套方案是紧扣“单尺度大”这条设计理念呈现的,在设计师看来,最后这稿方案在每个空间尺度上面来讲都可以与100平的房子相比较。 户型改造具体如下: (1)整个属于长方形户型,原始的缺陷便是没有隐私基础,站在门口便能将整个空间一览无余。如果独立设计一个玄关,对于小户型来说略微奢侈,所以设计师选择将玄关与走廊相结合,做了一个“曲径通幽”的处理,确保室内的隐私性。 (2)将走廊剩余空间做了三角形的储物间,增加储物收纳。 (3)基于玄关走廊的整体的结构,卫生间合理的改造为三分离式,使用便利。玻璃式的墙体,增加空间的通透性。 (4)卧室重新划分,利用玻璃的形式,让空间明亮舒适。 (5)客餐厅、厨房一体化,视觉上空间更大,动线方面也更加流畅,同时保障空间的采光。由于空间面积的问题,客厅无茶几设计,活动更自由。 (6)餐厅由书架、餐桌椅和飘窗组成,同时也是男主的办公区,满足男主的藏书需求,飘窗的作用在于隐藏折叠床,可以作为餐椅,休闲、看书、办公。 (7)开放式的U字型厨房格局,开间2m活动自由,高低台的设计,嵌入式的电器,满足日常生活的便利。

▲平面布置彩平图

▲平面布置模型图


映入眼帘的玄关,视觉呈几何形的长廊形式,拉长空间的纵深感,“曲径通幽”的处理手法,确保了室内隐私性的同时,让空间更有神秘感。#玄关#走廊

合理的空间分布,玄关走廊集于左侧卫生间、右侧鞋柜、储物间;筒灯、灯带、长虹玻璃的利用,让原本暗光的空间,更加通透明亮。#玄关#卫生间#长虹玻璃

高颜值的玄关承载着收纳和身份转换的功能,考虑到客户还有一些吸尘器一类杂物的收纳需要,设计师利用斜角处做了储藏间。此外,诸如入户鞋柜这样一些细小的要求都一一实现了。#鞋柜#储物间

进门处放置玄关端景柜,让空间更丰富,第一是增加了储物、第二是增添空间的颜值性,跳色洋红色的端景柜,彰显整个玄关的“热情和活力”。#玄关#玄关柜#收纳

整个空间的格局相对全部开放,没有多余的墙体,为了的是让小户型空间看起来更加宽敞,采光更好,活动起来不局促。 客餐厅一体,保障了通常的采光,整体暖系的色调中,棕色条绒布沙发,人字拼木地板,绿色单椅的点缀,与蓝色顶面形成强烈的对比,冷暖在空间中相互缠绕、相互衬托,温润沉着又不失活力,来营造客厅的温馨感,整屋的人字拼地板,更富视觉震撼。#客厅#餐厅#沙发#落地灯

靓丽的宝蓝色顶面处理,大大增加了空间的视觉冲击力,带来视觉上的清爽,清凉过渡一夏。 由于空间格局,客厅放置茶几,会显得空间局促,活动起来不便,再加上业主平常在客厅待得时间不多,所以最终不设茶几,若后期需要,可购买小型轻巧的茶几,也是比较方便的。#客厅#沙发#电视柜

绿色亮绒质感的沙发椅,在客厅中起到了点睛之笔,随着光线反射,营造出怀旧的现代复古风情,提升整个空间的质感和格调,搭配简约橙的落地灯,以及绿植的陪伴,清新自然,优雅高级。


主体沙发选择了棕色系,来平衡整体的空间色彩。#沙发

这是一个最有心机的设计点,说是餐厅,不妨说是书房、飘窗榻榻米都不为过; 一整面的背景墙做了书柜,开放式的格子架放书籍、以及装饰品,给生活增添了无限的文艺气息。完全满足男主的藏书需求,让办公与日常生活环境融合。#餐厅#餐桌#餐椅#樱桃木

以餐桌作为缓冲区,男主可以在这里办公,紧邻窗边,采光也好。

多功能餐厅,承包了书房、餐厅、临时居住区集于一体,在采光极佳的地方,设计了飘窗的位置,飘窗的设计则是这个空间最佳的亮点,一方面营造轻松的氛围,另一方面特殊五金件的抽拉式的纸床,方便家人探亲居住。#隐形床#飘窗

隐形床拉出之后,2m的长度,完全解决临时居住的需求,收缩回去后单看就是飘窗,完全隐蔽,且美观。#折叠床

绿色单椅在空间中有所跳脱,色彩的共通性将整体空间呼应且串联。#餐厅#餐椅#书柜


摒弃掉传统厨房的封闭空间,设计为开放式格局,视觉直观上增大面积,U字型厨房,满足内嵌式家电的需求,下厨动线流畅,开间2米,活动自由。#厨房#橱柜

橱柜高低台的设计,让日常生活使用更舒适~#橱柜#厨房



金色的复古把手,搭配烟灰色橱柜,精致高级。#橱柜#把手

利用墙面和玻璃结合的形式,将卧室与客厅相隔,窄边的门框结构也显得空间更加利落,与整个斜形的结构设计相匹配,同时玻璃的形式,让卧室空间避免压抑,借助光源,显得通透明亮。#卧室


卧室简约而不简单,主以白色、樱桃木色为主,墙面做了分色处理,墙角富有立体感的浅灰色点缀,让墙面颜色富有变化而不单调,搭配樱桃木的主体床与五斗柜,凸显宁静安逸、温润舒适,一副舒适的生活画卷徐徐展开。#卧室#床#斗柜


卫生间利用长虹玻璃代替墙面,其一让通过本身的材质将自然光引入卫生间内,制造通透明亮的效果;其二,由于空间的格局,可让空间之间存在视觉上的连通感,给予视觉上的扩大,不会显得小而压抑。#卫生间#长虹玻璃#三分离

原布局卫生间呈狭长状,很不合理;优化设计,升级为三分离式,每一块区域都有足够的活动空间,保证使用起来的宽敞度和舒适度;整体的灰白墙砖和地砖,干净整洁,视觉亮度增加,搭配黑色窄边框长虹玻璃,质感和高级满满,精致的生活随处可见。#卫生间#三分离#干湿分离

(施工过程)卫生间防水
品牌: 沙发、餐桌、长凳:失物招领 沙发椅:Karimoku 小斗柜:二黑木作 双人床:二黑木作 冰箱:日立 电视:SONY KD-43X8500F / KD-55X8566F
最满意的设计亮点是什么? 玄关的合理利用,不仅做到了不浪费,还有效的扩大使用,玄关柜、储物间、三分离卫生间全部满足。 餐厅花心思去设计,在有效的空间满足多种功能使用,让空间利用达到最大化。
