业主是一对夫妻,做医药行业的。有2个可爱的宝宝,一个男孩7-8岁上小学,一个女孩刚2-3岁还没有上幼儿园。 18年4月在网上预约的我做设计,那段时间非常忙,收到预约后过了好几天才想起来回电话,接通后业主表示因为好几天没有人联系他,所以就找了朋友介绍的一个装饰公司的设计师,不需要了,于是表示祝贺挂断了电话。 过了大概一个礼拜,又给我回了电话,沟通后表示之前朋友介绍的装饰公司的设计师不满意。最终还是决定找独立设计师做设计。 业主希望做成简欧的,但是又不能太大众化,需要添加一些其他的元素,沟通后我们一直决定做成简欧轻奢风。 业主表示内部空间尺度不太合理,需要调整,希望可以通过设计解决空间的问题。 业主需求:保留4房(主卧套房、男孩房、女孩房、书房),解决入户玄关、厨房、主卧室套房等问题 主材用材:西门子中央空调(买房赠送)、志邦橱柜、法兰菲全屋定制、冠珠瓷砖、顾友木门、科勒卫浴、富得利地板、五棵松硅藻泥等 。 这个案子前后用时一年,去工地和材料市场不下百次,想要把一件事做好,真的不是容易,对客户负责的同时也必须对自己负责。 合作方式:设计+施工 施工周期:12个月 小区名称:和平盛世 设计单位:郝泽伟设计工作室 摄影:吕创

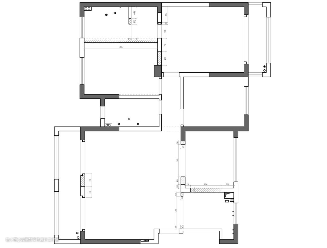
《墙体拆除图》 户型缺点:入户没有独立玄关、没有合理的鞋柜位置 大门直冲主卧室门,风水忌讳 原本“L形”厨房格局不合理、设计双开门大冰箱后,会导致台面过短,操作空间不足 原始客餐厅一体,并且朝北,空间有限,格局尴尬 主卧室套房舒适性不够,衣帽间小,收纳空间不足,主卫格局不合理,宽度不足,无法设计标准浴缸和双面盆浴室柜。

《平面布置图》 改造方案: 1.设计独立玄关,创造一个缓冲区 2.玄关处设计金属屏风(既可以解决入户直冲主卧门的风水忌讳、又能够保证空间的连贯性) 3.封闭原有厨房门洞,并右移35公分,让出尺寸设计鞋柜位置 4.改变厨房门洞,重新在原有书房和厨房之间的墙体开门洞,将原本“L形”厨房改变成“U形”厨房。让双开门冰箱得以实现的同时又增加台面长度 5.互换书房和餐厅位置,让餐厅距离厨房更近,就餐更加方便。敞开式书房和客厅更加契合,离小书房更近 6.北阳台一分为二,一个设计成休闲阳台,一个设计成小书房,和敞开式书房呼应 7.拆除主卫、衣帽间和男孩房之间的墙体,重新架构三个空间。设计双排柜衣帽间,主卫满足双面盆和浴缸设计。

入户设计独立玄关,形成缓冲区域。地面不锈钢卡条和灰色瓷砖、黑白波打线拼花设计,塑造层次感,彰显档次,呼应空间。 进门正面设计屏风隔断,解决大门正对主卧门风水问题,同时保证空间视觉通透,不影响采光透风。 定制鞋柜:柜体为颗粒板,柜门为白色吸塑门板,拉手为保证统一,选择黑色。 鞋柜设计结合了(拖鞋、当季鞋、伞包位、换季鞋、换鞋凳、挂衣钩)等一体设计。 瓷砖:冠珠瓷砖 瓷砖型号 白色:90002(900*900) 浅灰:90017(900*900) 深灰:90018(900*900) 衣柜:法兰菲衣柜

鞋柜的台面选择了浅木纹的跳色处理,统一中寻求变化。 瓷砖:冠珠瓷砖 瓷砖型号 白色:90002(900*900) 浅灰:90017(900*900) 深灰:90018(900*900) 衣柜:法兰菲衣柜

玄关背面,选择一颗七彩千年木,填补角落空间,这颗是拍摄完工照前一天跟客户去花鸟市场选购的。 整个屏风是实心的,四周边框4公分厚,里面的五朵花是纯铜的。这个屏风1.2万。我是真的舍不得,客户非要买。。。。。。。哎,那句话怎么说来着,有钱任性。

客厅效果图

为保持基调一致,所有的硬装部分配色都以灰白为主,木质家具部分为白色。 提亮和丰富空间层次后期通过软装修饰。

地面通体瓷砖灰色略浅,墙面和家具的灰色略深 公共区域的墙面都是灰色硅藻泥,窗帘为制定,客厅和餐厅为墨绿色+橘黄的配色。 窗帘材质为意大利绒布,这种布料手感好、有光泽、布料垂感好、遮光度也很好,就是价格偏高。比一般棉麻的贵2-3倍。 成品家具去看了3天,去了红星和居然,这种类型的家具都是10万+起步,业主和我都表示溜了溜了,后来找到一个小家具城,给了其他家看中款式的图片,找到同款,5万+搞定的。 沙发: 主沙发选的是灰色(和墙地配色),单人位是橘黄色(和窗帘配色)。不同材质的颜色是很难一点色差都没有的,我找的都是色差最小的颜色。 地毯: 找美凯龙的一家厂家定制的,选择的这个款式,然后挑选的颜色,背景色是灰色,内部线条是黄色。 这样的好处是整体看起来其实很舒服,不会觉得很突兀,但是其实又跟其他物件有穿插和关联。

这是当时现场看中的地毯样式,但是颜色不是我们想要的。

这是现场挑选的地毯颜色小块,其中背景色用的灰色(M5),线条用的黄色(1606),最终也是按照这个颜色定制的,可以从其他照片里看到地毯的最终效果,也很好的搭配了窗帘和家具。

客厅另外一个角度,定制的无缝拼接异形空调出风口,效果也很好。

电视墙是整面细木工板打底。两边定制的护墙板,中间爵士白石材(老矿)。 地面的不锈钢卡条也和吊顶卡条的上下呼应,形成空间关系。

电视墙细木工板打底完成效果。

电视墙正面,由于顶部中央空调位置已确定,又不想改动(担心改动后期出现售后),所以顺着出风口边缘吊顶,从而导致顶面和墙面不居中。 考虑空间居中原则,电视墙左边扣除20公分的窗帘盒尺寸后,做一块墙板,右边做2块墙板。三块墙板尺寸一致都是70公分。

餐厅效果图

餐厅和书房空间対调,得来的是更大、更便捷就餐的餐厅空间。 顶地呼应设计、地面双色波打线+不锈钢卡条设计、定制酒柜满足储藏和展示功能。 窗帘同客厅款,墨绿色和橘黄色拼色设计,餐椅颜色选择同客厅沙发一致,没有选择4把同色,选择的2把灰色(呼应墙地)、2把橘黄色(呼应窗帘) 厨房木质玻璃吊轨门,没有地轨,后期清理卫生更方便。

桌旗网购,同窗帘主色

餐厅小景

窗帘配色。意大利绒布,墨绿色和橘黄色的搭配。

敞开式书房 这个空间原本是厨房,设计把书房和厨房対调,形成的敞开式书房,设计了地插 书柜定制的,颗粒板基层,吸塑门板,黑色五金,书柜留了层板灯带 中间的石材壁炉也是定制的,为了确保壁炉尺寸精准是等到两边的书柜现场安装完成后,在测量下单制作的。 挂画饰品网购

书房的另一个视角 为了拍照也是把书桌前面的沙发搬走了,不搬走拍不到书桌

小书房 男业主有时候晚上会在家办公,虽然客厅后面就是敞开式书房,但是男业主希望晚上自己办公不影响宝妈在客厅带孩子、嬉戏、看电视。 所以我们开辟了“第二战场”,把狭长的北阳台一分为二,一边做为休闲阳台,孩子爸放了台跑步机,另一边就作为自己的私人小书房,晚上的时候推拉门关上就是自己的一片天地。办公、游戏、看电影互不干扰 窗户还安装了木百叶,可以根据需求,调整光照亮度。


小书房的背面设计了一组到顶的储藏柜,当初的设想是作为换季鞋柜使用,现在看来的话算是一个储藏柜了。里面鞋子、工具箱、箱包、生活用品都可以放进去。 此类储物柜因为放置不同的物件,体积大小都不一致,所以建议适当设计一些活动的层板,通过抽拿层板来满足不同物品的收纳,可以看到图片中箱包的位置就是抽掉了一个层板。

重新调整后的厨房,从原门洞进入厨房,厨房呈现竖长型,无法设计U型橱柜,只能设计L型橱柜,也无法实现对开门冰箱的需求, 更改了进门位置后,实现U型橱柜,增加了台面的,有足够尺寸放置双开门冰箱。同时也预留了电饭煲、微波炉、切菜板的位置。 厨房整体配色灰白配,灰色墙地砖,白色橱柜+电器+吊顶。 灶台背面的瓷砖花了点小心思,用900*900的瓷砖水刀加工成150*150后,跳格铺贴的,完成后效果客户很满意。 瓷砖:冠珠瓷砖 瓷砖型号 白色:90002(900*900) 深灰:90018(900*900) 橱柜:志邦橱柜

在预算充足的情况下,水槽大家可以做台下盆处理,这家橱柜这个工艺费是500,小品牌200足够。 还有净水器有条件的能安装都可以安装。 瓷砖:冠珠瓷砖 瓷砖型号 白色:90002(900*900) 深灰:90018(900*900) 橱柜:志邦橱柜

《主卧室效果图》

主卧室延续公共空间的灰白基调,定制灰色护墙板,地面浅灰色实木人字拼地板搭配浅灰色墙布, 家具也延续了白色烤漆和灰色皮质和组合,在加入一些描金的线条处理,更契合轻奢主题。 墙面卡条、顶面卡条、吊灯、壁灯都是轻奢元素的体现。 实木地板:富得利地板 木门:顾友木门 家具:欧美家具

布艺部分窗帘选择了灰色和粉色的拼色处理(女主人比较喜欢带点粉色),床上四件套博洋家纺实体店后买,男主人比较喜欢蓝色。地毯延续灰色系列。

床头背景墙

主卧室进入衣帽间的门设计成谷仓门,为保持统一门款式,谷仓门选择了同款卧室门造型。

床头一角

主卧室窗帘的配色

主卧室墙布浅灰色,墙布内部纹理有变化,不呆板。

步入式衣帽间设计,考虑空间尺度和拿取衣物的方便性,未设计柜门。 双排衣柜设计,男女主人都有属于自己的独立衣柜。衣柜设计方面也考虑业主的生活习惯,(长衣+短衣+层板+抽屉+藤篮+裤抽+玻璃层板+灯带) 衣帽柜:法兰菲全屋定制

步入式衣帽间另一个角度 衣帽柜:法兰菲全屋定制

步入式衣帽间另一个角度 衣帽柜:法兰菲全屋定制

主卫设计双面盆浴室柜+壁挂马桶+浴缸组合。 用色方面深色瓷砖彰显档次,四周爵士白腰线塑造层次。白色美缝,跟瓷砖分开颜色,营造空间感。 为了追求更简洁美观的设计,顶面石膏板吊顶,腻子基层,进口硅藻泥饰面,没有做集成吊顶,射灯开孔位置不受局限。这种硅藻泥防水汽的效果要优于防水乳胶漆,顶面不容易受潮霉变。 浴缸右面的管道需要包柱,浴缸边上也需要有收纳洗浴用品的空间,结合在一起就在浴缸的左右都设计了壁龛,增加收纳空间,同时壁龛比五金挂件美观,而且更加安全,不易碰头。 男女主人希望可以有双面盆的设计,在原有的卫生间实现不了,设计后实现了这个愿望。以后早晨上班再也不用挣强洗面盆了。 浴室柜内部空间大,没有做镜柜。镜柜两边做了气氛单头吊灯,营造氛围。 台面的天然大理石找的最接近瓷砖颜色的石材。 瓷砖:冠珠瓷砖 瓷砖型号 白色:90002(900*900) 深灰:90018(900*900) 卫浴:科勒卫浴 马桶:K-5722T-S-0 浴缸:K-8277T-GR-0 挂墙浴缸花洒:K-7686T-4-CP

在一家小的实体店定制的双面盆实木浴室柜,好像是4000+记不清了,科勒的太贵了这种感觉的得2万+,没有买。

科勒浴缸+手持花洒

北面男孩房的房间我们将它设计成了榻榻米房,结合主卫和衣帽间个格局后,我们将榻榻米房的衣柜、书桌、书柜做在了一个平面上,整体感更强。

榻榻米正面

男孩房窗帘配色

男孩房墙布选色,不建议大家使用墙纸。 墙纸有拼接缝,现场施工对工人施工和墙面平整度要求都很高,时间长,拼接处容易翘皮,影响使用寿命。

南面的女孩房,整个都是粉白的设计,粉色的四件套、粉色的窗帘、粉色墙布。白色家具。

书桌尺寸小没有设计台灯,设计了一款单头小吊灯当做台灯使用,节约台面空间。

女孩房窗帘配色

次卫(公卫)设计单面盆浴室柜+马桶+淋浴房 用色方面除了淋浴房部分全部白色爵士白瓷砖,瓷砖美缝选择的灰色带闪银的颜色。 墙面四周深色腰线增加层次,淋浴房地面做拉槽防滑处理。 按照淋浴房宽度的尺寸,包了个85*20公分的管道柱,柱子内部设计了壁龛,放置洗浴用品,花洒改到对面去,设计“一字型”淋浴房。 浴室柜柜门白色烤漆,台面天然爵士白大理石,和地面瓷砖一致。整面的镜柜设计超级大气好看,镜柜深度20公分和管道柱齐平。台面一直延伸的马桶上方,马桶上的台面也做20公分宽,齐平管道柱,没有突兀感。 镜柜上下灯带设计,洗手池上方设计镜前灯,灯带6000k色温,不建议用4000k或者以下的,不够亮。 顶面也做的硅藻泥。 瓷砖:冠珠瓷砖 瓷砖型号 白色:90002(900*900) 深灰:90018(900*900) 黑灰色:80110(800*800) 科勒卫浴 马桶:k-7769t 挂墙花洒:K-45352T-C4-CP

马桶两边分别设计了两个小格子,这是设计放置纸巾盒其他生活用品的地方。 从图片中可以看到左边的2个格子略长,右边的略短,右边考虑了垃圾桶的的尺寸。不影响垃圾桶的正常开合。

淋浴房内部设计的壁龛,壁龛右边实体部分内部为落水管道。

花洒改到了这里,墙面和地面一样做了拉槽处理。

阳台洗衣机柜+吊柜,受管道限制,洗衣机外露了一部分。

矮柜,软包垫还没有来得及采购。

客餐厅走道

走道看玄关,卧室门也镶嵌了铜条。统一风格,延续轻奢元素。

走道看主卧, 所有的踢脚线都是10公分高,没有做瓷砖踢脚,为了效果,做成跟门套一体,木门厂家定制的。
