我爱我的家 儿子女儿我的他 爱就是感谢 不记任何代价 我爱我的家 儿子女儿我亲爱的她 爱就是珍惜 时光和年华…… 我们的业主一家就是歌曲里这样的一家四口,在装修的时候,妈妈为了两个孩子能有更好的成长空间,在儿童房的设计上考虑了很多,还自己画了很多手稿,总之特别用心,父母之爱子,则为之计深远! 房子是应天高架下面的一处老房子,房子内部墙体几乎都是承重墙,改动空间不大,为了满足业主三室两厅一厨一卫的要求,我们进行了如下调整。

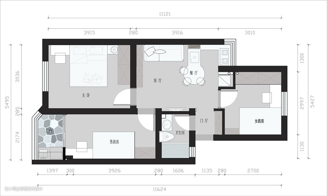
原始户型进门北边是厨房,中间客厅,南边两个房间,如果是只要两个房间,这个户型居住还是挺舒适的。

方案上,我们把北边的厨房改成了姐姐的房间,北边墙体拆除做了入户的鞋柜,卫生间的门改到门厅,不对着客厅,客厅是做了沙发,餐桌,厨房三大功能,利用原来客厅北边的小窗户做了灶具的位置,餐桌直接连接橱柜做了整体台面,既可以当做操作台,也可以就餐。
这个角度看玄关还挺大,其实也就一个平方左右,地面选了彩色小块仿古砖,有放大空间的效果。

客厅的布局从左往右依次是:书柜→沙发床→餐桌操作台→灶台区。将餐桌和水池操作台形成整体,极大程度的节约了空间。配色上墙面刷了蓝绿色的乳胶漆颜色,与黄色沙发形成对比,使得空间富有生命力!

沙发边的书柜摆满了书籍,闲时的下午,陪孩子一同遨游书海。

电视背景墙这原来是卫生间的门,我们调整了一下门的位置,自然形成了一个背景墙,做了个拱形的造型,配合整体风格,两边的门洞刚好有对称效果。→请忽略这故意挂高的电视和电视柜吧

很喜欢这个角度,看着很舒服,蓝色的椅子与背景相呼应。想说一下厨房与餐厅的过渡,瓷砖贴完有收口的问题,我们定制了一块洞洞板,可以挂一些用具,方便实用!

这个圆形台面周长是一米的,业主说之前来朋友,坐下了六个人,平时一家四口吃饭足够了

迷你小厨房~这里还是想给大家介绍个老物件《无烟灶台》,我们也是在小区无意间看到的,当时就觉得太适合不过了,一是可以利用到外部的一点空间,二是业主做饭没有太多重油烟,虽然看上去没有油烟机好看,但是十分实用。我们拍照是在业主入住半年拍的,业主反馈效果很好

女孩房是原来的厨房改的,空间相对大一些。房间色调没有用大面积粉色,墙面墙纸用了米黄色底色紫藤萝图案,可以用很长时间,书桌做了转角,桌面用了粉色,满足刚上一年级的姐姐的喜好。


男孩房是一个长条形的,又连接着阳台,所以床只能横着放了。原本是想做高床下面做衣柜,考虑孩子成长使用方便,最后还是订了常规高度,床下做抽屉储物!整体布局为衣柜→床→书桌→阳台。我们拍照的时候弟弟还没放学,就让姐姐上镜了

墙面贴了地图墙纸,小朋友很喜欢。床是定做的榻榻米,我们定制了铁艺床头靠。柜子和桌面都用了蓝色系。



阳台比较小,连接男孩房,色彩上丰富些,洗衣机吊柜做了一格方便摆放物品的空间

最后放上一张全家福(爸爸还没下班),两个孩子特别活泼,我们就拍照那会带了俩娃就觉得超累,也不知道妈妈平时怎么过来的,真是不容易,愿你们在这温馨的小家里越来越幸福!

