△本案属于大平层,原本优质的空间布局及使用面积,优化空间仅仅成为了基本需求之一,户型本身符合当下流行的宽面弱深特点,动与静的合理划分打破了空间的死板分割,使生活的每一个场景变得舒适。一层选择简约大气的轻奢风格,顶层选择文化气息浓厚的新中式,自由随性的徜徉于舒适的海洋。
△本案属于大平层,原本优质的空间布局及使用面积,优化空间仅仅成为了基本需求之一,户型本身符合当下流行的宽面弱深特点,动与静的合理划分打破了空间的死板分割,使生活的每一个场景变得舒适。一层选择简约大气的轻奢风格,顶层选择文化气息浓厚的新中式,自由随性的徜徉于舒适的海洋。

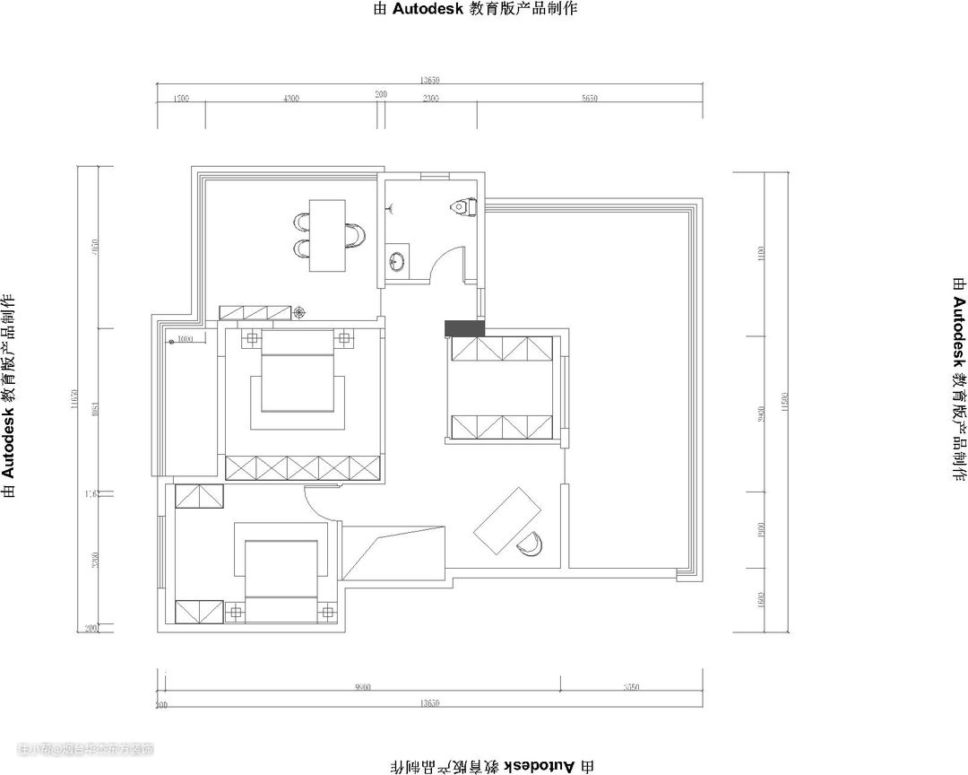
顶楼原始结构图

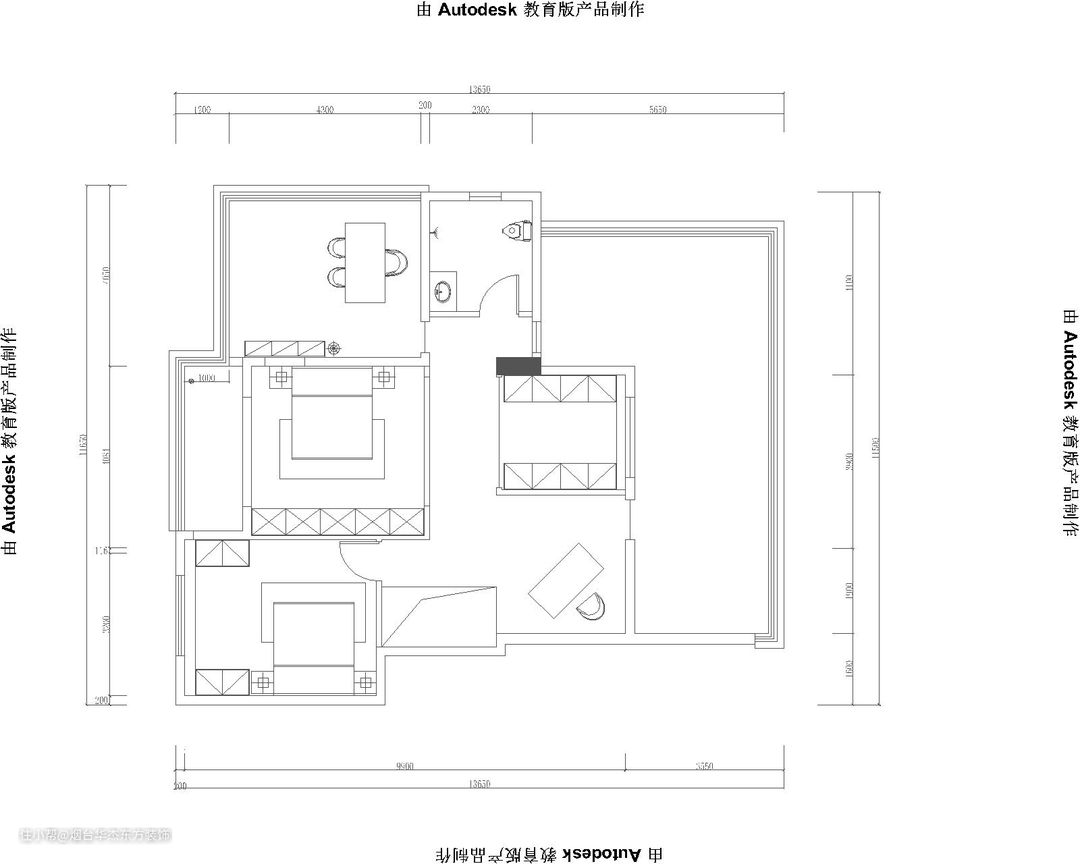
顶面平面布置图

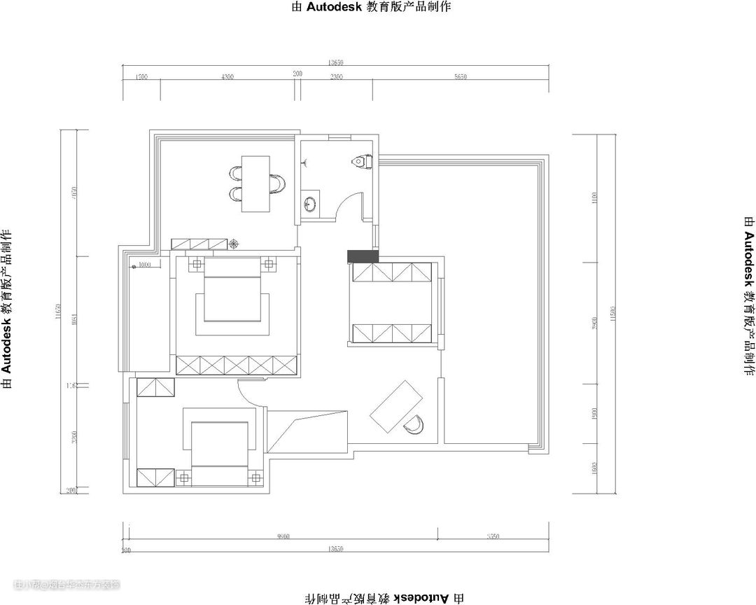
阁楼平面布置图

作为家里的第一空间----客厅,是装修中设计的重点,高级灰、月牙白作为客厅的视觉担当给人以沉稳内敛的第一感受,富有质感的真皮沙发搭配现代质感茶几,作为整个空间视线主角奢华又不失雅致打造出理想中家的模样。


电视背景墙采用石材上墙,简约大气,色调与楼梯及地面瓷砖遥相呼应,天然的机理透着奢华,地面通铺大地砖,空间得到延伸,色调保持统一,愈显庄重与大气。



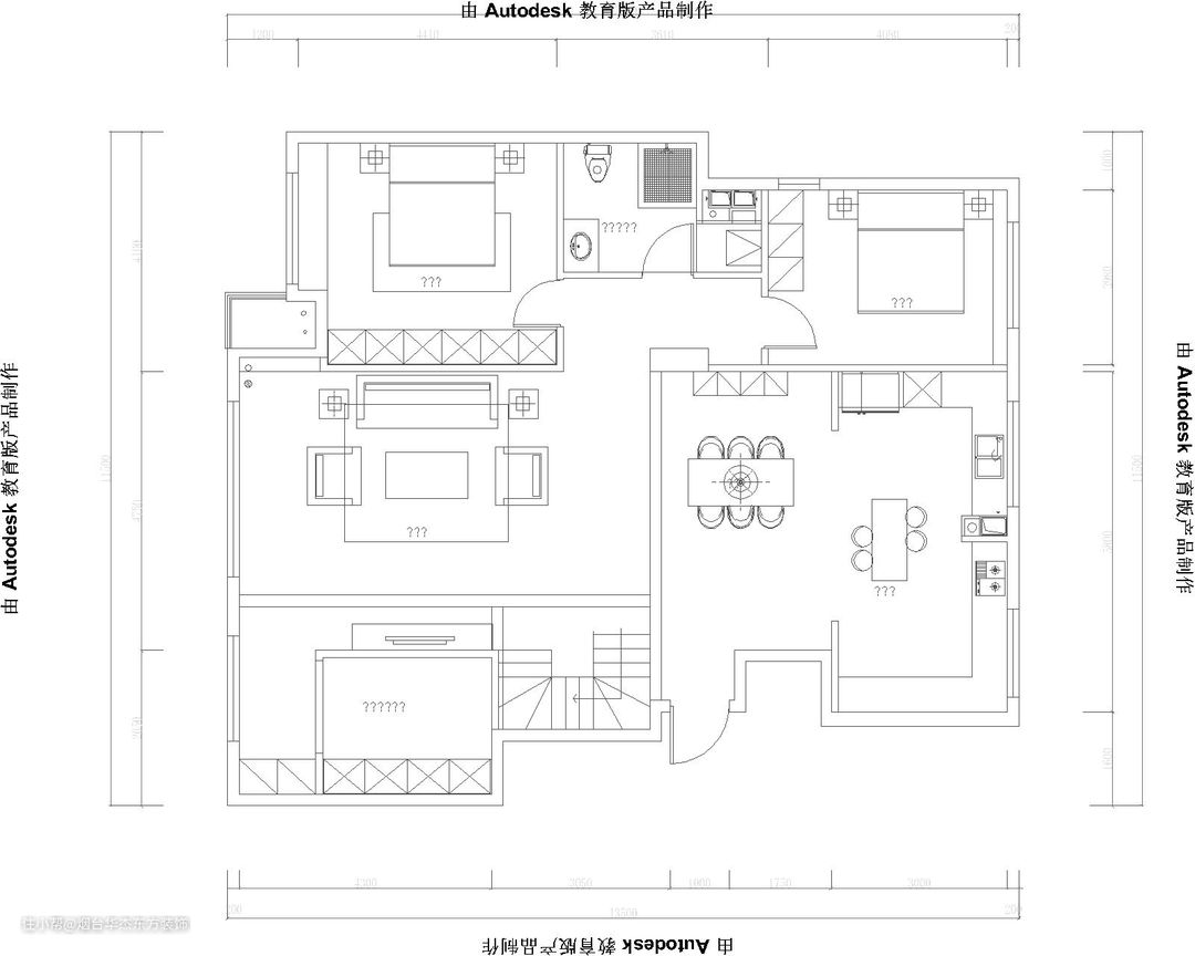
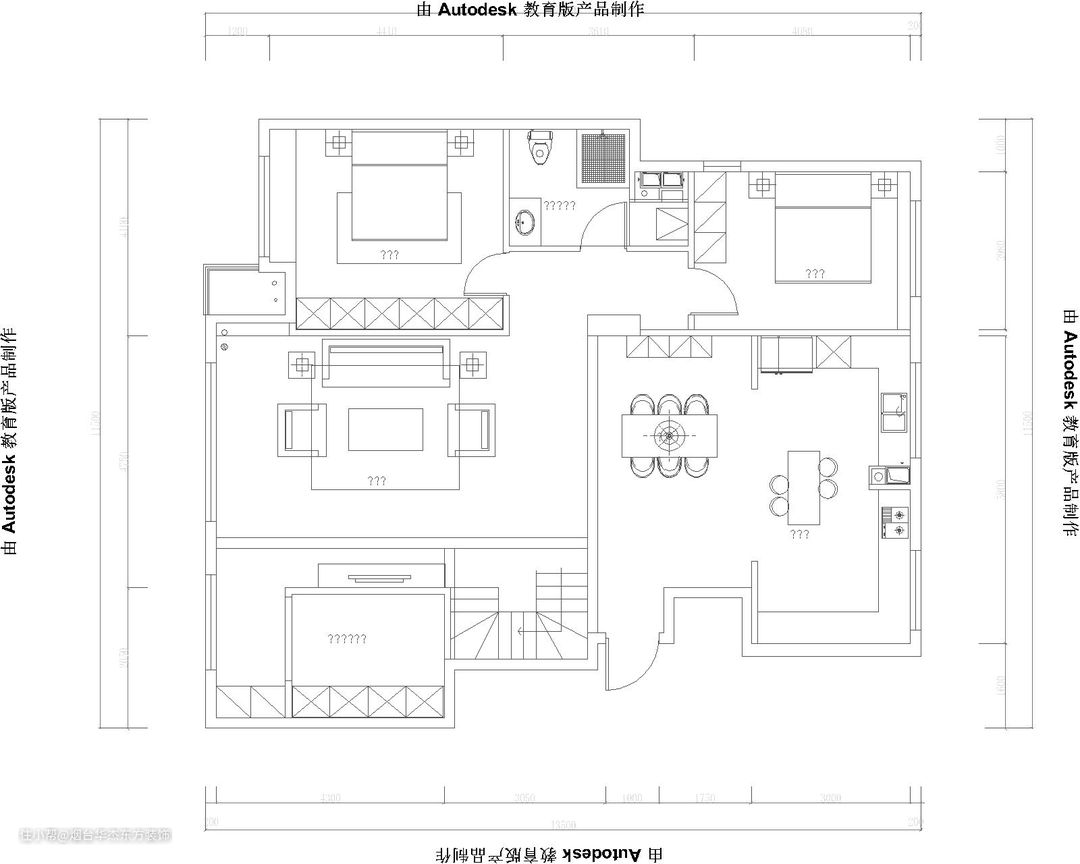
户型为顶加阁户型,楼梯的位置非常关键,设计师经过细致考量,结合户型特点,将楼梯安排在电视背景墙旁,兼具功能与收纳,材质与电视墙统一,富有颜值又兼具功能性。客厅,餐厅,厨房,材质相近、色彩深浅,用以平衡空间关系、让空间与空间之间有连续性,也更具互动性。
本案为大开间户型,客餐厅的空间相关联,餐厅背景墙作为客厅沙发背景的延续,保持了材质及色调的统一,大限度的拉伸了视觉效果,灰色饰面板与大理石纹地面结合,大面积铺贴的素色壁布更具肌理感,细微色调深浅不一,丰富整个空间的层次感。

厨房采用开放式,时下流行的岩板材质得到充分使用,中西结合的操作方式侧面反应了业主多样多趣的生活方式。

爱马仕橙,这抹高明度色彩作为深色调的调剂色彩再美妙不过。一楼卧室大胆搭配爱马仕橙色床及床头柜,让缺乏活力的卧室空间一下活泼了起来,床头线灯、隐形灯带及点光源的设计让每一个角度都出彩。


楼上卧室延续纯色硬包背景,搭配优雅的中式线灯,不过分强调风格,又能从细节处感受到东方人文。



此卧室并不是传统意义上的卧室,主人将此房作为客房使用。


美无需张扬,返璞归真才是生活的本质。客卧原木的自然亲和平衡着人的内在情绪,而相对降低饱和度的竖纹壁布构出雅致非凡的气质,再融入流动的、洋溢线条美的金色元素线灯,为空间铺垫雅致气韵,带来多重感官体验。
通过阁楼平台的搭建分割出书房空间,即可泼墨于山水,又可花鸟鱼虫于田间



方案设计中多采用开放式设计,整体色调保持统一,适当的金属材质点缀,瞬间温暖起来。大面积的落地窗,让室内光线更加充足,空间更加开阔,通透。
卫生间延续家里瓷砖主色调,简洁干练

厨房采用开放式,结合导台设计后,操作空间更大,空间交互性更强

东方美宅,悦目倾心。阁楼采用新中式风格,木饰圆窗墙面装饰奠定中式沉稳大气的格调,圆窗中写意的山水刺绣墙布,仿佛侧目望去就会有山水万千;简单造型的中式家具搭配丝绸刺绣的抱枕,点缀出时尚雅致、温馨舒适的空间。



专门留出的活动区域做了地台设计,折叠门设计使空间兼具封闭与开放功能,又很好的将光线引入到每一个可以到达的地方。


问:装修这套房子最大的难点是什么? 户型设计的重点是要解决楼梯的位置以及动区和静区的最好划分 问:如何有效控制装修预算? 在大项目上把控整体预算,小项目上严控预算。很多小件儿的搭配可以尝试网购 问:最满意的设计亮点是什么? 楼梯的位置以及厨房的打开 问:最值得推荐的软装好物有哪些? 爱马仕橙并不像想象中那么高调,放在素色家中,会收到意想不到的效果
