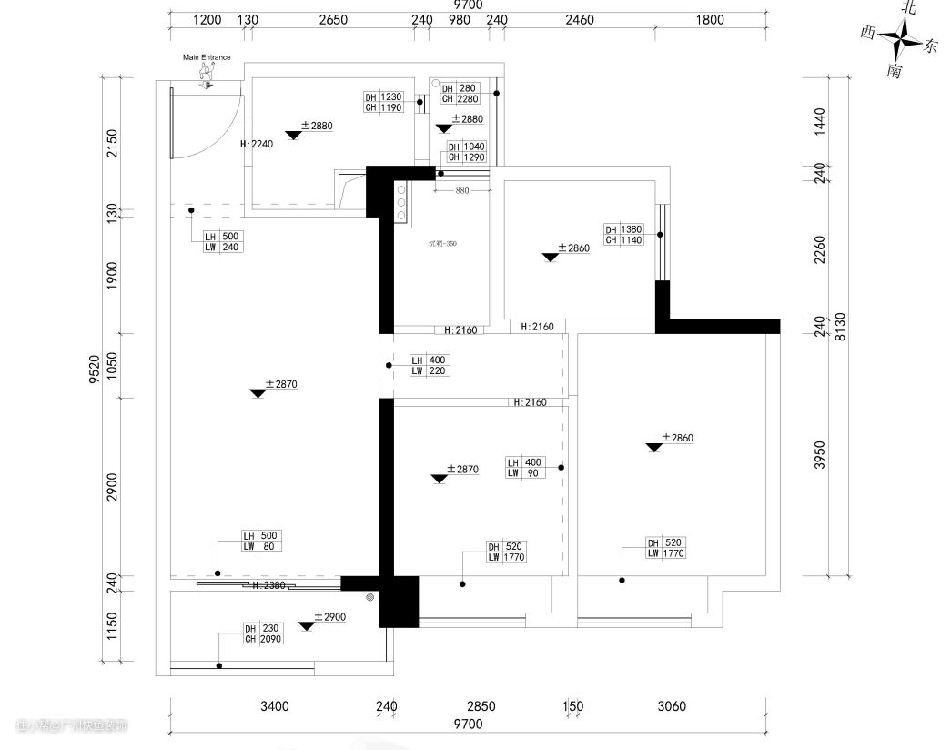
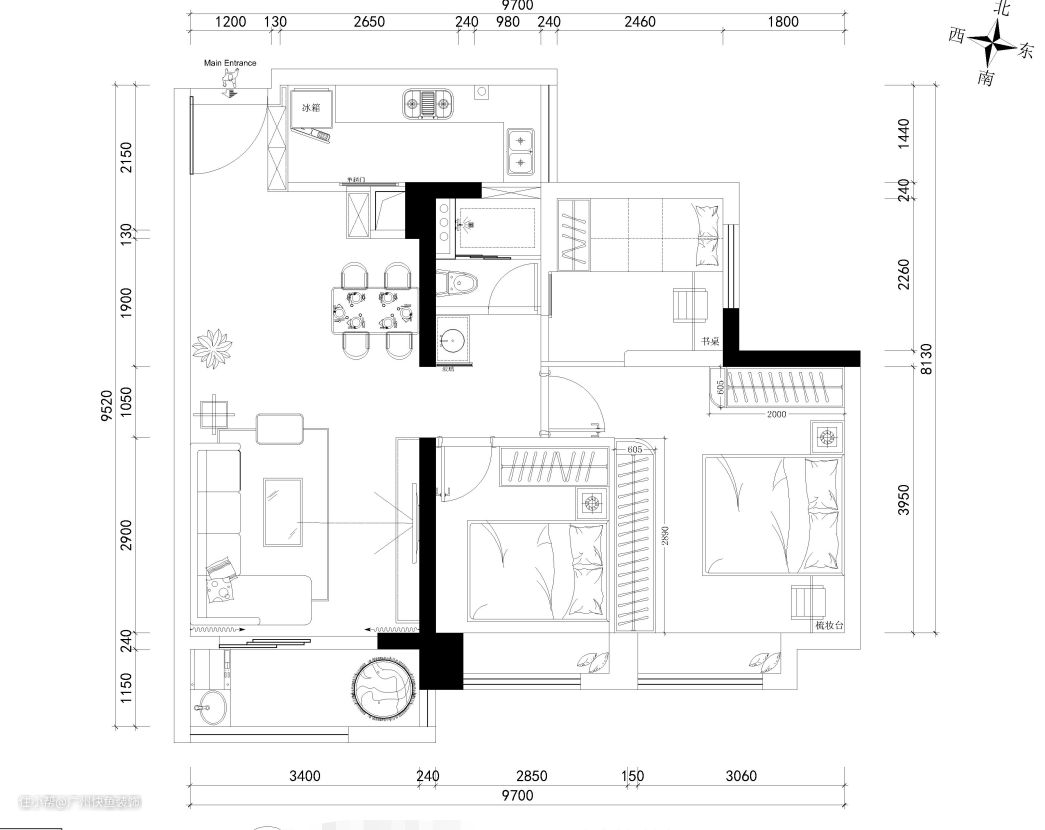
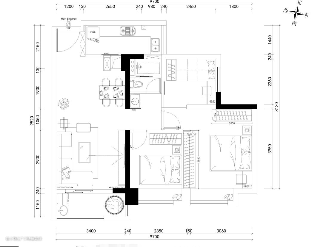
户型解析
设计亮点: ①卫生间做三区分离设计,卫生间内设计干湿分离,将原来的洗漱区挪置门外,形成三区分离 ②将原来走廊的位置外包进主卧,增加主卧的使用面积。


客厅

全屋以白色为主调,白色有简洁白中突出的高级感。一幅画就很有家的感觉。T型沙发实用慢慢的舒适感

原木作为电视的背景墙,搭配白色的储物柜,突出整体的高级感

偌大的阳台落地窗,阳台的衬托下整体光线十足,在家也成了养眼的感觉
餐厅

客餐厅一体,一进门家里的整体格局清晰。摆放绿色植物,显得格外养眼。空气也得到自然净化

厨房

厨房是L型设计,L型好处就是合理利用好空间,让厨房空间变得更大。洗漱区和做饭区两不冲突

简洁又不失精致的厨房,以蓝色柜子的墙砖地砖搭配白色定制橱柜。
主卧

全屋衣柜环绕,季节性更换被褥完全没有问题。主卧华丽空间大,搭配原木地板,韵味十足


次卧

次卧给人一种清新感感,以蓝色为主调,清新舒适
儿童房

儿童房作榻榻米设计,书柜、衣柜都是可以全部拥有
卫生间

卫生间三区分离的设计,满足洗漱区和沐浴区的使用,互不干扰

干湿分离是屋主明确要求之一,爱好清洁好打扫。依旧采用深色便于清洁的地砖和墙面砖,简约、干净、整洁的同时,更规避了卫生间的冰冷之感,让家里的每一处都有暖意在心。
