《耀眼》中有这样一段经典台词:“我的人生,偶尔不幸,偶尔也幸福过。人生虽然是一场梦,但我依然高兴自己活一场。凌晨刺骨的冰冷空气,开花之前吹来的香甜微风,落日之前弥漫开的夕阳气息。每一天都是那么的耀眼。现在活得疲惫的你,既然出生在了这个世界,就有资格每天都享受这些。”一万年太久,只争朝夕,我们有资格过好每一天,享受每一天。今天为大家带来的是中航城70平米地中海风格的户型解析,让我们一起来看看吧。 基本信息: 项目地址:中航城 房屋面积: 70平米 设计风格:地中海风格 设计说明:本案例的设计风格是地中海风。地中海风格的设计色彩搭配上 比较艳丽,大多使用高饱和度的颜色。这种特别的风格受到越来越多人的喜爱。大多数都需要一种悠闲自在的生活,而地中海风格正好能迎合大多数人的这种心理需求。 设计亮点:依据户型特点来进行空间设计,本案例的好户型面积较小,只有70平米,因此在空间划分上较之于其他的设计要多考虑一下空间的充分利用。客厅与厨房还有餐厅放在通同一个大空间里,既不浪费多余空间也考虑到互补功能区的密集型分布。安置了卧室和卫生间之后的剩余小空间设计成阳台之类的休闲空间,让空间得到充分利用。

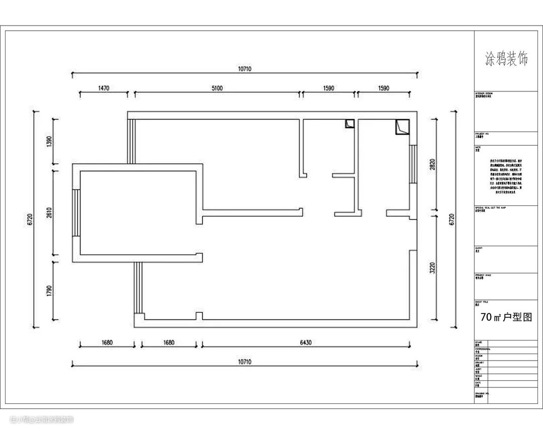
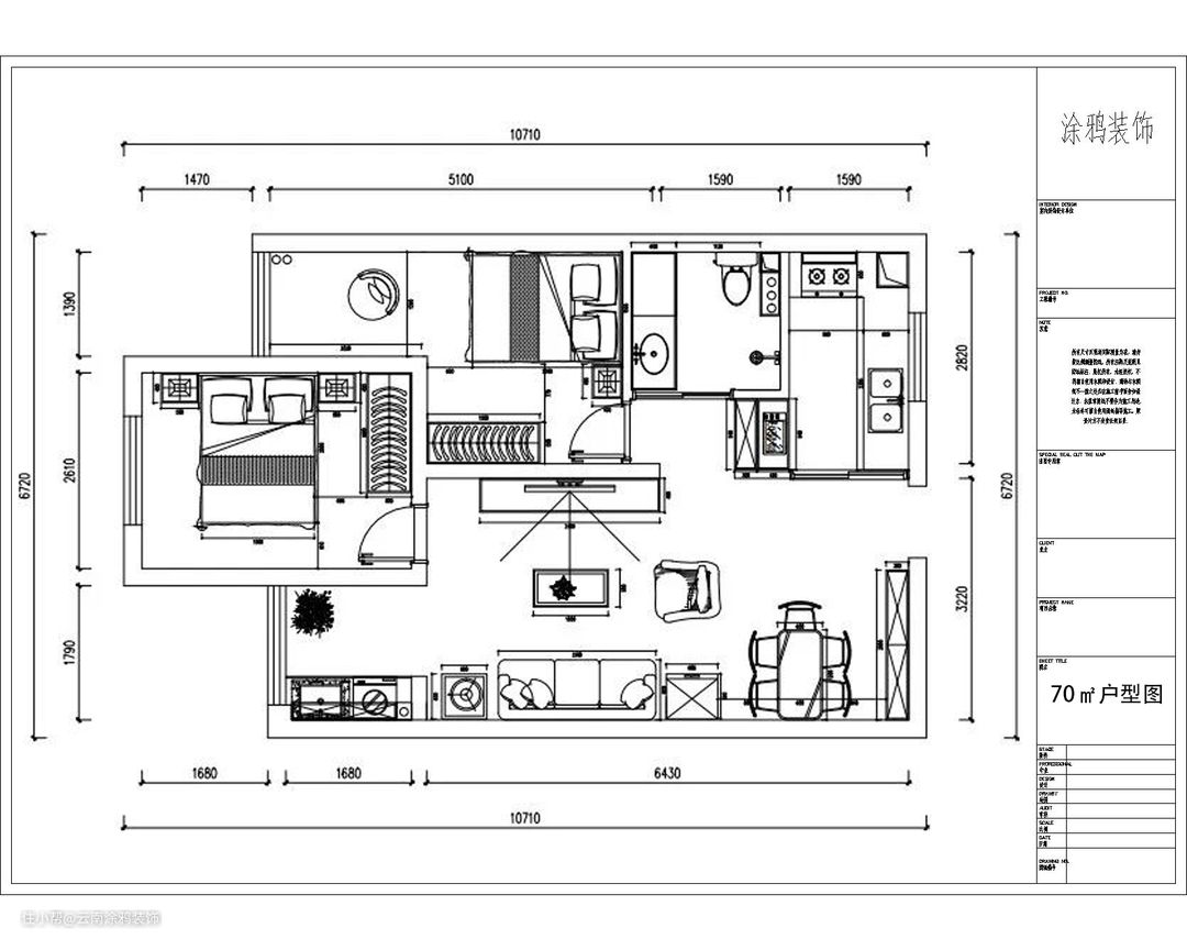
户型图

平面布置图



客厅的色彩搭配比较美观,还体现了色彩的碰撞与组合。大量选用与自然相似的柔和色彩,又充分利用了空间格局,讲求空间搭配原则。主色调是蓝色、白色、黄色,这些颜色让人自然联想到蔚蓝色的大海,白色的阳光沙滩,还有土黄色的墙壁和岩石,浪漫雅致。

餐厅的色彩也是以蓝、白、黄为主。蓝色的背景墙上一侧放了装饰的方形挂画,一层同是整齐排列的圆形装饰画,以及椅子的腿、椅靠背都是圆形设计,这是地中海风格中的常用元素,柔和自然又极具观赏性。

主卧的设计比较雅致自然,黄蓝白的撞色组合呼应客厅,在观感上整体统一。凹陷式的屋顶,增加了空间的立体感,同时又以柔和的暖黄色灯光装饰,卧室的温馨舒适感就有了。

次卧最大的特点就是融合了海洋的众多元素。墙面选用不同形状的帆船图案壁纸,地板上也铺上了蓝色的地毯,图上是各式各样的鱼群。床的样子设计成帆船的模样,躺着床上就像谈着船上,有一种船在海上航行,人在画中游走的感觉。

书房面积不大,但设计感十足大面积的蓝白黄三色组合辅以柔和的灯光,让整个书房更加静谧。墙壁一侧设计成壁龛,用来当书柜或是放上一些装饰品,增加的空间的储物面积。窗户处设置了一个小型榻榻米,拉开窗帘艺靠在一侧就可以感受到阳光的温度。 时间的齿轮不断向前,我们过去了一个没什么了不起的一天,又会迎来没什么特别的一天,但人生值得一活。不要因为满满都是后悔的过去,还有让人不安的未来,而毁了现在,爱每一个今天吧。耀眼一些,你有资格。