1、原户型是狭长型两室,客厅是包裹式暗厅,采光差,很多东西被胡乱丢在地上,几乎无处下脚,墙上全都是贴画,让整个空间巨丑,线路也都在墙上吊着,家里有孩子很危险的。 2、厨房设施简陋老旧,很多电线板材也随着时间的流逝老化,墙砖都贴了半截,墙面很容易脏且油腻腻的。烟道在厨房里,但燃气灶放厨房阳台了,上置型灶台,旁边连挡板都没有,炒菜弄的四周围很脏,洗菜盆腐蚀掉,包括旁边的管道,使用感好差。 3、卫生间干区地板都坏了,小柱盆感觉一使劲儿就坏了,洗漱很容易弄一地水,没储物还显脏乱,暗卫使用起来不舒服,湿区管道都暴露着不安全。 4、主卧空间咖色的地板和柜体会让空间显压抑,墙上也是一堆墙画和贴纸,很脏乱,阳台更是摆一堆东西,还有个10公分的地台,次卧空间也是如此,整个家住起来好难受啊。

原始户型图

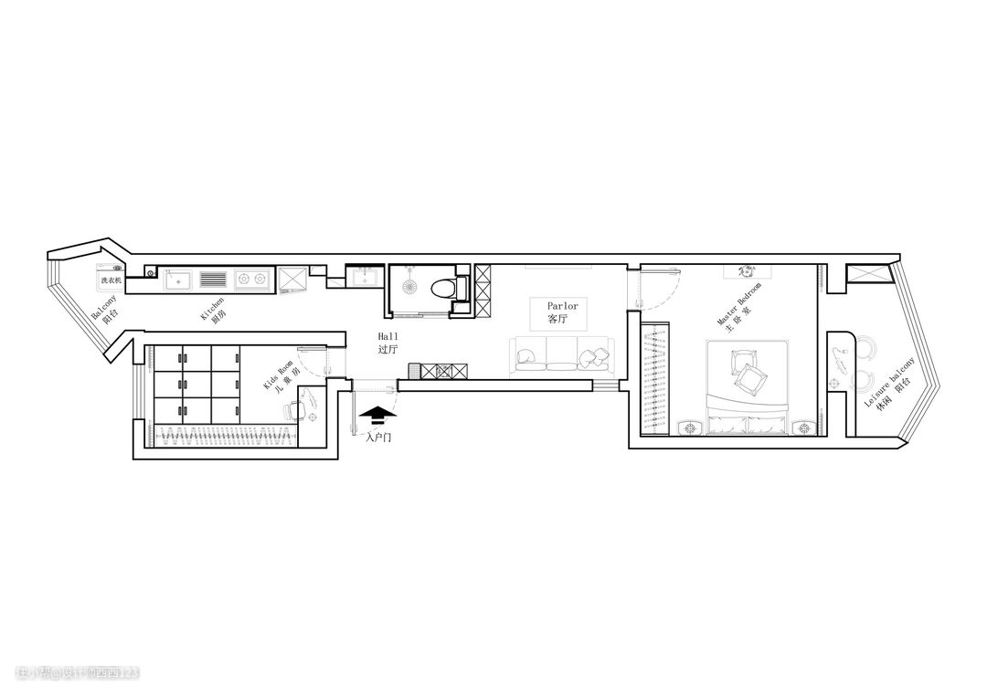
平面布置图


进门右手边是一个玄关柜,满足屋主一家三口日常换鞋、放包、挂衣、储物的需求。





客厅空间不大,兼顾餐厅,尽可能的榨取每一寸空间,直接做投影幕布,比电视亮度更柔和,不刺伤眼睛,旁边还有到顶的储物柜,保证公区的收纳,这个空间扮演了客厅餐厅2个角色。









厨房重新调整布局,把炉灶挪进来,冰箱、橱柜一字排开,整齐好用,原来的阳台,变身洗衣区,挨着厨房,上下水比较好解决。







主卧非常的舒适宽敞,做了通顶的储物柜,让收纳最大化,阳台10公分的地台填充和卧室空间一般高低,使用感最佳,因为夫妻俩偶尔要在家办公,阳台加宽设置了个吧台,闲暇时坐在这里晒太阳、喝茶小憩,惬意极了。





进门左侧是次卧,为了有更多的收纳,做成了榻榻米衣柜书桌的定制,全部换成浅色的柜体和墙面,让整个屋子更舒适。






卫生间原来就是干湿分区,封闭卫生间原始门洞,避免正对厨房的尴尬,调整走位动线后更合理,主卧和客厅来卫生间也不用拐弯,磨砂玻璃推拉门,不影响采光,干净利落占地少,使用起来也更舒服。

最后,千万别小看收拾屋子的力量,很多迷茫、困顿的人,改变自己生活的第一步,都是从打扫房间开始的哦~
