▲写在前面 生活是一场旅行,而家便是旅途的终点。我们一路上遇到很多风景,最终渴求的不过是一盏为自己而亮的灯。 ▲屋主情况 这是一套婚房设计,居住者是一对新婚90后夫妻,通过同事的介绍了解飞墨; 女业主是一个甜美的美术老师,家中的多幅画都是自己手绘完成,艺术气质拉的满满的。与设计师交流设计时,配合度满分,所有的设计都是一稿过。 遇到一个一拍即合的业主,我未言,你已懂,于设计双方都是一个舒心的过程。

▲项目基本信息: 设计风格/现代风 项目面积/140㎡ 半包价格/18万 项目地址/合肥-平湖秋月 我们给本案起名《风吟》,等风吹来,吟诵的,是生活的模样。

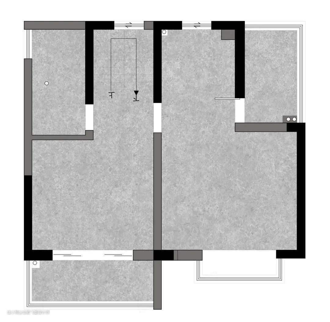
▲一楼设计解析 ①一楼主要作为家庭公共空间,设计客餐厨、客卧、客卫。 ②以沙发为隔断,划分客餐厅空间,隔而不断,保持各自独立功能。 ③餐厅与阳台之间拆除非承重墙,扩大门洞,用大面积玻璃门,提高室内采光。 ④北阳台与客厅打通,设计小休闲区。


▲二楼设计解析 ①二楼主要作为业主居所与未来的儿童房使用,与一楼动静分区,隐私性高。 ②重新规划布局,主卧与北阳台打通,给男女业主各自独立书房,同时提高空间采光效果。 ③儿童房与南阳台打通,并在阳台设计书桌,可以给未来的宝宝学习的空间。


量房现场时拍的毛坯现场,与现在装修后的实景呈现出来的视觉效果真的很强! 餐厅区域,利用墙面打制餐边柜,赋予日常生活里的实用性。“人间烟火气 最抚凡人心”,厨房面积虽然不大,但U型布局充分利用了空间,又继续保持通透感。


入户玄关区柜子长1米7,高2米4。纯白与原木的搭配,足够温馨,功能性也更加完善。底部悬空设计,也便于日常清洁。

家,是心灵的归宿。在此间,相爱的人走进共享彼此的生活,用家居诉说生活的点滴故事;而客厅,总是与陪伴、与爱意有关。

没有过多浮华的设计,灰、白、原木,简单的色彩勾勒出质感十足的客厅;棉沙发柔软舒适。

木饰面个性造型,诠释电视背景墙高层次感;灯光的交错,给予客厅足够的氛围感;一幅画,一棵马尾铁,一个复古小边几,过道的墙面也不再孤单。

这一方小天地,有设计,有艺术,有生活,天然材料,素雅配色,简单布局,勾勒出休闲、松弛、舒适的生活轮廓。

让理想的家居在空间中落实,是人与空间相互融合的过程;与生活对话,用热爱去填充家居;与空间交流,让家不仅仅是一个冷冰冰的房子。

一个小物件的选择,也饱含对生活的爱意,与未来的浓烈向往。

享受当下的二人时光,相拥在沙发上追一部剧;各做各的事,一人画画,一人读书,无需言语的交流,也能感受到对方的陪伴。


窗户划分外界的喧闹,好的家居,能够传达给居住者心灵深处的平静与从容。


餐厅与客厅以沙发简单划分,隔而不断,可以满足不同空间之间的互动交流

延续整体空间的素雅基调,加入一抹棕色,符合餐厅的暖意氛围。


餐边柜用透明柜门与木质柜门相结合,展示、收纳都能得到满足;嵌入水吧,缩短空间动线,烧水、洗水果,都很便捷;冰箱、烤箱也选择嵌入餐边柜,解放厨房空间,延展餐厅功能。


周末时,可在此边追剧,边做烘焙,生活休闲两不误。


走过平湖烟雨,跨过岁月山河,那些热爱生活的人,总是能把生活过的热烈而美好;煎一个鸡蛋,熬一锅粥,买一个冰镇西瓜,在夏季的晚风中,享受不疾不徐的一段时光;如果幸福有模样,也就如此罢了。


厨房只采用了简单的黑白灰配色,干净清爽易打理;高低台的设计符合人体工学,可缓解下厨时的疲惫感,从细节处,增加舒适。


阳台与餐厅相邻,用大面积玻璃门作为隔断,不影响空间采光,又保留独立功能;打开窗户,晚风可无阻碍的进入室内;洗衣机+烘干机的模式,科技生活,减少晾晒空间,给生活增添便捷度。


拾级而上,木地板温润脚感,进入家居私域空间。

进入卧室,很轻易的便能从空间中感知到平和宁静;配色简约典雅,选材自然质朴。半扇木饰面的墙,想让人窝进去的棉麻质感床体,营造舒适爆棚的主卧空间。让人能在此脱离城市的喧闹,回归家庭的温暖。


靠近阳台的这半边,是女业主的书房,与之相邻的还有男业主的书房;在足够的空间内,给各自不被打扰的时光,家就应该是这样,有相处的空间,也有私人领域。


采用暖黄色装饰墙面,儿童房是整体家居中相对活泼的空间,但同样延续了整体的风格基调,床、衣柜、书桌,给未来的孩子足够的生活、休闲、娱乐空间。



主卫依旧延续纯白与原木色调搭配,大理石洗漱台天然纹理,大气温婉,台下盆方便清洁,造型上也更加简洁利落。
快节奏的城市总能让人变的焦躁,但好的家居,能给人力量,保持内心的淡定从容;不被外界干扰到自己的选择,也不必去追求千篇一律的网红装修效果;用简单的材质勾勒出生活的模样,私人定制化设计方案。 在光怪陆离的人间,没有人能将日子过的行云流水,我们只能尽可能的提高自己的生活品质;不必羡慕别人的生活,城市万家灯火炊烟袅袅时,总有一盏灯为你而亮,归家亦是归心。
灯配选购参考清单:





问:这套跃层装修花了多长时间? 答:大概半年左右。 问:这套作品完工后,你有什么感想? 答:一套案例落笔,仿佛诉说完了这几个月合作的点点滴滴;业主夫妻都是很随和的人,对于装修的配合度也很高,装修结束后还给我们推荐了很多待装修的朋友;相逢一场,倍感荣幸。
