当生活摆脱了刚需的局促,慢下来,静下来,内心深处的渴望逐渐浮于眼前,自由、轻松、舒适,想要的诸多状态最终都在家的这方天地里汇聚、升华。

每个人对于生活 都有不一样的畅想 随着社会的发展 更多的人自我意识觉醒 开始追求高品质的家居生活环境 从设计出发 让家里的动线、布局、颜值 最大化的满足舒适 便是设计的初衷

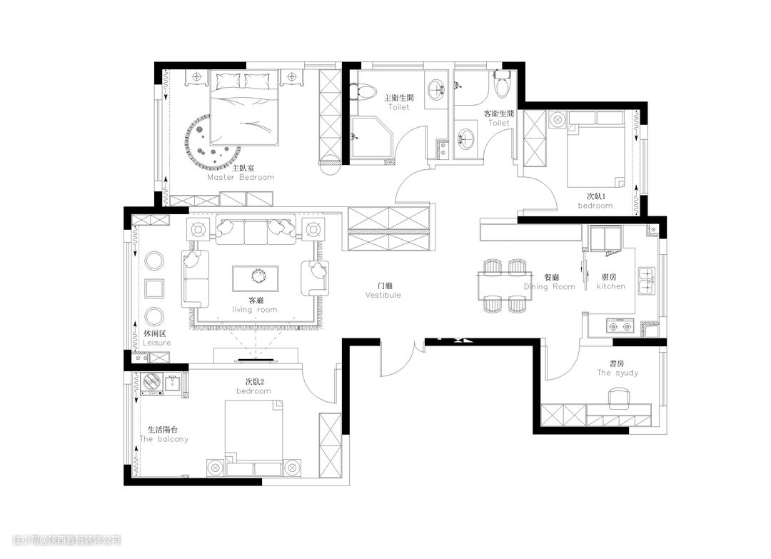
原始户型结构较为方正,空间利用率也高,后期在设计过程中没有进行过多的改造,结合居室的整体布局,打造出适宜居室主人居住的场所。

玄关,进入家的第一个落脚点,业主的要求很明确:“一定要有挂衣服放鞋子包包的区域”,设计的用心总是在细节处体现,玄关柜的底部抬高了20公分,以解决常穿鞋摆放;中部留空方便随手物品的放置;柜门选择封闭式柜门,营造干净清爽的柜内环境。



家,是要能给人静谧享受,放空思绪的地方,那空间的设,就要与之相糅合;与阳台之间拆除门体后,光线可以更好的洒进室内,给客厅带来更好的通透感,但阳光也同样保留了收纳和娱乐功能,与客厅之间相互连接,又彼此独立,给家居最好的尺度感。 设计的精髓,在于将居住者理想家居完美的表达,空间里的一切都在诉说生活的态度,让不同的材质、不同色彩在空间里相互融合,成全家居新生命力;人与空间、人与物品的关系处理,最终让房屋充满独特的生活气息。


餐厅依旧是最温暖舒适的模样,一盏白色的吊顶,跳色的餐椅,便轻易将居者拉进餐厅的暖意氛围里,让人联想到鸡蛋的香,榨橙汁的甜,以及浓郁的生活气息,搭配简易却有格调的餐桌,有复古精致气息的餐边柜,让餐厅的空间,交织艺术与生活。


与厨房之间,用玻璃门隔断,可以让采光更好,也能节省空间,“买半个冰到恰到好处的西瓜,吹着温热的风,看着隐去的太阳,把天空渲染成一片惊艳的红,万物醺然安静” 由春入夏,四季变化,不过是赴一场人间烟火。

卧室+大衣柜+卫生间组成的主卧,俨然是一个舒适的小套间系统了,也业主夫妻最舒适的私人休息空间,配色简洁大方,用业主的话来说,虽然很简单,但是很舒适。 对于居住者而言,卧室的简单是视觉感官的干净舒适,而对于设计师而言,高级的简单,是精准搭配设计的必然结果。

以居住者要求为前提,注重空间的自由、品质、高级、舒适;用材质、配色在空间中不同的转换,为居住着呈现一个能衔接过去,适合当下,也可生长的家居环境。

设计带来的惊喜,是在入住的工程中,一点点汇聚的,这个家看起来似乎什么都没有,但业主入住半年却能保持初遇的美好,生活的加法,设计是减法,无即是有。 家居设计并不是为了展示而展示,用奇异的设计吸引大众的眼球,用难以想象的技巧去赢取掌声;适合生活的设计应该更加精简化、易操作,给居住者真正带来便利。


主卫考虑到空间大小,改了马桶位置,做了墙排马桶和干湿分离,尽可能在有限空间内,也业主提供更多的生活可能性。
