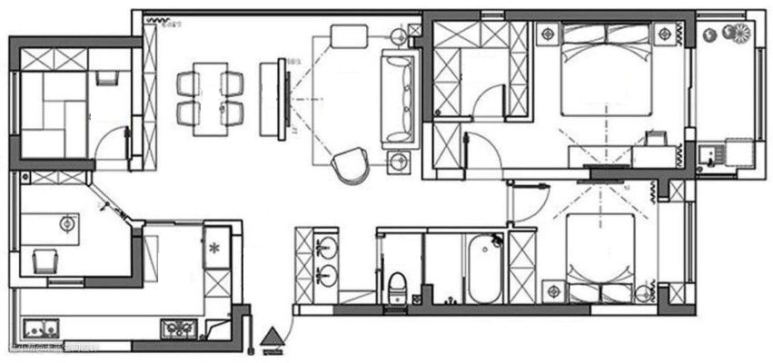
户型解析
说在前面 本案为“一字”户型,南北通透,采光充足,原户型为三室两卫,业主是夫妻俩和一位活泼的小男孩,寒暑假的时候老人才会过来小住。 业主需求 1、收纳空间要足够 2、洗漱空间要大,需要浴缸 3、三间卧室保留还希望有独立的办公区 户型改造 1、原布局将厨房借用独立出一间小书房 2、厅内做半隔断墙面区分客厅和餐厅,同时不影响玄关采光 3、家里人口不多,将主卧原有卫生间改成独立衣帽间 4、借次卧部分空间,做双洗手台,加增浴缸

客厅
简单灰色沙发搭配木质家具,简单干净。 半墙隔断搭配木质隔断,变成一个环境背景墙,入户及景。


餐厅
整面墙定制柜与餐桌椅保持同一色系,满足收纳需求,保证风格统一。

厨房
墙地面统一用300*600瓷砖铺贴,柜子沿用餐边柜板材。

主卧
简单北欧风家具摆设,做床头背景墙暖灰色刷漆处理。

衣帽间
独立衣帽间,仅做柜体,没有安装柜门,用窗帘代替。

次卧
风格与主卧一致,做飘窗嵌入小书柜。

儿童房
孩子多在此处学习。

卫生间
双洗手台盆,不必再担心抢占洗漱区了。

干货清单
墙地砖:东鹏 地板:鑫屋 墙漆:多乐士
经验问答
装修这套房子最大的难点是什么? 划分书房空间,最终决定借用厨房面积,相比较小卧室,业主还是更愿意牺牲厨房,只要使用不受影响,面积大小没有多计较。 如何有效控制装修预算? 在风格上没有太多的装饰性修饰,真真是满足生活所需,业主也比较在意使用功能。 最满意的设计亮点是什么? 客餐厅的半墙隔断和木质栅栏隔断。
