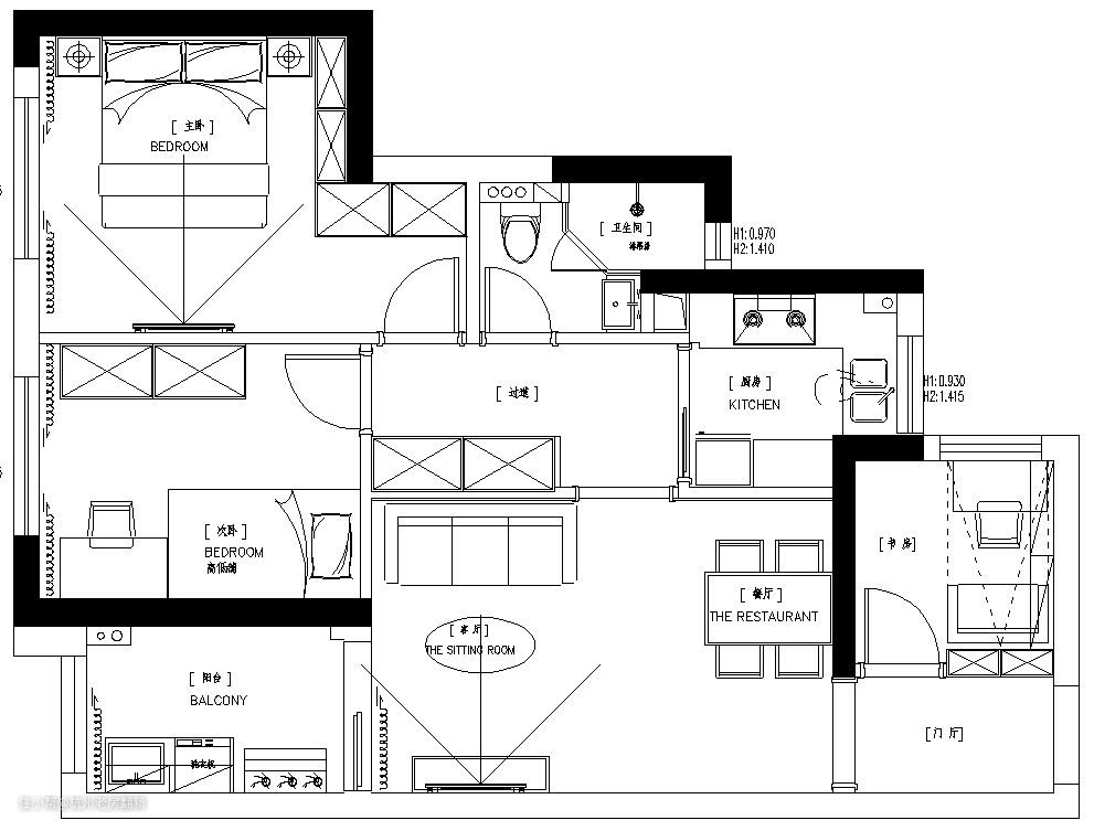
设计施工:铭品装饰 设计师:黄婷 风格:现代轻奢 面积:82㎡ ● 原本户型最大的痛点在于动线不合理,尤其是在客餐厅,房间较小,衣柜的储物空间不够。原结构厨卫比例布局不合理。 ● 实地确认了房屋结构,综合居住需求,把改造重点放在了主动线,和房间使用面积,储物空间不足的部分。整体协调统一,利用灯光加深空间明暗。 ● 主卧隔墙向次卧移动,为主卧增加更多储物空间。更改厨房门方向,改变去往卧室通道,使客餐厅更加独立,增加一整面储物空间。

【厨房】厨房的门方向做了调整,墙、地面使用灰色系瓷砖,延续客厅的地面色调,胡桃木色下柜更能压得住空间,白色上柜提亮空间,使整体空间时髦且个性也更显层次感。 【客厅】小户型空间在家具选择上,应选择一些简洁瘦巧型家具,可以让空间显得更宽阔,地面用灰色仿大理石瓷砖,黑白双色走边,让空间增添精致感,在吊顶设计上,将空调内机放在过道吊顶上,从而使客厅吊顶更显开阔大气,另外客餐厅背景墙采用了皮纹航空板统一材质、造型手法,让空间更整体。 【主卧】延续客厅轻奢风格,在软装上可以选择含有金属元素的家具,就像本案的收纳柜门也采用了金属元素的五金拉手,整体空间以灰色为主基调,增加空间高级感,为后期软装做配角,使整体软装更百搭,在变换床品的同时让一年四季更加多彩。 【次卧】小户型的儿童床,可以把床靠边放,增加睡眠安全感,扩大孩子活动空间;同时高低铺的设计也满足了人口多的问题。 【多功能房】空间机动灵活,可以满足各种需求使用布置。
82㎡的小户型,装修希望轻装饰,想要多多的收纳,不要厚重的东西,用少量的金属线条搭配暖色的色调,营造出舒适的空间。

在家具的选择上,选择一些简洁的家具,让空间看起来更宽阔,地面灰色的仿大理石,搭配黑白色的走边,让空间增添精致感。

在吊顶设计上,将空调内机放置在了过道的吊顶上,客厅吊顶开阔大气,客厅背景墙用了皮纹空板,空间统一材质,让空间更整体。

小尺寸的茶几就能满足日常的功能性

吊灯、茶几、沙发走边和墙上的装饰物都融入了金属元素,再搭配软装,可以提升空间的品质感。蓝色和黄色拼接的窗帘,意外的好看,搭配在客厅非常的清新。

电视背景墙就是简简单单的白墙设计,利用电视柜和边柜做客厅收纳,东西藏得深就会很整齐,除了装饰品,别的东西不漏在外面就会很好看。

同款现代轻奢水晶客厅灯
原本户型最大的痛点在于动线不合理,尤其是在客餐厅这一块,在使用过程中很容易造成被干扰的问题,设计师将客餐厅改成开放式布局,让动线更加流畅,同时保持空间的通透。

视线的尽头是门厅区域,转角做了书房,跨过门厅就是餐厅。

餐厅的吊灯、背景墙跟餐桌配色都延续客厅的风格,小户型空间中避免使用多种颜色,精良保持材质色彩的统一,整体空间才显得宽敞。
厨房的门做了调整,墙、地面使用灰色瓷砖,现需客厅的地面色调,胡桃木色柜子更能压得住空间,白色柜提亮空间,使整体空间时髦且个性也更显层次感。

结合我们的需求,设计师给主卧的改造重点在解决房间的使用面积跟储物空间严重不足的问题,然后设计师利用结构向次卧移动了12cm,制作了L型收纳柜,为主卧增加了多多的储物空间。

延续客厅轻奢风格,在软装上可以选择含有金属元素的家具,就像本案的收纳柜门也采用了金属元素的五金拉手;

整体空间以灰色为主基调,增加空间高级感,为后期软装做配角,使整体软装更百搭,在变换床品的同时让一年四季更加多彩。

小户型的儿童房,可以把床靠墙摆放,可以给孩子增加安全感,还扩大了孩子的活动空间,高低床可以解决人口问题。

靠墙放置了衣柜,增加收纳空间,剩下的空间给孩子打造了玩耍休闲的区域。

同款胡桃木床美式子母床上下床上下铺木床双层床

阳台是封闭式的设计,与部分客厅相连,用窗帘做的隔断,形成了两个单独的空间。

靠墙坐一排台盆柜,洗衣机,烘干机靠地面摆放,留出了活动空间给孩子使用,放上小架子就是孩子画画的地方。
卫生间瓷砖是大理石通铺的,耐脏高级;浴室还是传统的干湿分离,非常的方便。

客厅、餐厅、玄关、过道干货主材清单表

问:装修这套房子最大的难点是什么? 答:原本户型最大的痛点在于动线不合理,尤其是在客餐厅,房间较小,衣柜的储物空间不够。原结构厨卫比例布局不合理。 问:最满意的设计亮点是什么? 答:实地确认了房屋结构,综合居住需求,把改造重点放在了主动线,和房间使用面积,储物空间不足的部分。整体协调统一,利用灯光加深空间明暗。
