说在前面 屋主的小想法: 1.硬装要尽量简单但是家里得有亮点,在控制预算的前提下显得高级。不喜欢家里有过多的装饰品,和可移动的家具,在这次装修的时候就把房子的功能规划齐全 2.家里所有的储物功能都要隐藏起来,看起来要整洁统一 3.有在家办公的需求,需要一个书房 4.不希望家里有过多颜色 户型图

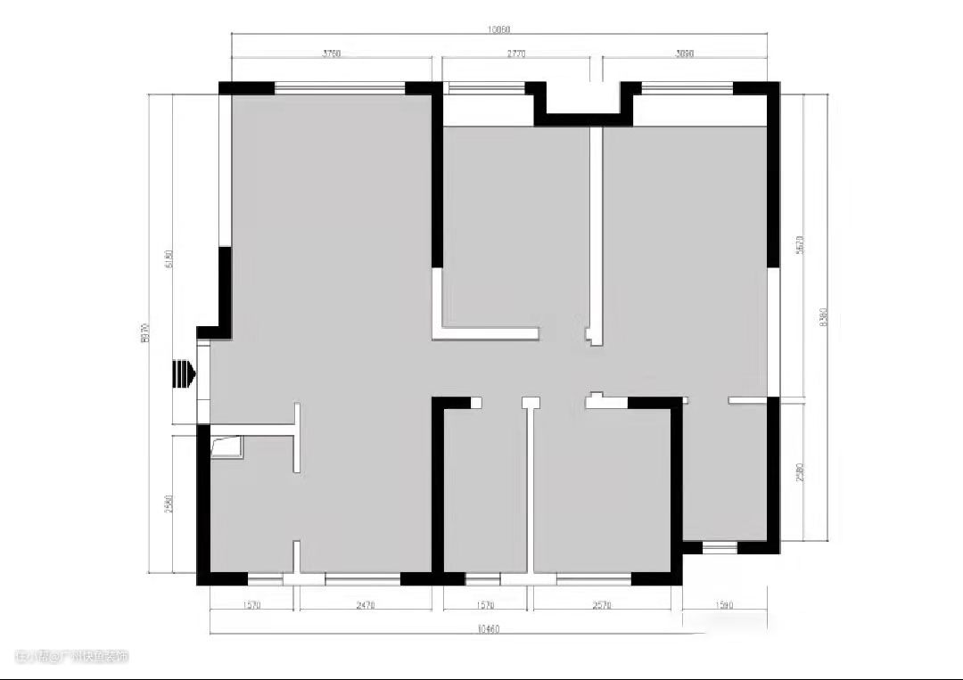
原始户型分析: 优点 1.户型方正,南北通透2.功能区划分明确 3.空间利用率较高 缺点 1.入户门对主卧门 2.厨房空间小 3.承重墙体较多,改动空间较小

改后平面户型: 1.在考虑预算的前提下,简单改动墙体。通过改变主卧门的方向解决了门对门的问题,同时利用走道空间增加了独立衣帽间功能。 2.利用餐厅空间,将洗碗机移至西橱,既增加厨房的使用面积,也增加了餐厅的储物空间。 3.效果上以黑白灰为主,简单大气,全屋通铺“人字拼”地板,让整屋更为温馨。


从原始图可以看出来原本户型是入户门对着主卧的卧室门,方案设计中我们修改了主卧的进门方向,避免了门对门不好的风水,同时过道也比之前显得更为大气敞亮。


玄关处右手边的大鞋帽柜,以白色和原木色为搭配,满足了一家人的需求。女业主想要的隐藏收纳全部包含在其中,一整面的衣帽柜里面可以收纳平常上下班的衣物、包包、帽子和100双鞋子。在下方我们也考虑了可便脱换鞋子的高度。中空的空间也方便让我们放取钥匙、包包、等小物件。连穿衣镜都隐藏在里面,既好看也不影响美观。



客厅没有用复杂的吊顶和背景墙,一切都以简单干净为前提,尽量少的用过多的装饰物。而全屋地面通铺的“人字拼”工艺的原木地板,在黑白灰的原调上更加中和,使得整个空间更有家的感觉,看起来更温馨,但也不失设计感,也成为了家中一大亮点。沙发背景墙没有做过多装饰,而是把电视背景墙作为重点,用三块大尺寸瓷砖上墙,白色美缝剂填充。既达到了整体大理石背景墙的效果同时造价也低了许多,地台采用同样的设计使得整个电视背景墙更加整体大方,后期也不需要再搭配电视柜了。


餐厅延续了整个客厅的风格,原木餐桌温馨又大气,藤编椅更是为整体注入了不一样的时尚元素,看起来又有了一种不一样的感觉。百叶帘的配搭也使得整个空间简单大气同时也不失格调。餐厅是唯一使用了吊灯的地方,黑色线条极简的灯具让餐厅的空间显得别具风格,呼应了整个家的风格。餐厅的西柜下还隐藏了我们的饮水机,既美观也实用,后期添加咖啡机等小物件也是情调满满~


厨房是整个户型中面积最小的空间,为了使整体看起来更加宽敞,我们在颜色上还是选用了浅咖的瓷砖和白色的橱柜搭配,瓷砖没有让整体一片白,衬托了橱柜的素雅与干净。在台面上我们把整个“黄金三角”的空间做最大化,超大尺寸的单槽满足了洗碗刷锅的方便,小尺寸的三眼炉灶也代替了常规的大尺寸双头灶头,更方便我们在做菜时的使用。右边还有我们大尺寸的双门冰箱,最大化的利用了我们整个厨房的空间。同时我们考虑到储物,把洗碗机从水槽引到餐厅的橱柜中,又增大了储物空间,同时餐厅也有了一定的储物功能。


卧室相对于比较单一,但放入了我们建议的皮质大双人床后空间显得饱满又高级,同色系的布艺全遮光窗帘等软式也让整个卧室变得更加温馨,拥有让人最放松的休息空间。




书房满足了男女主人同时办公的需要,在独立的空间相互学习。整体灰色系和原木的搭配显得空间高级又大气~



卫生间采用地砖上墙,整体更为统一。灰色的瓷砖也显得简单高级。在家中所有的厨卫空间的吊顶我们都采用的防水石膏板吊顶,比传统的石膏板吊顶更美观。
