户型解析
全屋共有三层,以太空银打造空间主旋律,搭配格栅、大理石丰富细节质感,调和自然绿、点缀爱马仕橙,让整体氛围在克制之内摇曳生姿。

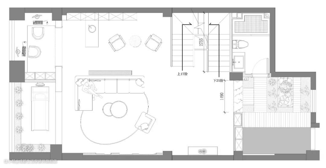
△负一平面布置

△一楼平面布置图

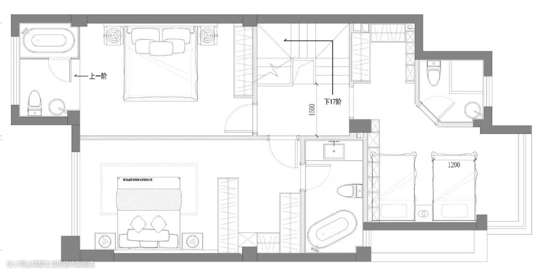
△二楼平面布置
玄关
光影融合材质打造了一个无限恬静之感的艺术化空间。全案是无主灯设计,在天顶嵌入筒灯,组合轨道灯切合整体布局,豁然呈现沉默温柔的力量感。

客厅
电视背景墙铺设木作条凸显造型格调。绿墙横贯白柜,当断不断,使得空间节奏恰如其分。





餐厅
餐厅自成一景,迎光入室,储物墙兼具美学效果,加强空间的纵深感。地面浅灰石材与天花板、吊灯上下相互呼应,呈现互融相通的共处格局。



厨房


主卧
二楼设置三间起居室,延续简洁时尚格调。主卧黄铜金属布线,为木饰面加入新意,平衡生活舒适性与艺术高级感。


次卧
次卧注入月球漫步的灵感,以白灰为基调,营造出纯净自然的空间氛围。地空深浅相伴的灰是浩瀚星辰的探索,增加空间的立体层次,简洁美观。



花园


