本次案例是一户六口之家,所以对于收纳功能需求特别的大,而且家里两个小孩读书的原因,对书架需求也很多。起初量房的时候是毛坯房所以看上去比较宽阔,但是格局并不是很“尽如人意”。


因为之前业主已经对比过好几家了,没有一个好的方案:尤其是阳台,户型位置不是理想。对于复式楼而言,楼梯的处理位置向来都是很重要的,在哪个位置,决定了二楼的空间格局。再经过多次沟通后,我们设计师得出了以下方案。


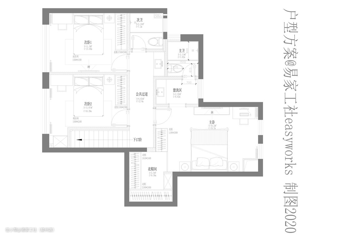
● 小区名称:东海湾文园 ● 户型面积:165㎡ ● 设计风格:现代美式 ● 房屋户型:四房两厅一厨一卫(复式楼) ● 居住人口:6人

原有阳台位置不合理,太大,且客厅位置太小,卫生间的门开在客厅侧边很不合理,一定要改位置。

将阳台改到楼梯口位置,太阳西晒时候强光刚好可以投射阳台,同时客厅更加宽阔。

原来楼梯的位置现在我们改成了阳台,也做了隔墙处理。







屋主家有两个小孩,所以要用到的书籍很多,于是设计师打造收纳书籍的沙发背景墙。平时除了可以放书籍,还可以放一些生活物品。要知道,在一个家里,杂七杂八的东西,尤其是小孩子的,特别的多。做过宝妈宝爸的一定是非常了解。


墙面上的挂画是屋主找了好久才钟意的,当然,也少不了挂画旁边的收藏品。

有舍有得,原始结构上,沙发的位置距离电视视觉本来就过于长,所以刚好做了取舍。

楼梯改在电视墙侧墙,楼梯下做储藏间,可以优化二楼的的空间布局。 因为这块楼梯改动,屋主和设计师讨论了许久,最终才确定下来的,效果也是相当不错的。不仅是格局,还有颜色上的搭配,也是做统一的。

玄关位置上并没有太多的花里胡哨,稍用点装饰柜与壁画修饰下,再加上平时收藏的饰品与家庭照片点缀,反而体现了整体空间的简洁大气。 在选择玄关柜的时候,是连着沙发的茶几、餐桌一起选定的,保持了色调的统一。

有小孩的地方,就会有天真可爱的地方。除了对电箱用装饰盒加以保护,还用公仔装饰,可见屋主一家的爱子之心。 鞋柜最左侧是有座位,可以方便更换鞋子。可实际上,目前拿来给小孩装玩具来的实际点。小孩子东西就是多。最下方是镂空的,便于放户内鞋子。中间还有一层是饰品柜,也是放置一些物件用的。

设计亮点的存在往往是有意而为之,有预谋的,这是本案例的亮点之处。入户第一视感看到玄关柜,侧面还有我们的展示柜。 楼梯改变位置后,入门会看到楼梯侧面的位置,所以我们在楼梯下面沿着墙体做了三个展示柜,再用内饰灯带衬托,让摆件显得有价值意义。
餐厅的布置是在厨房旁边,平时用餐起来也是非常便利。规划餐厅和厨房的时候,更多的是想到让厨房有更多的利用空间,所以把冰箱规划到了餐桌对面。

冰箱旁边是我们的收纳柜。像杯子,电水壶,咖啡机都可以放置这个位置。平时要是做饭有些干货,干粮不适宜放冰箱的,也可收纳到这个空间。 餐边柜的颜色是选用白色的,因为这样做可以明显的与吊顶墙面相呼应。衬托出餐厅的主导地位。

厨房的位置是比较理想的,所以我们会在使用上加以利用。设计U型的操作台面,燃气表隐藏在水槽左边的吊柜里面。家人多,做饭频繁,所以更注重功能上的使用。

PS:我们灶台旁边是屋主有设定了一个吊篮,平时做饭时用的佐料、刀具都是放置这个位置上。
原来楼层挑高的部分是把楼板倒起来,这样做才能有效的把两个房间利用起来。相对于来说,二楼的规划会比一楼来的更加有隐蔽性,毕竟是寝室,休息的地方。

在过道与卫生间的衔接时候,设计师把卫生间一分为二,做成了干湿分离。恰到好处的是,以后随着两个孩子长大,上卫生间可以避免一些隐私,洗漱也方便了不少。

整体看上去,主卧的格局还是以收纳空间为主,主卫的面积使用也是非常大的。而把这个和主卫算在一起,是这一整层约二分之一的面积。可见是相当的大气。

原来的隔间采光并不好,于是把这个空间归纳给了主卧,做成衣帽间。
格局上两个小孩房都是一样,因为考虑到要学习,所以只放置了一个床头柜,而对于书桌,是直接做到顶面的,不仅仅是可以放置书本,还可以收纳小孩子一些玩具和收藏品。


男孩房在取色上面,选用的是中性化的蓝色,比较开朗,活跃的颜色。


女孩房的颜色是用粉色,相对于女性化些,体现出的是女孩的乖巧可爱的性格。
灯具搭配

注意看的话,就连我们的灯饰也是反射出两个小孩房的不同搭配,这也恰好说明了设计上来区分两个房间的设计手法。

主卧床头上方顶面有一根横梁,设计师把吊顶优化后,做了个假梁,设计出了“十”字造型吊顶。这样避免了头悬梁的压抑感。
干货清单: 装修公司:易家工社(设计+施工+监理) 全屋定制:生态板工厂 软装家具:本地家具市场 瓷砖:马可波罗 木地板:兔宝宝 卫浴:法恩莎 橱柜:金牌橱柜 衣柜:志邦定制 油漆: 立邦 防水:咖乐防水 水管:伟星新材
经验问答 问:对于不同房间的设计时该怎么做区别? 有些空间,不一定是得从硬装上面抓取空间的特点,也可以通过软装的搭配,细节的调整,体现出不一样的样式。像本案例的两个小孩房就很明显的表现。
