谈起新居,年轻夫妻挥洒着满满期许与想法,却在一年奔波里,意识到被风格所框架的画面,其实并非理想家貌。幸好在一切无法收手以前,让屋主遇见了盛星装饰,也让两人意识到,所谓设计比起创造美的事物,更是懂得取舍比例、平衡美感的学问。 不失温度的一片灰意,来自设计师堆叠深浅色调的手法,有如置身在浓墨和淡墨之间,探进藏在水墨画里最深层的心境写照,简约轮廓中,水泥、木皮、铁件和玻璃的介入,使温柔景色藏蕴一抹细节,就像写入有节奏诗词,建构了维度内的纯粹与层次,直捣生活的心向往之。

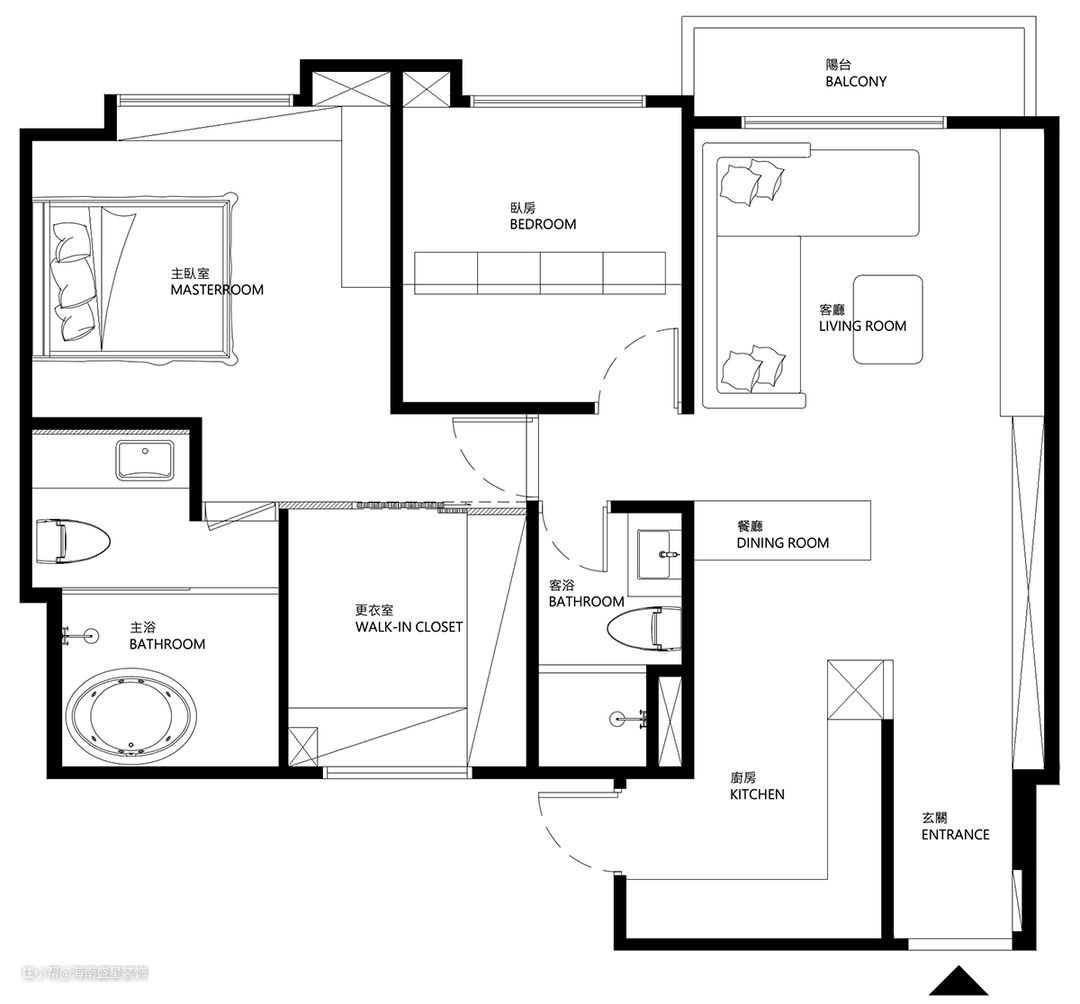
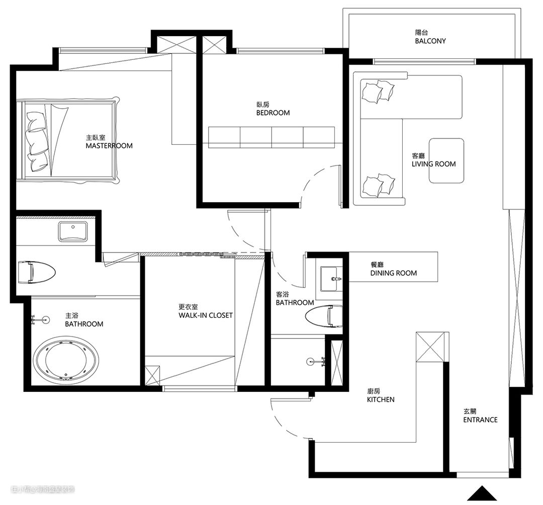
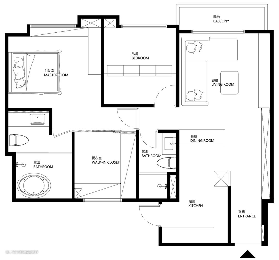
1、喜欢灰色系,重视居家气氛 2、以工业风为基底,可以混搭不同元素 3、一房当作更衣室+书房,另一间做为客房
一进门,玄关延续原始狭长动线,以地坪材质区划着落尘区,天花亦降下部分高度,示意着内外过渡。设计师更善用厨房电器柜,与对面的鞋柜推齐一道分界,延长并推进一段返家仪式,并在踏入室内之际,交由文化石墙景,以幽微光线揭开家的序幕。

悬空吊柜跳脱鞋柜平整饰面,以格栅的垂直语汇消弭梁体和收纳柜的水平视觉,同步转移成排柜体份量,就像套入隐性转场,利用行走间的动态感受,为客厅祭出流畅开场。

灰棕色电视墙与格栅形成鲜明对比,衬出光滑色泽,也凸显了凹凸肌理,设计藉由视觉张力推进领域关系,木质圆角平台接着推展而出,为一片灰白留下一笔温润笔触,交织在投射灯下温暖黄光,映照出和谐墙景。

旋身一望,屋主梦美以求的焦糖色皮革沙发展现了主场气势,这归功于视觉上的协调感。客厅改变以往电视墙为主角的定律,特意选用仿清水模涂料,使沙发背墙以乱纹镘刀表现不羁的粗犷感,强占了厅区焦点。




因为两人习惯早上喝杯咖啡醒脑,为了方便操作咖啡机,希望餐桌能融合咖啡厅意象,于是轻巧的弧形吧台油然成形,卸下先前阻却视野的铁制吊架,反是透过圆弧线性呼应,连接客餐区互动性。

推开房门,扑面而来的深灰绿墙景延展了纵深,设计师活用畸零墙体拉开前景,进而推向后方床头墙,并降低灰色亮度,为的是营造合适睡眠的静谧感;环顾房内,纯白与深灰交织在2:1的配比间,彼此辉映着均衡的轻重关系,木纹也别于公区占比,只为提升房内温馨感受。

因为多梁柱、冷气排水位置不理想等结构现况,对此设计师运用局部降板化解,也一并藏入柔和的间接光,更特别注入一圈黑线勾勒,从细微之处释放压迫感。

窗前卧榻重新梳理了走道畸零,也替季节寝具找到容身之处,灰棕木纹接连填补柱洞,筑起女主人专属化妆柜;更展现精准对位工法,使桌脚结合柜体结构,形塑利落简约之气,就连化妆镜也承接了工业风格,镜子上的轨道设计便是考察镜对床的风水疑虑,方便镜子收于无形。

响应屋主对更衣室的想法,本案藉由外推卧房房门,将原本三房配置并为两房,并将一房归纳给更衣室使用,再以玻璃拉门打通两区的暧昧关系,拓展了卧房机能性。

结合男主人打电动的私人空间与储放衣物需求,内部以开放式吊杆简化柜体压迫感受,左低右高的挂杆分别是量身为夫妻身高差所订制,让女主人无需因高度所困,至于挂放深度则是以层板延伸,不仅扩增了大型物件的归所,也顺便遮掩屋梁量体。
连绵木纹砖包裹着卫浴墙面,温暖了黑白灰所塑的沐浴时光,就连浴柜也改用深黑木纹,而六角砖由白至灰黑的渐层,巧妙划分干湿区分界,也带动了色调的深浅变化。圆润弧形浴缸同样扮演平衡要角,柔化金属利落姿态,也于镜后佐上间接照明,并降下一盏微光吊灯,营造酒店式卫浴体验。

「多功能」是此房的设计重点,为了赋予多元应用情境,架高地坪取代床架、床头漆色替代床头板,使空间得以跳脱卧室设定,在拥有基本收纳条件下,保有各种弹性机能,展望未来不可预测的变化。

其实早在动工装修前,屋主就已标明好沙发色系和款式,因此在其他软装与色彩搭配上,即以这款焦糖色皮革沙发为题,发展出皮革、圆弧元素,接续衍伸了水磨石、木料及金属等个性语汇。

灰色的沉静与包容性,是屋主为之着迷的原因,于是善用色彩浓淡分别、质材肌理细节,依循天花梁体、客厅墙至卧房主墙,由浅灰至墨灰缓缓加深用色,创造单一色系的丰富层次,也定调了场域氛围与空间深度。 整体灯光也顺应着配色扮演了关键角色。全屋照明以4000k自然光和3000k黄光交互堆叠,烘托柔和气氛之余,更调和了空间色深浅关系,至于书房和餐厅则挑选可调节灯色的智慧型灯具,方便屋主依照使用需求,权衡使用情境。

Q:认为本案理想生活空间必要包含哪些重点? 理想生活是一场五感体验,因此空间必须满足各种感官需求,唤起居者对家的想像与感受,因此视觉上一定要先引起屋主共鸣与喜爱,再者,行走坐卧间是否有舒适尺度、每项物件有没有归属,都是不可或缺的检视项目,更是盛星装饰的共同目标。 Q:本案设计主轴与重点? 化繁为简,是贯穿本案设计的核心,还要在有限预算内,重新协调屋内既有风格素材。首先,我们抓住单一空间亮点,拿捏恰好比例后,再铺陈和谐的视觉背景,本案即透过单一色深浅变化性,搭配屋主喜爱的工业风家具与软装,像是萃取、提炼、再发酵的过程,在不停取舍与层层铺述中,描绘简而不单的日常风景。
