本次案例来自一个三口之家,一对上班族夫妻加上一个刚上小学的小男孩。 女主人很喜欢看日剧,加上夫妻二人都是无印良品的忠实粉丝,所以在确定家装风格的过程十分的顺利,我们很快就定下了日式原木风,但是房屋的空间是有限的,屋主的一些要求按理说无法直接在这个房子里达成,但是我们就是来为屋主服务,满足屋主的实际需求的,所以在装修的过程中,我们仔细与屋主进行沟通,确保家装的安排符合屋主的要求与习惯。 此次做到了空间的最大化利用,如果有这类需求的屋主们可以参考此次案例。 ▶以原木风为主线; ▶墙面可用浅灰,家具以木色为主; ▶细节上要有质感,要能体现家的质感。 ▶储物空间也是很关键,如通顶衣柜、储藏柜、防水物品柜、多功能收纳柜等都要尽可能的涉及到。 ▶空间色彩需要与软硬装相互协调,建议采取7:3配比手法来搭。

▲原始结构图 ◈位于朝阳金隅汇景苑,原始户型图是一个两居室,两厅一卫,二手房改造项目; ◈南北通透,阳光条件良好; ◈内部空间比例协调; ◈室内南北主梁东西辅梁; ◈暖气温度充足, ◈客餐厅一体空间。

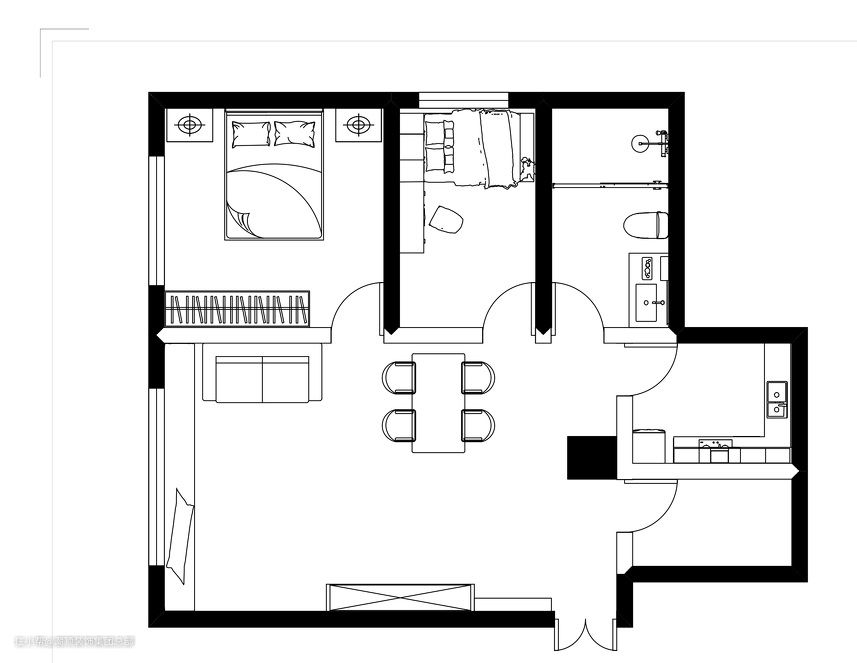
▲平面布置图 ◈没有特别大的改变,主要是将区域进行具体化的安置; ◈各个区域的调整都有考虑到屋主的生活习惯,能够完美契合屋主的实际需求; ◈上方便是整体给出的改造图; ◈色彩运用的7:3配比手法,以木色+中性灰为主方向。

◈进门的玄关处,迎面树立的是一面洞洞板样式的装饰墙。搭配半面黑板墙,满足屋主为孩子打造的可以DIY的娱乐区域的要求。 ◈旁边可以随意自由的调整,增添木板可供屋主摆放一些喜爱的装饰品

◈玄关的左侧延伸出了一个木质的展台,上面放置了一些有特色的装饰品,让房屋的风格看起来更加温馨。

◈柜体以白色和木色为主,放置的一个杯具的收纳装饰台,为日后水吧的搭建打下基础。 ◈旁边开放式的展示柜可供屋主放置一些装饰品。

◈简约的家居让面积不大的客厅在视觉上看起来十分的开阔。 ◈衔接电视柜的白色柜橱在无形之间间隔了客厅与餐厅的空间。◈电视柜上宽阔的台面为屋主提供了装饰品摆放的空间,打造温馨的氛围。靠窗的那侧打造了一个带有坐垫的飘台。 ◈飘台下采用榻榻米的样式,留有收纳的空间,做到了空间的有效利用。

◈电视柜上宽阔的台面为屋主提供了装饰品摆放的空间,打造温馨的氛围。靠窗的那侧打造了一个带有坐垫的飘台。 ◈飘台下采用榻榻米的样式,留有收纳的空间,做到了空间的有效利用。

◈正面墙的侧边电视柜+玄关柜一体。

◈柜体的背景墙是水泥灰,让温馨的风格中带了些冷色调中的高级与简练。

◈客厅一旁有大扇窗户提供整个厅内的光照,选择搭配百叶窗,既满足了屋主随时调节光线引进的需要,也比以往的布帘好打理,减少灰尘的积累,实用性更强。

◈玄关的左侧延伸出了一个木质的展台。

◈客厅是典型的日式无印风。灰色简约沙发不占空间,衔接白色橱柜的悬空电视柜让客厅的视野更加的开阔。 ◈房梁上悬挂的空调相比台式机而言,减少了空间的占用。

◈电视柜的配色与旁边的白色橱柜相呼应,采用白灰色调,台面选择原木板。 ◈中间的储物柜选择黑白灰经典配色的玻璃窗,与上侧悬挂的电视相照应。

◈沙发是灰色系的搭配,视觉上更加简单干练。 ◈电视墙也选择灰色系的墙面,整个色彩的使用上,相互呼应,达成一致的和谐性。

◈餐厅是距离进门前最近的位置,选择原木风的桌椅给人归家时带来视觉上的温馨与舒适。 ◈灰色系的椅垫又在原木风的基础上增添一抹亮色与个性。

◈餐厅左侧靠墙处的橱柜是兼具储物和展示功能的。

◈餐桌后方一处定制的收纳柜,提供放置电饭煲和微波炉等物品的空间。 ◈在用餐时使用得更加方便。

◈餐桌两侧是不同类型的椅子。右侧的单人椅比较占位置,所以放置得少量。 ◈而左侧长椅则能在有限的空间承载更多的人,实用性较强。

◈长椅的放置,在使用的时候更加的随性,增添人的使用舒适感。

◈餐桌靠墙摆放,墙上还安置了木质收纳架,可以放置一些绿植或者艺术品,为白墙添加一抹亮色,增加屋主用餐的兴致。

◈厨房以白色为装饰主调,整个给人呈现出明亮的效果,采用无主灯的设计,使白色厨房的明亮感加倍。 ◈在屋主做饭的时候,明亮的空间能提供给屋主更加愉悦的心情。 ◈在厨用电器的放置上,与屋主多次沟通,了解他们实际的用厨习惯,最后落定。 ◈经典的“L”型橱柜,在上方也定制了一排橱柜,为屋主提供了充足的收纳以及摆放用品的空间。

◈整个卧室扑面而来的无印风。 ◈木制家具与灰色窗帘的配色,让温馨的风格中带着些许的简约与干练。 ◈安装的灰色遥控窗帘,使用起来方便快捷,样式上也十分的美观大方。

◈主卧的房门采用木质的形式,进门能看到装饰画的摆放,视觉上美观大方。

◈选择木质板作为床后的背景墙,与木质双人床十分搭配。 ◈一侧放置同木质风的床头柜,满足日常的物品摆放和收纳的需要。 ◈另一侧则是根据实际空间来量身打造的梳妆台,为女主人提供梳妆护肤的空间,做到空间的最大化利用。

◈床的对面便是大面的橱柜的打造。 ◈顶天立地式橱柜提供了充足的衣物收纳空间,顶部放置换季衣物和棉被,下侧也符合屋主收纳日常衣物的需求。

◈床尾处的橱柜使空间得到有效的利用,为小主人的物品收纳提供空间,也为他日后成长过程中不断添置的物品留有存放的余地。 ◈儿童床的大小也是一个正常双人床的大小,方便不断长大的他的使用的同时,在目前阶段也方便招待亲戚留夜。

◈次卧是一个儿童房,满满的原木风,充满着温馨与童趣,可滑动式的椅子下面还有柜式收纳功能,挪动方便,实用性强。

◈在衣柜与床尾柜之间用一个同色系定制的书桌进行衔接,对有限的空间进行最大程度的利用。 选择无主灯的设计,将灯光均匀分布。保证儿童在书桌前的光线充足,避免避光影响视力。简单统一的白色与木质元素的搭配让整个空间都显得温馨又大方。

◈卫生间以灰白色调为主,风格简约,采用玻璃门作为淋浴区的隔断门,里处的瓷砖墙选用独特样式的灰色调碎点方块样式,在视觉上让人眼前一亮,打破风格过于统一时可能带来的沉闷,也显出屋主的个性。 ◈马桶的上方以打造了两个收纳柜,增加浴室内的物品存放空间。 ◈深灰色的地砖与浅灰色的墙面进行色彩层次的递进。

