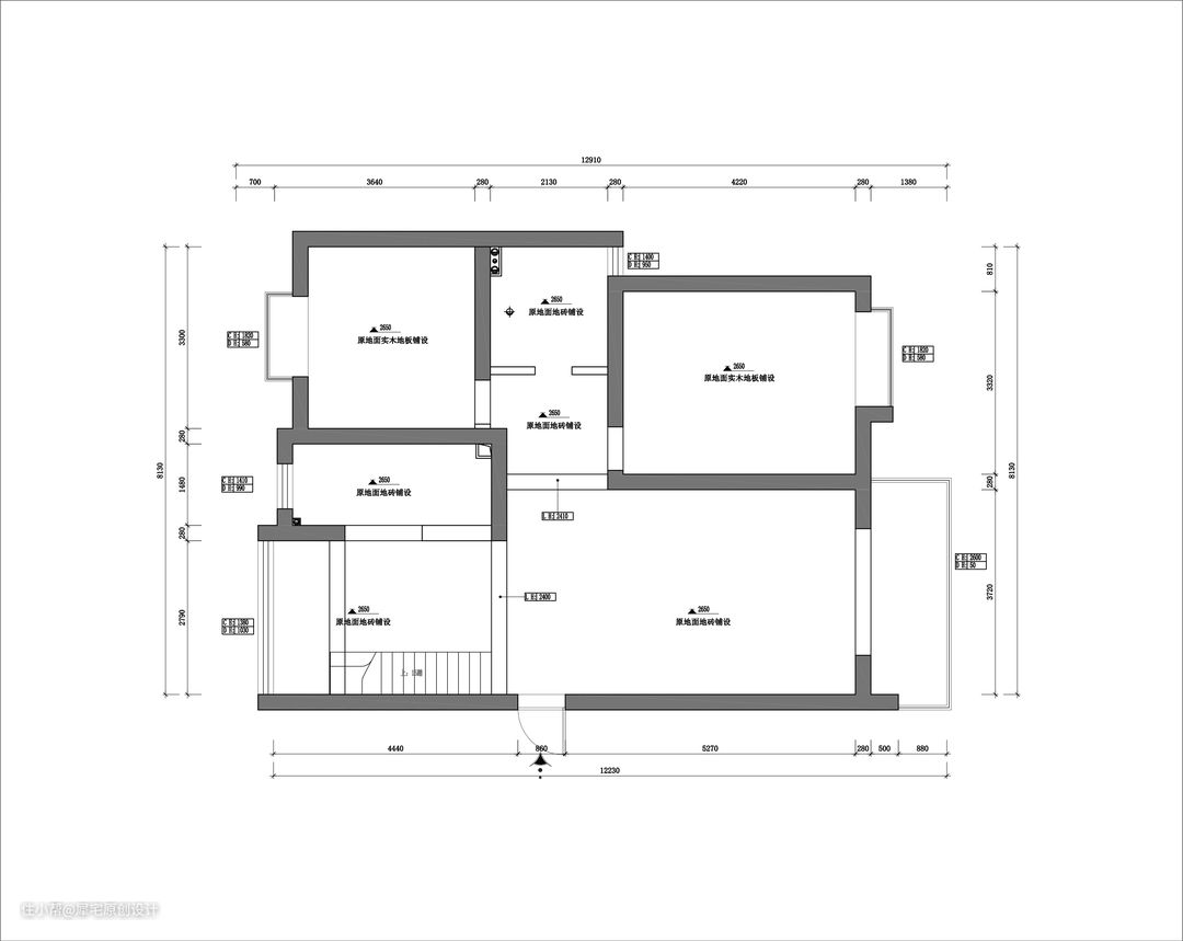
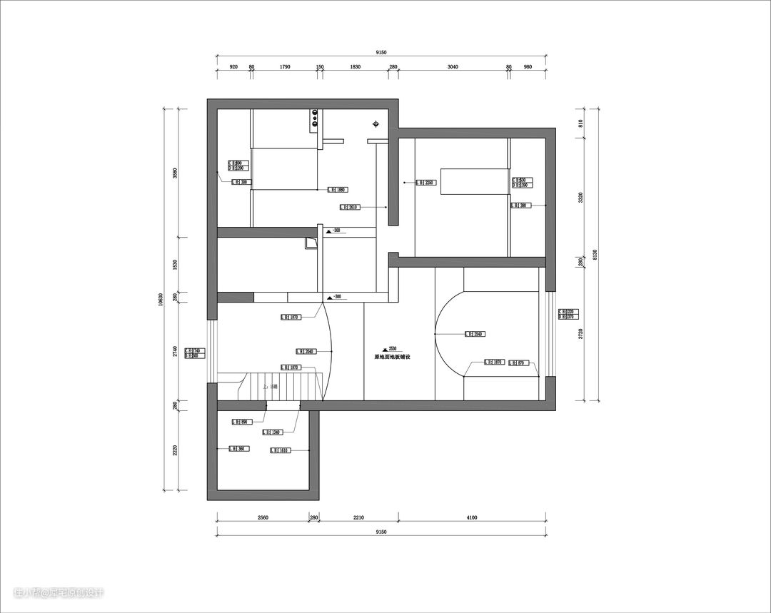
这是一套顶楼的老房,屋主于2020年初购入,作为婚房。主要诉求有两点,其一在于夫妇二人都是法律人,工作性质决定常年高度紧张,希望家中可以让人迅速沉浸放松。其二在于希望即便日后有小孩,老人住进来后,也可以有夫妇二人的独立空间。 将斜顶阁楼重新规划,变成具备卧室、书房、衣帽间、卫生间的主卧套间,与一楼相对独立。将封闭厨房变成餐厨一体的开放式厨房,增加水吧区域。在解决功能需求基础上,打造纯净温柔的至白空间,探寻内在世界的平静自在是这个项目的设计初衷。

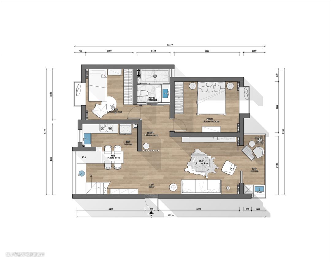
一楼南北通透,采光充足,但厨房稍显局促,我们将隔墙打开,改造成开放式中西厨,提升空间感和互动性。另有一不足之处在于入户门正对卫生间,原方案在过道中间设置了软隔断来规避这一点,但屋主考虑后最终取消了隔断,作为健身区来使用。


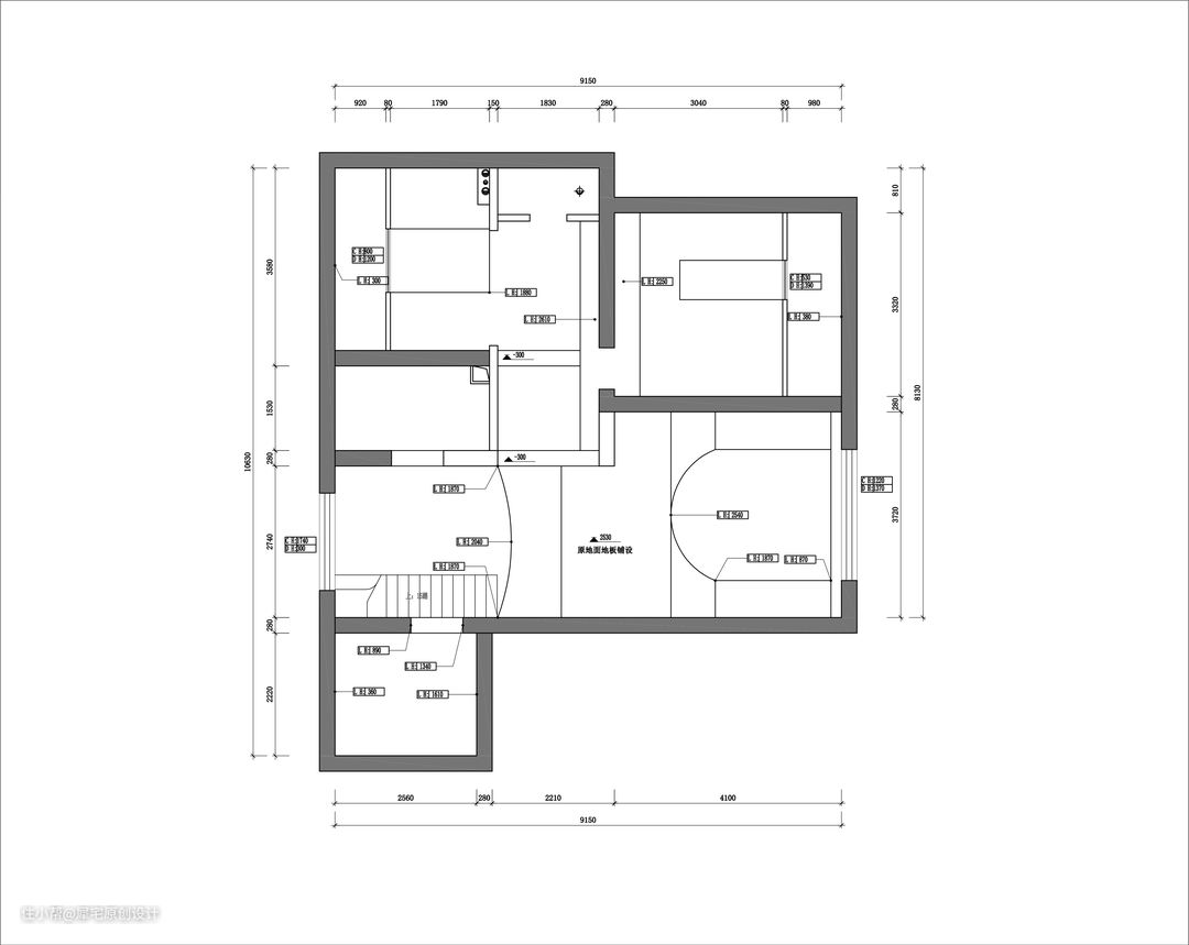
斜顶阁楼结合不同区域的层高和采光重新规划。楼梯旁采光较好且较高的区域变成开放式书房/休闲区,卧室旁的空间被改造成单独的衣帽间,卫生间由原本狭小的卫生间和储物间打通后重新整合,增加了浴缸,拥有了采光通风,并做了干湿分离。将整个阁楼变成具备卧室、书房、衣帽间、卫生间的主卧套间,提升使用体验。


入户门开在横厅当中,没有独立门厅。利用楼梯下的空间,放了成品鞋柜,另一侧安装了简易挂衣架,满足日常换鞋和外套收纳需求。

楼梯采用镂空踏步形式,不会遮挡入户采光。

鲜明的色彩和图案总是能赋予空间生机,但纯净的留白却能在沉默中传递出安抚人心的力量。在这处近乎无色的居所中,投射出的正是屋主卸除精心雕琢的华丽、沉重,转而从内在寻找柔和、放松的生活哲学。

一味的纯白难免显得冷淡,造型柔软的懒人椅和毛绒质地的地毯提升了空间温度。梦幻帘连接室内外,过滤出一片温柔的光影,不疾不徐洒进客厅。


改造之后,餐区的空间感显著提升,同时有效强调了餐厨空间的互动属性。

和过道间的隔墙直接涂刷清水混凝土,增加自然气息,不动声色的丰富了空间设计元素。

封闭的厨房空间打开,形成餐厨一体的开放空间,不同场域的光线流通中带动了整体的空间感和社交属性。

沿窗下定制一整面橱柜,串联起餐厨区域,扩充了储物容量。当中的一小段承重墙无法完全拆除,依势加宽下柜形成中岛,成为女主人如今最喜欢的水吧区域。




为了能够有相对独立的空间,主卧被设置在二楼,一楼的卧室主要是留给未来老人来帮忙带小孩短期住几年,目前是空置状态,因此只放了基本的家具。简单的基础配色经得起时间的考验,永不过时。

客卫的配色同样以白色为主,水磨石上星星点点的彩色点缀,增加趣味性。

男主人需要有单独的办公区用以阅读、研究、写作,楼梯上来的一块开放空间刚好临窗,采光、层高都适宜,被改造成书房。

坐感舒适的米白色布艺沙发提供临时休憩场所,墙上的挂毯伪装成书房的装饰背景,其实另有玄机,将不常用的储物间隐匿其后。

书房与主卧之间别具匠心以书柜和移门相隔开,在开合之间完成空间的互动与独立。

关上门之后,屋主夫妇拥有各自独立的空间的同时仍旧能感受到彼此的陪伴。

阁楼独特的结构特性让很多业主望而却步,但设计师的创造力却让其反而铸就成别具一格的美感。

伪装成柜门的长虹玻璃移门入夜后将所有纷乱隔绝在外,床头的小壁灯负责守护一片静谧安宁。

主卫由原本狭小的卫生间和储物间打通后重新整合,增加了浴缸,拥有了采光通风,并做了干湿分离。
