业主夫妻二人很喜欢这套小二层周围的环境,再加上房子离他们上班的地方也挺近,经过商量,开启了旧房变婚房的装修之旅。根据业主自己的喜好选择装修风格,打造一个专属于小两口的“甜蜜窝”。 原来的常住五口人变成常住两口人,空间布局方便也要适时调整。120平的房子,业主两个人,空间绰绰有余。因为不喜欢太长的活动动线,一些主要的功能区都设在了一楼。另外多出的空间正好可以扩入客厅,打造一个社交式的大空间。

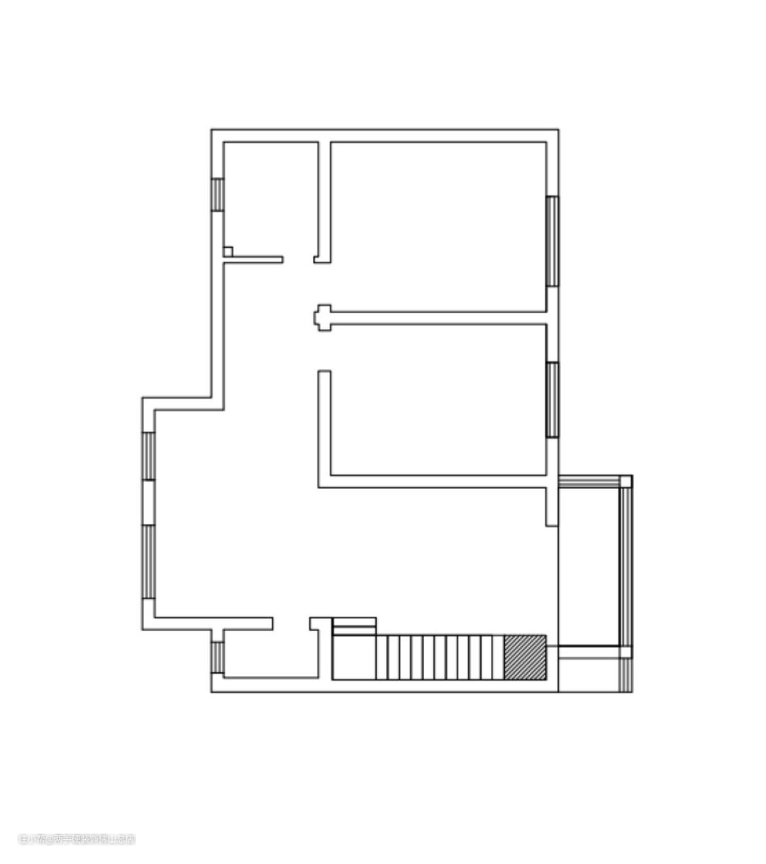
一楼原始户型图 因为之前业主家人口比较多,所以老房子很大部分的空间都做了卧室,而客厅、餐厅、厨房这些公共空间就相对小一点,现在我们两人居住,空间的功能也要随着居住人口数量的变化做出一定的改变。商量之后,我们决定放弃一间卧室,扩入客厅,增加公区面积,也能提高我们的生活质量。

一楼原始户型图 1.厨房原来太小了,现在将厨房与旁边的次卫打通,打造开放式餐厨空间,宽敞通透,方便我大展身手; 2.原来的客厅真的只有一点点,将客厅与后面的次卧打通,打造开放式书房,以沙发为隔断,既独立又连通,更显空间气质; 3.为了进一步扩充客厅面积,将客厅与相邻的阳台打通,将阳台改为小地台,作为休闲区,

二楼原始户型图 因为现在常住人口少,二层的空间利用率其实不算高,改造基本围绕原有结构展开。这样一来能缩短工时,二来上面的客房主要是给业主的父母准备的,熟悉的布局也让他们对这里更有亲切感。

二楼平面布置图 二层的功能定位就是客卧和储物区,利用走廊空间打造收纳柜,增添更多储物空间。

玄关区改造前后对比 原来的空间布局中,玄关区特别小,只有一组简单的柜子用来收纳进门后的一些包包小物。改造后通过墙体拆改,进门后一点儿也不显逼仄,

客厅改造前后对比 原来的客厅面积不大,再加上楼梯间和阳台各自为政,客厅休闲的休闲属性还有很大的延展空间。改造以后老旧的楼梯改成了悬浮样式,看着特别轻盈灵动。

餐厨区改造前后对比 餐厅和厨房原来的面积也不大,业主平时下厨还挺多的,所以餐厨区整体利用率还挺高,改造后餐厨空间变成了开放式的布局,还设计了中岛,视觉上和使用感都不错。

入户门选的是高级灰色,跟玄关区的换鞋凳和储物柜有一个颜色上的呼应。玄关柜下面巧妙的设计了这种挑空的样式,平时一些常穿的鞋子放到里面进门一点都不显乱。上面的封闭柜柜门用的是按压器,没有把手的设计。

一楼留下一间主卧和预备的宝宝房外,还有一间卧室。索性把这间卧室的和客厅打通,布置成开放式的书房,一是拓展了客厅的面积,二也是造就一个互动空间,平时男业主在书房里工作,男业主在客厅,可以随时交流。

电视背景墙这边主要就是把原来三角形上方的厚重墙面变成留空的白色金属线条,减轻了空间的厚重感。这个通透的隔墙搭配上悬浮式的楼梯,空间的现代感和精致性一下增加了不少。

客厅相邻的阳台原本是用玻璃门隔开的,为了增加空间感,把门给拆掉,下面桌上地台,简单的放个懒人坐墩,既增加了空间的透光度,也为夫妻两人找到了一片休闲活动区。以后有小宝宝了,他也可以在这里玩耍。

客厅的这个主沙发是近些年非常流行的体块状沙发,牌子好像是写意空间的。这个座包做了加宽处理,下班回到家可以在这里葛优躺。平时在外面就够拘着了,回到家就是这么舒服这么来。

阳台除了是一个休闲区外,还是一个储物空间,借用墙体的深度差打造与墙面平齐的收纳柜,平时客厅中的一些杂物我基本上上都放在这里,也减轻了整理家务的负担。

阳台上的这个手办是业主朋友送的新婚礼物,造型是米老鼠,色调上也比较鲜艳,正好给本来素简的空间注入一抹朝气。

如果放上沙发后空白的面积比较小,所以茶几就选了小尺寸样式的。这样一来置物区就缩小了很多。倚沙发打造的这个定制的抽屉柜正好解决了这个问题。上面搭了一盏极简吊灯,闲时在这边看看书也不会背光。

客厅一侧保留了部分墙体,一是起到支撑作用,另一方面也有视觉遮挡的效果。和墙面靠着还留了一个玻璃的展示柜。

每一阶踏步都嵌入岛了墙中,非常牢固,安全性完全不用担心,另一侧用上白色金属线条,从客厅看楼梯,有一种朦胧的感觉。

卧室改成书房后,布置上还是以简单为主,靠墙的一大排高柜有藏有露,可以放上平时喜欢看的书籍杂志,封闭柜是整个公共活动区的收纳主力,靠窗子设计了一个大书桌,看书累了的时候,抬眼往外看看,也是一种很不错的休闲方式。

我们在顶部做了中央空调,书房这边的出风口做了加长处理,既增大了出风量,看着也特别整齐,跟顶部的线条搭配的毫无违和感。

书桌和一侧的柜子是一体式现场定做的,做了加长加宽处理,桌子一点也不显拥挤。书房小窗户没有选那种常规的布帘,用百叶帘调节光线,书房的情景模式更加多样。

餐厅这边是做了餐岛一体的设计,岛台和餐桌材质和色调上有所不同,视觉上挺有层次感。餐

餐厅地面铺贴地砖,与客厅走廊的木地板之间采用极细的压边条拼接,视觉上更为美观。墙上悬挂简约的指针钟表,既实用又精致大气。

这块儿空间原来分出了三个区域,一个卫生间、一间厨房、一间餐厅,考虑之后,跟业主决定舍弃卫生间,然后将三个区域合并,打造出一个大的烹饪用餐区域。厨房做成U型布置,做饭的动线也足够顺畅,使用感非常不错。

安装上轨道玻璃移门,避免油烟味散入客厅,对喜欢开放式厨房的人来说,简直就是救星。轨道放到上面,没有一般轨道门的累赘,还不影响空间的采光。

进门后一眼就可以看到直通卫生间的走廊,卫生间选择隐形门,避免了进门之后的尴尬。书房和走廊保留的局部隔墙也起到了一个视觉缓冲的作用,不至于让空间没有一点儿神秘感,也划分处理区域的界线。


卫生间的门和墙面的护墙板色调一致,这样隐形效果会更好,另外一侧还设计了一小部分玻璃隔断,增加空间采光,不同材质的碰撞也让家中多了一些趣味性。

主卧打了一排高柜,放业主平时的衣物。空间出风口和隐藏筒灯都非常简洁,也是对极简风格的呼应。床具选了高级灰,跟整体色调成呼应。

次卧背景墙选择了业主喜欢的明亮姜黄色,因为是为未来宝宝准备的,所以空间整体上偏向活泼~,一侧的墙上也是做了一排柜子,这样每个空间都有收纳区,家里平时非常整洁,感觉有点儿去家务化设计那味儿了。

卫生间各区域分开布置,台盆下面设计储物功能,还特意设计的离地几公分,这样放到里面的东西也不会受潮,柜子的寿命也能长一些。

洗手池的台面是大理石材质的,上面有一点点自然花纹,虽然是浅色,但是平时打理起来也挺简单的。
