Y姐姐是一位很干练的小姐姐,自己经营了一个服装店,平时上班比较忙,对于装修,希望整体风格简单,大方,一定要温馨温馨,这是在设计前期沟通的最多的一个词。 这套案例业主选择的是全案设计,从前期的设计、施工、主材等等,到后期的软装搭配都是我们一起配合到。 房子位于广安环宇世纪城,这是我们装修这个小区的第五套房子了,房子的整体户型比较好,赠送空间比较大,客户要求如下 1,考虑到居家人员,业主要求4个房间 2,需要鞋帽区大一些 3,需要厨房超大空间 4,两个儿童房,坚决不要榻榻米 5,独立生活阳台 6,化妆区要大

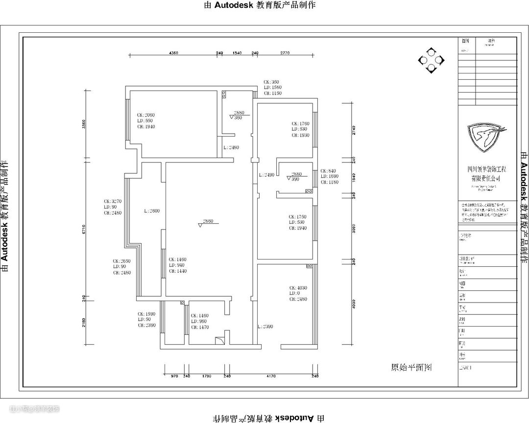
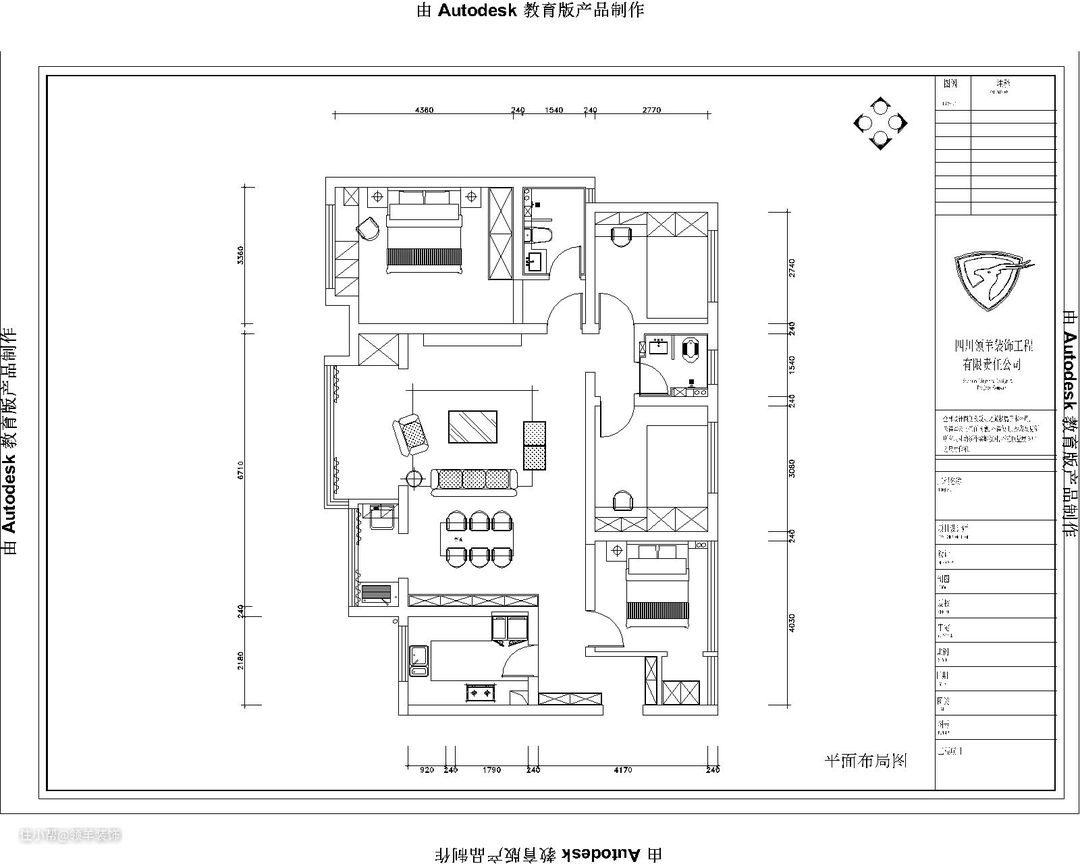
原始结构图↑ 1,动线优化 把原来客厅大阳台一分为二,一边作为客厅休闲阳台使用,一边做为独立的生活阳台,休闲阳台区凹槽位置,整好做一个超大储物柜,生活阳台区,洗衣机做一边,还要一边考虑到父母要求做的是一个洗衣台 2,空间改造 进门位置增加了单独的鞋帽区,入户增加玄关位置,使整个空间私密性更高,考虑到房间要求,原进门位置增加了一个房间功能,鞋柜的背后做成了卧室的衣帽间,视觉感觉扩大房间的使用性。 3,增加收纳 打掉原来飘窗位置,增加主卧空间,增大化妆区和收纳功能,原两个次卧空间比较小 考虑的床头衣柜加书桌,储物空间增大,当然了床肯定不是榻榻米,你能知道我怎么做的吗? 4,细节处理 原厨房卫生间空间都不大,细节上做了一些调整,等哈我会详细说哈


装修前

装修后

装修前

装修后

横厅户型很多都是电视墙旁边都是主卧门,我们家也不列外,我们并没有复杂的处理,就整体太空漫步的乳胶漆

这个小沙发我和业主都很喜欢,看了好久哦

桌上的小摆件业主小姐姐自己挑选的,是不是很乖

墙上的装修品装饰画业主都是按我们效果图上来的 一模一样



餐桌背后做的是一个超大的酒柜装修柜,储物功能超大




厨房大砖通铺 高低台设计

顶面用的是铝扣板方便检修,灯源我们直接采用筒灯,既美观也实用

主卧飘窗台设计成小姐姐的化妆区



床考虑的是排骨架,既美观也实用,不用担心受潮的问题

两个卧室都是这样设计的 ,两个妹妹除了颜色有点区别,其它都一样




卫生间包水管位置考虑壁龛,更实用,更美观

主卫淋浴区选择长虹玻璃隔断,没有做推拉门的感觉,有没有更仙啊

由于卫生间比较小,浴室柜考虑延长式,增大卫生间空间
