本案业主为唐山的一位建筑公司老总,因为儿子一家在天津,所以此房为业主来看望儿孙时小住的居所。 考虑到业主两口子回津时会叫儿子一家过来团聚,所以设计师认为餐厅的功能比卧室更为重要,于是我们大胆的设计出独立的餐厅,并巧妙运用圆桌,完美承载了三代人的用餐需求,同时寓意上也象征着团团圆圆,而在风格上业主则也尊重了儿子的部分意见,用现代简约风格来打造这个亲情之家。

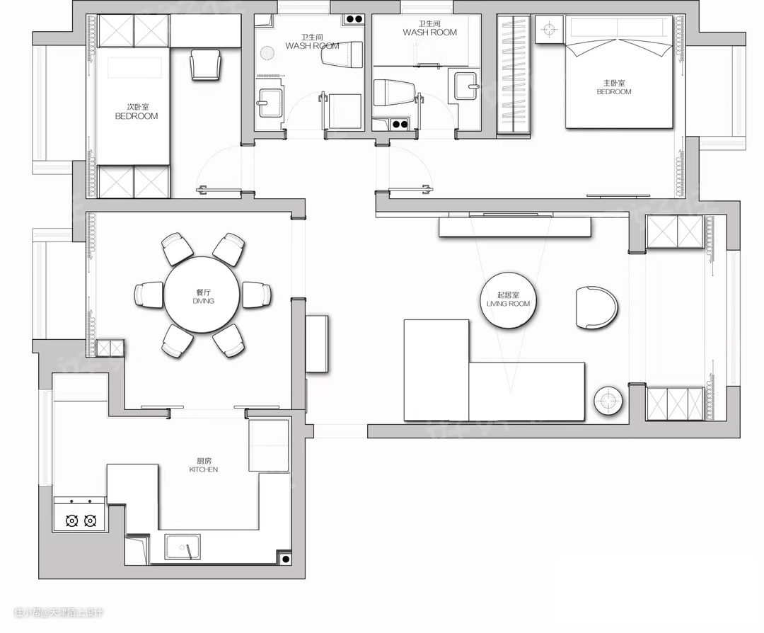
本案痛点 1. 餐厅太小 2. 客厅没有实现真正的南北通透 3. 卫生间没有容纳洗衣机的位置 4. 次卧较小,成品家具摆放困难

平面方案 1. 打通厨房与一个房间的墙体,使原来的房间改造成独立餐厅 2. 扩宽了餐厅的门口,让客餐厅之间实现真正的南北通透 3. 调整客卫门口位置,轻松容纳洗衣机 4. 次卧通过榻榻米轻松实现一米五大床,双排衣柜以及独立书桌

客厅考虑到了业主之后的情况,当儿子一家过来团聚时,可躺可坐的L型沙发,更具实用性;悬空电视柜配上一体成型的电视墙,美观且简约,延伸意境的装饰画,让这个客厅被无限放大

木作与壁布相结合的沙发背景墙完美融入整体风格基调,线性灯,磁吸轨道灯的巧妙运用给这个无主灯客厅增添一抹色彩与明亮

调整后的原次卧改造成了餐厅,相比原本的布局,扩大后的入口使得空间更为明亮大气,从客厅角度望向餐厅,南北通透

实木格栅和连纹岩板相结合的电视墙将电视完美嵌于其中,格调拉满的装饰灯,整体空间的艺术气息在两者的交织下完美体现出来

悬空的电视柜更是保持了客厅整体的简约度,而且不再存在卫生死角,方便了业主的日常打扫

原来的房间改造而来的独立餐厅,相比原来拥挤在客厅的一角,现在的用餐空间宽敞明亮,足以满足一家三代的用餐需求,有时给空间做减法,就是给生活做加法

餐厅精心选置的进口岩板圆形餐桌,寓意着团团圆圆

打通后的墙体则是安置了长虹玻璃推拉门,既可以隔绝厨房的油烟又能保证餐厅与厨房的通透性

5米多的地柜加岛台,不只是橱柜,整屋的其他定制家具都是以爱格经典的米灰色羊绒暖色调为主导,隐藏的橱柜拉手,蒸烤一体的集成灶,让这个厨房既美观又实用


从餐厅角度观察厨房,推拉门打开时完全可以当成开放式厨房,满足客户对于厨房的所有幻想


小巧的主卧虽然空间不大,但是处处却被安排的刚刚好,床头柜紧邻衣柜处做了特殊定制,上方的衣柜不受床头柜影响,可完全打开,完美利用空间的每一个角落并且满足了日常储物需求

近距离看一下这个定制细节,适合于任何紧凑型主卧

次卧我们则是灵活运用榻榻米轻松实现一米五大床,双排衣柜,独立书桌,让这个小方卧室实现比主卧还强的功能以及储物性,孙子留在这里过夜也完全没问题

整屋进口爱格板定制,美观的同时健康环保也不能丢
