谁也想不到,110㎡的房子对一个二胎家庭来说会如此局促。 如何把仅有的2个卧室合理分配给自己和孩子,以及收纳家人的物品?真的是一大难题。 于是,本案改造的屋主~~一对刚生完二胎的夫妻找到了我们,希望通过改造可以满足自己及孩子们的生活需求。

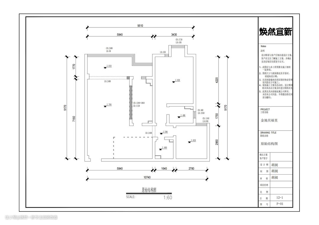
这套房子为110㎡的套二,不能满足房主一家四口的需求,入户是餐厅、客厅,客厅与阳台用玻璃门分隔开,厨房虽有10.9㎡,但宽度只有2米,做了橱柜及操作台后过道狭窄,委托人希望: 1、把2房改成3房,并保证充足的空间; 2、传统厨房改成开放式厨房; 3、客厅要大,给孩子提供玩耍区域; 4、收纳空间要足。

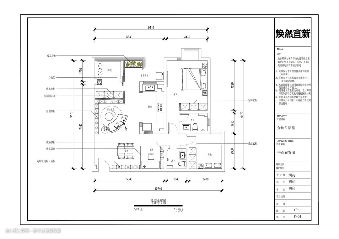
经过和屋主沟通,我们设计师拆除了阳台墙体与玻璃门,新砌一个7.7平的卧室,并拆掉了厨房的非承重墙,封闭原始厨房门,改成了开放式厨房,玄关和餐厅都定制了收纳柜,满足了一家人的收纳需求。

入户后的右手侧定制了玄关柜,上下都有柜门,中间空出一部分,相当于壁龛。 可封闭的柜门能将杂乱的物品封存起来,让空间更整洁,中间的壁龛可以存放日常高频使用的物品,以及各种各样的装饰品,空间配上简约的吊顶,光线均匀而明亮。

客厅摒弃了传统设计,定制了L形书柜和展示柜,分隔出一个多功能休闲区,满足收纳的同时还给孩子们创造了一个玩耍区域。


一门到顶,黑白配色,整体设计简约又高级。 无主灯设计,储物柜里还设计了灯带,打开柜门自动亮起,关闭柜门自动熄灭,存取物品都很方便,颜值与收纳两不误!

原户型中,厨房是封闭式设计,空间不通透,改造后设计成开放式,弧形拱门的设计,一眼望过去,厨房干净清爽,还带着一丝法式优雅,在这样的环境里搞定家人的一日三餐,也是一种别样的幸福吧。

厨房内部重新规划操作动线,更加方便,白色的橱柜显得空间干净整洁,井井有序!

保留了原来的生活阳台,把洗衣机从卫生间搬到了阳台这边儿,这边采光超好,晾晒简直不要太好啦~

主卧的改造还是以舒适为主,为了迎合孩子们的喜好,墙面通刷雾霾蓝,其余没有做复杂的造型,休息的地方当然要越简单越好啦~

转角定制了一面通顶衣柜,不藏污纳垢,储物能力MAX!


客厅靠阳台这边隔出了一个卧室,整面落地窗设计,光线十分充足!

屋主的大儿子现在4岁,在他的心里有个大大的飞行梦想,于是把房间装成孩子喜欢的样子,三个房间均采用雾霾蓝色调的乳胶漆搭配白色的吊顶,简单大气!

一盏飞机造型的吊灯,让孩子们住进童话里,圆了飞行梦。

卫生间把之前的蹲便改成了马桶,更方便一家四口的生活习惯。

墙地面都采用了跳色小方砖,有孩子的世界当然要多姿多彩呀~

改造后的房间,无论是面积还是实用性都满足了房主的需求,家里的两个宝宝也都拥有了自己独立的梦想中的房间,一家人每天能生活在随处都能发掘快乐的房子里,才是真的幸福生活呀!
