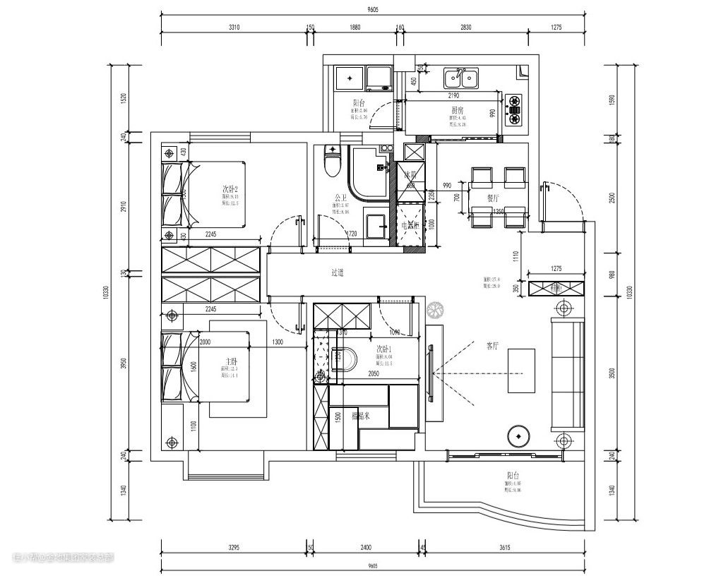
【屋主信息】 屋主为王先生一家三口,房屋的实际使用面积73.15㎡,想要做成3室2厅1卫。因为王氏夫妇都是从事餐饮行业的,所以对于装修的环保性和健康性要求十分高,其他的装修刚需主要是将空间最大化利用、要有较强的收纳能力等。

1.在与设计师的积极沟通下,决定在餐厅和卧室两个收纳需求较高、较宽敞的空间增加更多的收纳柜。 2. 整屋的材料均使用幼儿级的环保主辅材,由第三方检测机构进行检测并且出示检测报告 3.主阳台与客厅衔接,采光性与通透度极佳,同时可打造休闲空间;次阳台连通厨房,契合业主做餐饮行业的职业特点,可以在此晾衣做饭。 4.玄关口以横向视野为主,用鞋柜与室内空间隔断,限制视角空间,保证主人的私密性。 5.. 狭长形过道打通主次卧与公卫间,提升生活动线的效率。

主阳台设置推拉窗,玻色蓝的窗面透出ins风滤镜的外景。室内背景墙被奶白色覆盖,我们选用了PPG大师乳胶漆,具有抗菌抗苯抗甲醛效果。靠墙摆放的L式沙发形成转角布局,坐落上主次分明,还可以自行组合沙发,灵活摆设。在沙发上铺上精美繁华的罩帘,用两个同色系抱枕加以点缀,融入了欧式的高级格调,涌现出精致华贵感。

沙发前乳白色的柜式岩板茶几,呼应了前方的电视柜,增强了家具色彩的协调感,同时对茶几进行两面挖空的处理,左侧摆放一个小收纳盒,划分出开放与密闭两种不同的收纳空间。视角转向天花板的水晶吊灯,光线照耀整个客厅,将屋内蒙上了一层落日黄,像是喝了杯莫吉托,微醺的恰到好处。

餐桌椅与餐边柜同样沿用了客厅家具的乳白色调,延续了欧式氛围感,旁侧的餐边柜是由实木颗粒板定制而成,环保性能好,采用嵌入式冰箱的设计,为厨房内部节省了空间,方便业主大范围活动,还可以减少卫生死角,方便清扫。

顶柜从冰箱上方呈现一字型排列,方便收纳归类不常用的厨具;中部设立错落的开放式收纳格,烹饪用具或者食材箱都有了自己的“归宿”,在右侧增设了一层密闭橱窗式收纳柜,茶具用品一目了然;最后底柜与抽屉组合,根据需求对食材用具等物品进行分门别类。

金属圆形环环相扣,形成半球式吊灯,精美立体。

L形的厨房连通了次阳台与室内不同区域的路线。哑光质感的砖白色吊柜与底柜体现满满的高级感,局部上以炭黑色把手点缀,融入了美式复古元素,墙面则铺设线性纹路的麻灰色瓷砖,突显出简洁利落的氛围。业主的烹饪区在拐角处设立,厨灶上方设立家用静音的侧吸式油烟机,既减少音噪污染,又能够快速吸走厨房油渍,循环净化厨房空气,营造一个健康环保的厨房环境。

台面选用的是人造石英石的材质,前后两侧也做了同颜色的挡水条。地柜做了电器柜,嵌入蒸烤箱(底柜嵌入式蒸烤箱),节余厨房空间的同时,还能在厨房台面上准备食材原料,随时一展身手进行烘焙制作。洗碗池的水龙头与挂壁式厨具以不锈钢材质为主,通体的银属质感协调了整体的装饰效果。

视角望向观景飘窗,从中分隔出一对可开式扇窗,形成对称协调的布局。环顾室内,温柔整洁的杏咖色墙面,在靠墙处设计从底到顶的U形多功能收纳柜,通过一排列顶柜连结梳妆台与书柜,收纳空间倍增。


主床刚好嵌入留余空间中,作为界限划分出两种活动区域。 女主人在左侧区域活动频繁,晨起化妆较为便利,一方面梳妆台上方的透明收纳柜可切割出四格化妆用品,另一方面梳妆台靠立在墙角,在避光的条件能够有效预防化妆品变质;右侧可视为男主人活动区,书柜里摆放经常阅读的书籍,触手可及,睡前丰富一下精神世界也是个不错的选择。


视角环绕到右侧是沟通后定制的满格式衣柜,线性+方形框架让分隔出整洁有序的空间,(收纳人士多喜欢这类衣柜),隐示出在衣服分类上有不同的分层方式。

充分利用上方空间,顶柜可以摆放不常穿的衣物(顶柜位置过高,选择摆放不常穿的衣物),季节变换时再进行一次性衣物更替;中层短柜处于视觉中心,可将常穿的短袖、T恤等衣物放入其中;两侧的竖式衣柜拉长空间,西装、长款大衣等贵重衣物可在内部立式挂置,预防被其他衣物压皱;袜子、小型衣物可以平面放置在下层抽屉收纳层中,整体上垂直归类层次分明,是爱收纳人士的宝藏天地~

次卧的布局对应主卧设计,契合整体欧式主题氛围。设立平面式飘窗,将室外光照射进次屋内,通透明亮,而单开口扇形窗设计又与主卧形成强烈对比,让主次界限更加分明。

靠近床头的墙面安插好顶灯开关与用电插头,素木风双层置物柜位邻其下,客人借住家中时可在上面摆放手机、抽纸等物品。左侧则通篇以竖立式拉门衣柜为主,为客人预留出充足的衣物空间。

卫生间的面积比较小,做了三角的沐浴间设计,有效的利用空间做成干湿分离的设计,卫生间四面反射出浅色瓷的亮面感,哑光质感则在地面则呈现,两者从三维角度形成色调统一而视觉不单一的效果。三角淋浴间有效地节省了空间,半帘玻璃式包裹住淋浴区,与马桶洗手台分隔,在底部加高防水槛阻隔内部水分外泄。右侧米色玉石感洗漱台融入欧式旧贵族家具元素,精致繁华的花纹雕刻让此处有了精美家具展示厅的效果。

天花板中央设置嵌入式冷光源方形顶灯,拓宽视野明亮度,右侧加入速效排湿抽气扇,与次阳台形成空气对流,能够迅速干燥浴室环境。在如厕区,我们最终选用美标宜乐e-Lite智能马桶,功能上离座即刻自冲,同时采用SIAA抗菌技术,减少马桶内部空间细菌的滋生。

儿童房中奶蓝色墙面让整个空间显得可爱温馨,三面靠墙的榻榻米作为儿童床引入捉迷藏氛围感,榻榻米选择黄麻内芯为基材,天然防菌抗螨,软硬适度,呵护孩子的脊椎成长。整体仅开设单层开扇窗口,保证孩子的安全。

在天花板上海盗船吊灯融入动漫海贼王的元素,童趣十足。其中组合冷蓝两种光源,夜晚散发微微的蓝光能够帮助孩子更好地进入梦乡。
【设计采访环节】 问:装修花了多长时间? 答:69天。 问:业主收纳有什么特别的需求吗? 答:王先生一家平时的物件和衣服比较多,但是想让客厅显得大气一点,我们主要是将收纳的设计放置在个人空间如卧室、卫生间等,这样既能保证客厅的通透,也能满足王先生一家收纳的需求。 问:最满意的设计亮点是什么? 答:大面积顶天立地柜充盈全屋收纳机能,运用白色令空间更显宽敞,欧式元素的点缀让整屋典雅又不失时尚!王先生的福宅真是羡煞旁人啦~
