设计理念: 在本案中以白色为主色调,干净的白色底色,突显的是业主的简洁干练的性格;加入一些优雅的法式线条,在优雅的法式硬装中,加入现代元素,体现的是对于新生活的美好向往。 案例信息: 项目地址 | Address:香湖印小区 设计施工 | Co :铭品装饰 风格 | Style:法式极简风格 项目面积 | Area:136㎡

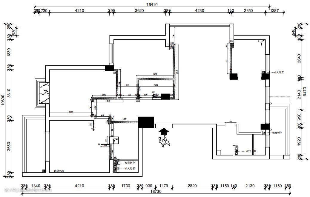
▲原始户型图 设计过程: 屋主蒋女士是一位70后的四季青服装店店主,从与设计师的沟通中可以窥见蒋女士对色彩非常敏感,这也是为什么她的服装总是备受新老顾客喜爱的原因。所以在确认房屋装修风格再到落地实施,蒋女士与设计师都保持着高度的审美沟通,蒋女士的诉求也很简单,要的就是一个“大气优雅”。

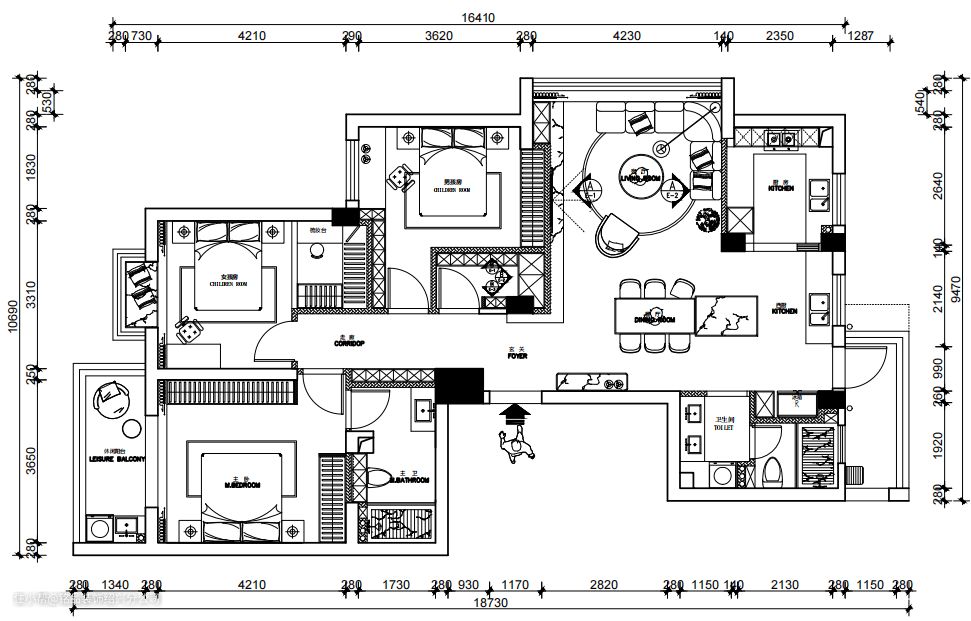
▲装修设计图 设计改造: ①设计师将入户玄关背景连通客厅电视背景墙,扩大背景的视觉冲击感。 ②在本案中大量运用圆弧设计,整体风格统一,突出法式的浪漫、温柔的同时,尽量避免法式的浮夸、繁奢。 ③在过道处增加拱形门洞,契合法式元素。 ④公区、私区分明,左侧为卧室、卫生间等私区;右侧为客厅、餐厅、厨房、公卫等私区。更加具有隐私性。
玄关是入户的起始之地,水墨纹路大理石背景镶嵌在木饰面,把天然坚硬的石材与质感柔和的木质搭配,营造高级而浪漫的视觉冲击感。 同时半开放的玄关起到了一个阻隔视线的作用,有效地保证了室内空间的隐私性。

入户便是充斥眼眶的素雅的白色,干净的底色如同主人家干练简洁的性格一般。客厅用灰色大理石地砖铺设地面,倒映着家居投映在其上的影子,显得极具时尚质感。

为了整体风格的和谐统一,设计师特意选择了大理石材质的圆弧茶几。没有采用传统的“L”形或一字型沙发,而是圆弧的布艺材质沙发,用来契合原型茶几的形状。圆弧形更具有浪漫、温柔的质感。

电视大理石背景墙一侧,设置了黑色金属框架的玻璃酒柜,用于主人家对于美酒的爱好与收藏,偶尔小憩时取出清酌一杯。

玻璃酒柜下方做了仿真火焰雾化壁炉,没有法式欧洲古堡中壁炉的那般繁华雕饰和阔气,却也有一丝浪漫、温馨的真意在其中。

客厅中的色彩柔和统一,仿佛湖面一般平静和谐。 但是设计师运用来自大自然的石材和人工布艺沙发、地毯,形成质感与材质上的强烈冲突,让人不经意间发现新的惊喜。白色的地毯衬托着布艺圆弧沙发,让这方空间显得极其温馨。

本案是经典的无主灯设计,运用极简钓鱼灯落地灯,来作为辅助光源,同时其圆弧的柔韧造型,又能为客厅的装饰增添一份美感。

一桌一木,倒映四季人生。大理石材质的茶几上斑驳的云纹,变幻着生活真谛。

开放式的客餐厅设计,让空间显得更加包容。餐桌延续客厅的风格,选择了天然岩板材质,耐磨、耐高温且美观大方。细腿的餐椅蕴有轻奢气息,在这方极简法式的空间里显得轻盈而舒适。

家人一起坐在餐桌上享用晚餐,早早吃饱的孩童在客厅玩闹,一侧的电视自顾自地播放着新闻,一切都是最美好的烟火模样。

在餐桌一侧做了岛台设计,让餐桌有所依靠,不显得单调零散。岛台顶面采用和餐桌一样的岩板材质,两边则是皮革包裹。岛台既起到了隐形的区域划分的作用,也方便了餐厨用品的摆放和收纳,一举两得;侧后方的洗手台既起到了一个空间利用的作用,餐具的临时放置也更加方便。

厨房外侧也做了洗手台,如果有客人来时可以不必挤进厨房清洗瓜果;同时餐前洗手也更加方便。厨房选用黑色金属框架的透明玻璃移门,不会造成空间的分割,视觉延伸感更强。

厨房以黑灰色为主色调,耐看的高级色带来沉静深邃的品质感,现代化的家电彰显科技的魅力,省去了大量的时间,便捷了我们快节奏的生活。U字型的动线布局,大大减少了烹饪时空间不足的烦恼,保证了空间的开阔性。
白与棕的大胆搭配,是很多人想要尝试却望而却步的风格,温柔的白色柔和了难以驾驭的高贵棕,高贵却不失温暖,也透露出主人家是一位品位与温柔并存的人。

主卧背景墙运用条纹木饰面和皮革硬包两种形式,不同的质感带来一种冲突而和谐的美,同时在床两侧做了发光灯带,非常时尚新颖。 床左侧是通顶的白色漆面一体式衣帽柜,黑色的竖杠把手如同装饰的纹理,整体和谐美观。

床头柜上的后现代错位球形灯具作为夜间的辅助光,极大地提升了生活的品质。

主卧连通阳台,用黑框透明玻璃移门分隔,极大地保证了卧室的采光。天气晴朗时,打开阳台门,让自然的气息肆意地进入卧室。

本案的生活阳台是封阳台,不必担心风吹雨淋。在阳台上安置一张北欧摇椅和放腿凳,在阳光微风轻抚下,惬意地翻着书。

米白色的空间设计不同于主卧,次卧空间的整体风格偏暖,飘窗上的毛毯,梳妆台的法兰绒大座椅,生活里的一切急躁都在这里得到安慰。

阳光投射到飘窗上,室内开始明亮起来,木饰面的背景墙开始泛着柔和的光。次卧如同十三四岁的少女,无忧无虑。



卫生间做了镜柜和镜下灯,极具科技感和现代感。同时把镜子和收纳的功能合为一体,非常使用。洗手台做了墙排的设计,底部可以轻松打扫,减少家务工作量。

墙壁和地面以灰色瓷砖铺贴,显得清冷而高雅。浴缸区地面抬高3CM,和卫生间地面形成层次感。壁挂式坐便器上方做了壁龛和吊柜,可以用于卫生用品的收纳和摆放。


