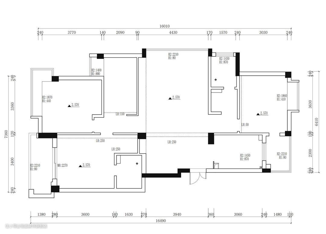
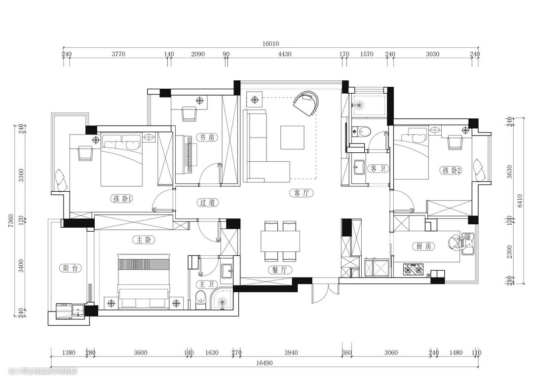
本案为127平方的四居室户型,风格为现代轻奢型,客厅区域,整体装修在硬装部分化繁从简,为了给业主一处舒适的空间,在灯光和软装方面做了精细的搭配。餐厅设置在客厅旁,这种两厅共处一室风格既节省空间又具备多样功能性。 整个居室的风格以浅灰色为主,再加上墙面和顶面的点射光源作为烘托,使得身处这片空间既可充满温馨感,同时在色彩的衬托又不失高级感。 项目地址 | Project address:都市枫林 设计风格 | Style:现代轻奢 设计施工 | Co :铭品装饰 面积 | Size:127㎡ 空间配置 | Space:四室两厅


//设计亮点// ①整个居室的风格以浅灰色为主,再加上墙面和顶面的点射光源作为烘托,使得身处这片空间既可充满温馨感,同时在色彩的衬托又不失高级感。 ②客厅灰色系地砖加铺大张渐变色地毯,大面积落地窗带来充足的自然光线,空间舒适惬意,灰色软包与木饰面的结合,给人温润舒适的居家感觉 ③餐厅侧边做到顶柜体,选择柜门包裹柜体,不漏出封板,同时适当加入玻璃元素加上灯带和灰玻的角度折射,凸显氛围,不凌乱。 ④餐厅另一侧靠近玄关,通体做到顶储物+鞋柜,最靠近门的一侧中间镂空,随手放置包包,钥匙等小物件非常方便,底部设计悬空,方便换鞋放鞋,里面加入灯带,氛围感十足。 ⑤主卧整体以灰白色为空间色调,与硬包和木饰面作为床头背景墙,颜色简洁大方不杂乱,除了中间环形主灯,局部设计一些无主灯灯筒,也是显得更加简约明亮而大方。
整个居室的风格以浅灰色为主,再加上墙面和顶面的点射光源作为烘托,使得身处这片空间既可充满温馨感,同时在色彩的衬托又不失高级感。

客厅灰色系地砖加铺大张渐变色地毯,大面积落地窗带来充足的自然光线,空间舒适惬意,灰色软包与木饰面的结合,给人温润舒适的居家感觉

客厅区域,整体装修在硬装部分化繁从简,为了给业主一处舒适的空间,在灯光和软装方面做了精细的搭配。

电视背景墙是我们客厅收纳区最强大的地方,如果不利用起来,太浪费了!电视柜做开放式格既可以放置艺术小摆件,或书籍起到装饰的作用,遥控器等小物件放置电视旁拿取也更方便。

黄铜质感的灯架与桌椅脚,凸显生活品味,雅致又时尚

餐厅侧边做到顶柜体,选择柜门包裹柜体,不漏出封板,同时适当加入玻璃元素加上灯带和灰玻的角度折射,凸显氛围,不凌乱。

餐厅的吊灯是非常具有艺术感的,淡金色呈现的雅致闪耀,给人非同一般的品质体验,好似行星带环绕的造型,在夜晚更迷幻瑰丽。

餐厅另一侧靠近玄关,通体做到顶储物+鞋柜,最靠近门的一侧中间镂空,随手放置包包,钥匙等小物件非常方便,底部设计悬空,方便换鞋放鞋,里面加入灯带,氛围感十足。

客餐厅之间没有做隔断,隔断但传统而且也不太适合小户型,太拥挤了,现在这样视觉望过去就很通透,视觉上看上去显大一点。

岩板餐桌搭配皮革餐椅,能够更好的呈现出一个现代风格的就餐空间。
厨房橱柜整体都安装把手,因为业主说,以前家里没有把手的橱柜,吊柜每次打开都有点费劲,这次新家装修想要方便一点的。

厨房整体是现代风格,台面是灰色石英岩,吊柜和地柜颜色统一,家电又都是黑色的,个人感觉更加整体一点。

俗话说:金厨银卫,总归厨房是生活的重心,整洁方便才是设计与布置的出发点,嵌入式的电器,与橱柜平面统一,做好清洁与收纳,生活一定会越来越美好。

冰箱在厨房外面,嵌入过道收纳,不占用空间,并在顶部定制了道储物柜,可用来存放不常用的厨房用品。
主卧整体以灰白色为空间色调,与硬包和木饰面作为床头背景墙,颜色简洁大方不杂乱,除了中间环形主灯,局部设计一些无主灯灯筒,也是显得更加简约明亮而大方。

床位部分设计嵌入式收纳空间,既不影响整体空间大小,也能增加卧室收纳功能。

床侧定制到顶衣柜,最大程度的利用空间进行收纳,也可以防止顶部积灰不易清洁。

飘窗、收纳柜与桌子的组合,更显温度,摆上书籍后整个书籍显得五颜六色的视觉,跳跃的视觉显得活泼而有趣。


次卧只留给长辈或者客人居住的,所以在色彩上会比较素雅,以柔和的咖色为主调,软硬装上都保持了和谐的调性。

深蓝色的窗帘是整个次卧比较亮眼的颜色了,它既可以减光、遮光,以适应人对光线不同强度的需求。

床头背景墙利用木饰面板拼接技术,嵌入少许金属元素,简约轻奢的摩登之感呼之欲出~

床尾做了通顶衣柜,进门处也增加一组衣柜,将卧室储物空间达到最大化。

屋主夫妻比较喜欢女孩,也计划在未来生一个孩子,所以提前布置了儿童房,整个房间以粉色为主,对儿童房的设计更偏向柔软童真。

扶梯床的设计也让空间层次更显丰富有趣,装点多彩可爱的玩偶、织物,令儿童世界更温馨。

飘窗铺上粉色毯子,孩子在上面坐在上面也不显冰凉,而且也防止孩子在靠近飘窗玩耍起到很好的保护。

星星造型的吊顶设计,童趣感十足。

主卧卫生间虽然小,但采光非常好,干湿分离的设计,恰到好处的利用空间格局。

镜柜与镜边柜的设计,很好的储存洗漱用品,保持台面的整洁,同时也便于打扫。

淋浴房玻璃上的斑马贴画为室内带来了几分趣味性。

弧形淋浴房很好的节约了空间面积,玻璃门+黑框材质营造出极简舒适的卫浴空间
