访问APP
客厅
餐厅
主卧
厨房
卫生间
入户玄关
方案解析
走廊
设计团队

西线阳光 | 90㎡ | 岁月静好

成都英锐齐设计
关注
户型
二居
风格
法式风
面积
90㎡
位置
成都市
方式
半包
预算
20万
方案解析

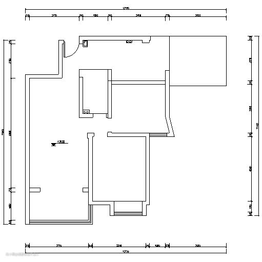
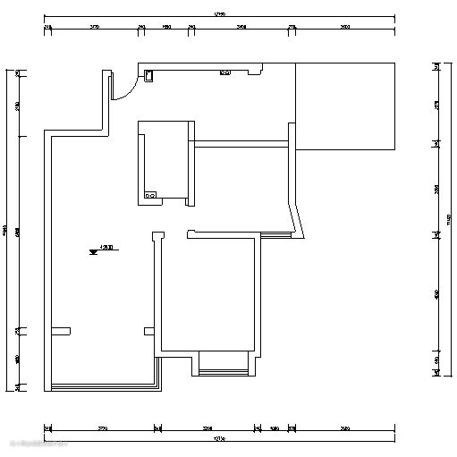
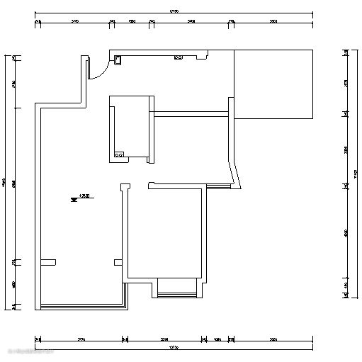
原始户型图

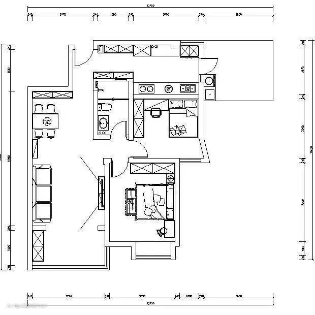
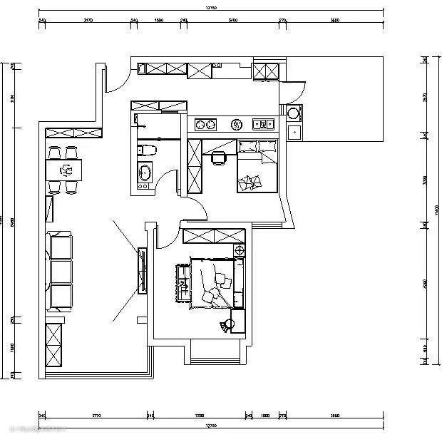
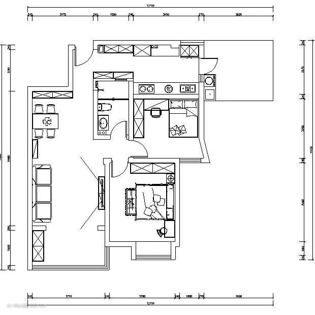
平面布置图

入户玄关

厨房

厨房和门厅联动,形成一个开放式厨房 整体厨房采用肤感膜加细线条以及金色有质感的拉手

餐厅

餐厅区域做了一个传统的餐边柜 潘朵拉可变的餐桌

客厅

客厅背景是石膏线条+墙布 电视墙是石膏线条+角花

走廊

让法式风情注入一丝现代气息,创造丰富的视觉体验

主卧

棕色墙面有了石膏线的加入增添了不少立体度 搭配低饱和度的颜色打造出不一样的视觉体验

卧室采用木纹砖进行铺贴 集于衣帽间,梳妆台,睡眠区为一体的套房

卫生间

干湿分离

设计团队