今天跟大家分享一套110㎡的现代风二手房改造案例,屋主是一对年轻小夫妻,男主人风趣有格调,女主人温婉又时尚,将来他们的小孩一定也会很优秀。 对于新家的要求,他们希望简约、时尚、浪漫一点;希望空间布局更合理实用;偶尔回家会办公,需要独立办公区;预留一间客房家人来的时候可以住,希望给孩子留一间儿童房;有爱宠,希望能给它一个独立空间;想要一个浴缸......

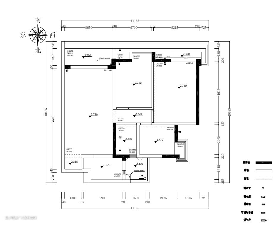
户型问题 房子原始户型较为方正,但内部空间布局不合理,基于后期居者入住后生活的实用性和舒适度考量,设计师根据空间需求进行了调整,打造出一个适合居者生活的现代家居。

设计亮点 ① 打通客厅阳台,扩充视觉空间,同时实现“书房”自由。 ② 主卧飘窗改推拉门,扩宽赠送部分,打造浴缸/阳台。 ② 打造成长型儿童房,用强大收纳征服全场。 ④ 洗手台外移,卫生间实现干湿分离。

黑色的冷硬、白色的无垠、灰色的优雅、木色的温润,便是这个空间的简单诠释。
嵌入式的白色玄关柜,仿佛是长在墙上。通顶式设计,让空间无限延长。 细节处的精心设计总是让生活更惬意:玄关柜的底部抬高了20公分,摆放一些常穿鞋;中部留空台面,方便居者回到家“解放双手”;整体的白色+原木色,营造了一个干净宽敞的玄关。

客厅的比较简洁,没有繁杂的装饰,通过简单的把空间处理得很干净和谐。 整个空间的留白背景墙与简单石膏线吊顶的顶面融为一体,让空间更有连续性和统一感。 木地板的加入,缓和了这个大面积留白空间的冷清,让业主感受到了居家的温馨的轻松。 米白色布艺沙发、小巧的电视柜与细脚组合茶几,带来了不一样的时尚感,也让空间更轻盈。




大阳台封窗户,纳入客厅区域,自然光照让空间更宽敞通透。 增加办公功能!利用良好的采光,在靠近沙发一侧,定制白色书桌椅,干净清雅。 增加爱宠之家!另一侧巧妙地将猫舍搬了进来,再搭配一些绿色植物。试想一下:工作、撸猫、赏花......这样的生活谁不爱。


次卧的小阳台,改造成了生活阳台。 理想的阳台家务区,洗手盆、储物柜还有洗衣机缺一不可。由于这个阳台空间比较小,在储物功能上做了部分取舍。 洗衣机上方定制隔板,平时放一些洗衣用品。另一侧加入了一体式洗手台,承担部分收纳功能。

餐厅的设计非常优雅时尚,黑色的餐桌、精致的吊灯,营造出一个简单的用餐氛围。后方定制了一个半墙餐边柜,放置一些小物件非常方便。 一屋两人三餐四季,尽享简单精致的浪漫日常。



餐厅后即厨房,用通透的玻璃门做隔断,保证了两个空间的采光不受影响。 U型厨房设计,嵌入大冰箱,最大限度利用空间。因柱体的阻挡,整个操作台并没有连起来,备餐区独立面窗。 厨房黑白灰的配色,干净利落线条分明,定制橱柜为料理提供充足的收纳空间。



主卧的颜色搭配延续了客厅的风格,简单舒适。白色的墙面一直延续至一门到顶衣柜,减少空间的压迫感。

因业主想拥有一个浴缸,所以把阳台改浴缸泡澡区域。(原户型赠送部分区域很窄,把飘窗区域改成推拉门,扩宽赠送部分,改造成阳台)

另外,也在卧室增加了衣帽间,满足了女业主的生活需求。


次卧的设计更偏向于简单实用,家具的选择以简单的原木色为主,搭配木地板,整个空间更加和谐有质感。 床头旁置,放着书桌柜,暂时作为屋主的办公区,非常方便使用。另一侧靠墙定制了嵌入式衣柜,优化内部布局,很能装。




还有另外一个小房间,是做儿童房使用的。其设计从成长型出发,一体式榻榻米,承包了床+收纳+书桌+书架等,靠强大的收纳征服全场。
灰色的卫生间,黑色的五金、白色的卫具,显得很优雅时尚。 后期淋浴间与马桶区域会使用浴帘作为隔断,另外洗手台外移,轻松实现卫生间三分离。



