本案的居者是幸福的一家六口和一只小泰迪,对于家他们希望是明亮的、是随性自然的!也一定是能经得起日常琐碎的折腾,能很好的回应生活的期待。 房屋面积100㎡,是一个紧凑的四房两厅的结构,为了满足居者的随性自然喜好需求,保证整体空间舒适感,设计师将居室的设计风格定位在极简风格。

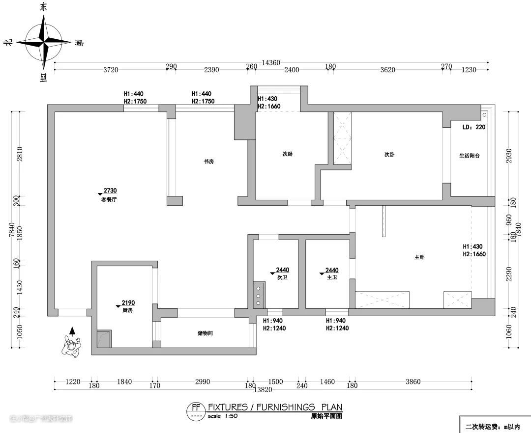
原户型问题: ①入户狭小,无大玄关柜储物 ②客餐厅紧凑,缺乏收纳空间 ③厨房狭小,不方便下厨动线 ④儿童房小,只能放下上下床 ⑤过道直对主卧门,不太合理 ⑥吊灯、叠级天花、墙纸等陈旧影响美观

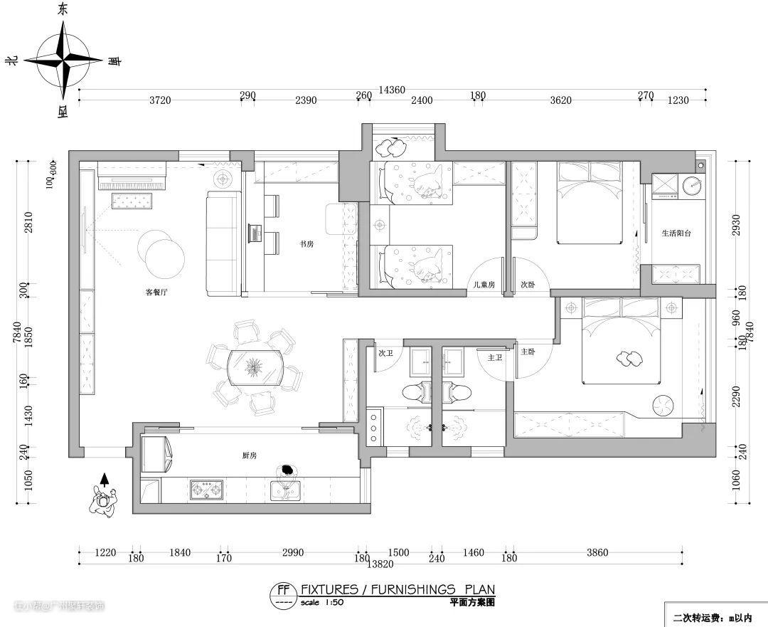
改造亮点: ①入户增加与电视柜一体玄关柜,增加收纳空间 ②拆除原厨房一侧非承重墙,使客餐厅空间更开阔流畅 ③打通餐厅外的杂物阳台并到厨房内,整体橱柜长达4.5m ④儿童房不规则墙体外移至方正,使其并排放下两张单人床,还有收纳设计 ⑤位移主卧门洞,避开过道直面门、床的问题,也省去再做屏风隔断的可能 ⑥极简风格设计,减少空间负担,提高颜值与实用性能











玄关入户比较狭长,我们拆除原厨房非承重墙体结构,使入户到客厅区域整体视觉更明亮、宽敞。 门厅延伸至客厅的墙体做了大面积柜体,并留出位置放置换鞋凳,提高空间储物能力的同时,也让日常居家出入户更加舒适便捷。



客厅中,设计师选用了偏灰调与深木色,软装加少许的暖色来中和,打造简约低调的空间氛围。


米白色的皮具沙发搭配黑白组合的轻奢岩板茶几,不同材质的巧妙融合,提升了空间的整体质感。

电视背景墙选择了深木色的整体柜,确保足够的收纳。飘窗使自然采光入室,也多了一处休闲地。


飘窗侧边靠墙摆放了钢琴,上面还放着各种相框、艺术品等,整体布置起来很有特色,也增加空间的可利用性。

整个空间都做了简单的吊顶以及无主灯设计,运用辅助灯的结合给空间和局部背景增加了些层次,也使空间更富设计美感。


家,就是后来慢慢地一点点填满,是家具、是杂物、是爱意!
沙发背靠的玻璃窗里就是一个小的书房&音乐房,半开放式的设计保证了空间的通透性,也有一定的隔音效果。

地面铺设木地板,给到小孩子自由,舒服的感受。靠窗户边做落地矮柜,增加收纳空间的同时,也多了大人在小孩子学习或者做手工时的陪伴和欢乐空间。

一排深木色的吊柜,装下的不仅是书与远方,还有他们的音乐兴趣。书房里特地腾出空间来摆放电子鼓,随时随地开启“演奏模式”。

面向客厅是双人位的学习桌布置,保证了有独立的学习、办公空间。


对原来不太合理的客餐厅空间进行了拆改优化 ,把原本比较狭小的餐厅空间扩宽,让玄关-餐厅-客厅三个空间相通且独立。

实用的通顶餐边柜搭配轻量级的餐桌椅,轻重结合。精致的吊灯,更能提升家居照明品味。




厨房门洞采用黑色不锈钢垭口门套,门套左右两边砌墙隐藏推拉门,让餐厅与厨房形成既是开放式也是封闭式的通透融合。


原格局的厨房与阳台打通,使上下双层的橱柜长达4.5m左右,满足了居者对下厨的所有理想状态,以及收藏颜值高的厨具需求。 使用集成灶,厨电隐蔽于橱柜之中,配合吊柜+挂杆的设置,充分展现空间美学。浅灰和奶白的结合,清新又亮堂。


主卧大面积留白辅助高级灰,利用柔和的木地板提升空间的温馨感。放低飘窗台,带来更大的采光与休闲。

床尾一排定制衣柜+梳妆台一体,再搭配Bold Chair -Mustache温柔与浪漫的克莱因蓝,充分体现了现代年轻人对生活的追求和品位。


床头安装了木饰面背景板,内藏灯带满足不同的照明需求。床头柜添加了造型搞怪趣味的Undercover汉堡灯装点空间,氛围感十足。



长辈房沿用了主卧配色,体现出空间的简约大气。靠墙设置通顶柜,实现收纳完整性。次卧外的阳台改造成生活阳台,大面积的推拉门最大限度引入自然采光。


儿童房外移使其方正,两张1.2米的儿童床并排放置给到小孩子独自睡眠的空间,还留出了空间定制收纳柜。


软装以灰色和蓝色为主,有兄弟俩喜欢的蜘蛛侠等超人英雄、宇航员床头柜夜灯摆件......有趣有态度。


卫生间用浅灰调和白色搭配,干湿分离区域划分明显、镜柜延长「放大」空间,满足日常使用。 地面选择了防滑砖,从设计细节上呈现品质。


有限的空间进行合理规划很重要!浴室柜台面以及镜柜都延伸至马桶上方,增加了收纳的空间,在视觉上最大程度得到了放松。


