简单,是最好的生活。整个房子都以现代简约风格基调,在现代舒适的空间下以低饱和度的色彩布置,使空间结构明确、外观明快简洁,营造出一个文艺淡雅的空间,舒适自然。本案是一套67㎡的现代轻简约非风格装修案例,房子的面积不大,设计师以更简单而不失优雅质感的空间设计来建造这个空间。整体以主要以黑灰为主色调,没有华丽的造型和浮夸的内饰,在细节处加入了一些充满设计感的元素,让整个家变得更为大气和时尚,也设计了不少的收纳空间,让这个家变得更为实用。

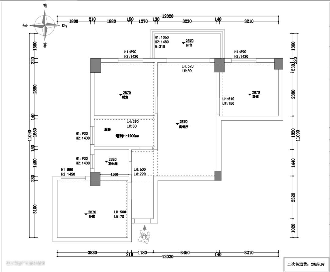
户型问题 1、原入户偏小没有收纳位置,入户对接厨房门; 2、现有卫生间格局满足不了业主需要的外置洗手台; 3、原客厅沙发位置、电视墙位置比较尴尬

改造亮点 ★ 把原厨房门门洞封掉的同时又得出了入户对景柜,和家政高柜收纳区; ★ 原卫生间墙体也一起做了拆除,满足做外置洗手台; ★ 原进厨房门洞进去厨房的右手边这面墙拆除,形成了收纳过道,同时也将厨房门洞和房间的门洞藏在过道,增加了沙发摆放的位置; ★ 原生活阳台墙体拆出,打通了与客餐厅一体,从而把阳台的功能区跟电视柜结合一体,增加收纳空间的同时又让电视柜得到了视觉的延伸,也让整个客餐厅显得通透,采光十分优质
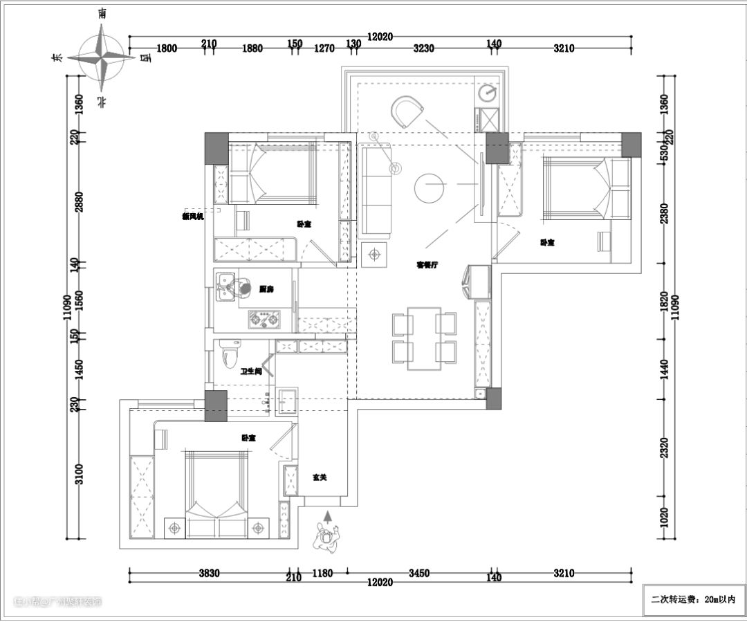
入户即是一道长廊,通过搭灯带来营造一个氛围,让走廊成为一道靓丽的风景线,这样对视觉就有了缓冲的效果,让居住者赏心悦目,成为整个家居空间的加分项。

一侧做上了嵌入式的玄关柜,不仅满足家人所有换季收纳,同时白色调让人赏心悦目。鞋柜下部悬空处便于当日鞋摆放,中间挖空平台设计可临时放包钥匙手机等,为了极简美观,柜门最终没有使用明拉手,用的反弹器。

将原生活阳台墙体拆出,从而把阳台的功能区跟电视柜结合一体,增加收纳空间的同时又让电视柜得到了视觉的延伸,也让整个客厅显得通透,采光十分优质。


整体式电视柜做法,是最实用的没有之一!整体式电视柜在拥有强大收纳功能的同时,还提供了美观大气的展示空间,根据实际摆放物品的需求自由安排柜门和抽屉的位置。

沙发背景墙大面积的留白让整个空间看起来纯净又宽敞,它能够容纳空间中多元的艺术元素及色彩,并极大地提升空间的质感,用白色作为底色,再其上层点缀视觉感较强的棕色沙发,让整个空间即素雅又灵动。


客餐厅相连,在选择餐桌的时候,一方面要考虑整体搭配的美观性,另一方面又要考虑餐桌的耐用与易清理性;而大理石质感的餐桌台面,就是一种优雅大方而又容易打理的材质,用它来做餐桌台面,整体空间感也是非常的华丽自然有档次感。



漂亮的东西总能让整个空间都显得高级、时尚,酒柜餐边柜也是一样。风格大体上跟着全屋的风格走。下班回到家,从酒柜中取下一盏酒杯,为距离梦想更进一步的努力而干杯,酒柜也好,餐边柜也好,物尽其用才是真正的赋予他们生活的意义。

厨房是重点使用区域,厨房的便利性和实用性关系到做菜的心情,充满生活气息的厨房让人心情放松,烹饪美食时快乐加倍。

L型厨房设计,使空间得以充分利用,合理规划烹饪动线,减少交叉作业,方便完成洗、切、煮操作,明亮有序,通风顺畅,烹饪一蔬一饭,包含对美味的偏爱,与家人共享至美清欢。
卧室空间延续公共区域的基调,沉稳而素雅的色调,干脆利落,同时大面积飘窗带来了极好的视野和光线,剔除生活中的“杂”。赋予空间安定的属性,让业主抛却浮躁烦忧,获得归属感。


床的两侧定制一门到顶衣柜,一侧衣柜延伸出床头柜,另一侧衣柜与梳妆台组合设计,它不仅仅发挥了纯粹的衣物收纳功能,还可以满足书桌、化妆台、办公区等功能需求,一举多得,有着超乎想象的实用性。让主卧的活动空间变得更加充足。


在次卧面积不足的情况下,设计成多功能榻榻米真的很香!合理巧妙的设计,可以让一个单调的空间集客卧、休闲、收纳、阅读于一体。

榻榻米+床头柜+衣柜一体设计,普通卧室秒变多功能房,一次满足睡眠、储物、摆放、学习等多重需求,达到“一房多用目的,而且看上去也比较时尚大气。将每一寸空间利用到极致,让家居收纳更便捷,还家一片岁月静好。

浴室柜外置,用部分外面的空间,让卫生间里面的淋浴区,可以宽敞一些。而且外置的洗手台,也能让一家人早晚的洗漱,会更加的方便,不会互相干扰。

悬空的浴室柜让物品的摆放有更多的可能,一些不适合放到柜子里的桶、凳子等物品都可以放在下面,不占空间,同时也没有卫生死角。

